Popular
Total views: 2500+
Guide price
£200,000Land for sale
Treasbeare Lane, Clyst Honiton, Exeter
Featured
Land
0.30 acre(s)
Features and description
- Permission in Principle for 2 four-bedroom detached open market dwellings
- Convenient location in popular new settlement in East Devon
- Flexibility to create unique design
- 3 private parking spaces per plot
- No Section 106 or CIL contributions
- Est development GIA of 140 sqm per dwelling
Development site with Permission in Principle for up to two detached dwellings, ideally located on the edge of Cranbrook, a popular and well-established new town development near Exeter. Freehold
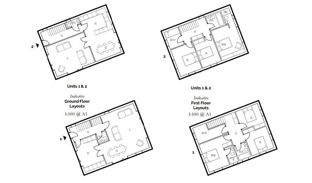
Description - A great opportunity to acquire a development site with Permission in Principle (ref: 24/1200/PIP) to build up to two detached dwellings, ideally located on the edge of Cranbrook, a popular and well-established new town development approximately 6 miles from the cathedral city of Exeter. The indicative scheme comprises two detached four-bedroom properties (140sqm each), together with private parking for three vehicles per dwelling and a generous rear patio and garden area. An ideal prospect for developers seeking a well-located, flexible scheme.
Situation - The property enjoys excellent access to the M5, A30 and Exeter International Airport (just 1.5 miles away), together with a mainline railway station at Cranbrook providing services to London Waterloo and Exeter Central, and a nearby frequent bus service. This makes it ideally positioned for both local and national travel. Cranbrook offers an expanding range of amenities including shops, a public house, takeaways, schooling for all ages, sporting facilities, clubs and a country park. The nearby towns of Ottery St Mary and Honiton provide further amenities, while the south coast is within easy reach at Exmouth and Sidmouth.
Planning Permission - East Devon District Council granted Permission in Principle (ref: 24/1200/PIP) on 15th November 2024 for the construction of up to two new build detached dwellings. A range of accompanying documents are on the East Devon District Council website.
Plot 1 = 140spm Dwelling and associated parking and garden space.
Plot 2 = 140spm Dwelling and associated parking and garden space.
The vendor has paid the Pebblebed Heaths and Exe Estuary Special Protection Area Habitat Mitigation Contribution that is due in connection with the development.
It is understood that no CIL levy will be due, on the basis the development site is located within the Cranbrook CIL relief zone.
Access And Services - Vehicular access to the site is via an adjoining private accessway, which is shared with adjoining property owners. Please contact Stags for further information.
Mains Electricity and Water connections are available on site. It is envisaged that foul drainage will be delivered with the use of a Sewage Treatment Plant, although connection to the mains service may be possible. All interested parties should make their own enquiries regarding the provision of utilities with the relevant Utility providers.
Ownership And Legal Title - The seller is offering the freehold of the property for sale by private treaty. The property is registered together with other land with HM Land Registry under the registered title numbers DN191435.
The sale of the property is subject to all rights, covenants, wayleaves, easements, quasi-easements, and all other legal rights and encumbrances whether or not disclosed within the marketing material.
Agents Note - Please note the vendors have not elected to tax the property for VAT purposes.
Information Pack - Access to a pack of supporting information is available to prospective purchasers on request.
Viewings - Strictly by appointment through Stags.
Please call our Development Land Team on[use Contact Agent Button] to arrange an appointment.
Directions - From Exeter head east along the A30 dual carriageway, taking the exit signposted Cranbrook / B3174 / Clyst Honiton. Join the B3174 heading toward Cranbrook, and after approximately one mile you will arrive at Treasbeare Lane. The property is located on the left hand side.
What3Words - ///lion.dispensed.dancer
Plans And Drawings - Please note that all plans and drawings are for illustration purposes only and are not guaranteed to be accurate or to scale.
Description - A great opportunity to acquire a development site with Permission in Principle (ref: 24/1200/PIP) to build up to two detached dwellings, ideally located on the edge of Cranbrook, a popular and well-established new town development approximately 6 miles from the cathedral city of Exeter. The indicative scheme comprises two detached four-bedroom properties (140sqm each), together with private parking for three vehicles per dwelling and a generous rear patio and garden area. An ideal prospect for developers seeking a well-located, flexible scheme.
Situation - The property enjoys excellent access to the M5, A30 and Exeter International Airport (just 1.5 miles away), together with a mainline railway station at Cranbrook providing services to London Waterloo and Exeter Central, and a nearby frequent bus service. This makes it ideally positioned for both local and national travel. Cranbrook offers an expanding range of amenities including shops, a public house, takeaways, schooling for all ages, sporting facilities, clubs and a country park. The nearby towns of Ottery St Mary and Honiton provide further amenities, while the south coast is within easy reach at Exmouth and Sidmouth.
Planning Permission - East Devon District Council granted Permission in Principle (ref: 24/1200/PIP) on 15th November 2024 for the construction of up to two new build detached dwellings. A range of accompanying documents are on the East Devon District Council website.
Plot 1 = 140spm Dwelling and associated parking and garden space.
Plot 2 = 140spm Dwelling and associated parking and garden space.
The vendor has paid the Pebblebed Heaths and Exe Estuary Special Protection Area Habitat Mitigation Contribution that is due in connection with the development.
It is understood that no CIL levy will be due, on the basis the development site is located within the Cranbrook CIL relief zone.
Access And Services - Vehicular access to the site is via an adjoining private accessway, which is shared with adjoining property owners. Please contact Stags for further information.
Mains Electricity and Water connections are available on site. It is envisaged that foul drainage will be delivered with the use of a Sewage Treatment Plant, although connection to the mains service may be possible. All interested parties should make their own enquiries regarding the provision of utilities with the relevant Utility providers.
Ownership And Legal Title - The seller is offering the freehold of the property for sale by private treaty. The property is registered together with other land with HM Land Registry under the registered title numbers DN191435.
The sale of the property is subject to all rights, covenants, wayleaves, easements, quasi-easements, and all other legal rights and encumbrances whether or not disclosed within the marketing material.
Agents Note - Please note the vendors have not elected to tax the property for VAT purposes.
Information Pack - Access to a pack of supporting information is available to prospective purchasers on request.
Viewings - Strictly by appointment through Stags.
Please call our Development Land Team on[use Contact Agent Button] to arrange an appointment.
Directions - From Exeter head east along the A30 dual carriageway, taking the exit signposted Cranbrook / B3174 / Clyst Honiton. Join the B3174 heading toward Cranbrook, and after approximately one mile you will arrive at Treasbeare Lane. The property is located on the left hand side.
What3Words - ///lion.dispensed.dancer
Plans And Drawings - Please note that all plans and drawings are for illustration purposes only and are not guaranteed to be accurate or to scale.
Property information from this agent
Area statistics
Crime score
Low crime
2/10
About this agent

Stags estate and letting agents office in Exeter is situated in the heart of the business district of Southernhay close to the Princesshay shopping centre. The office is a beautiful Grade II* Listed former townhouse, with the offices being set out over five floors. Situated on the River Exe, Exeter is the ancient county town of Devon and is noted as being one of the top ten most profitable business locations. The city has excellent transport links, including mainline railway, the M5 motorway and Exeter International Airport. Exeter contains many beautiful historic buildings, including Exeter Cathedral, and is well known for its extensive shopping facilities such as the Princesshay Shopping Centre, Guildhall Shopping Centre and Harlequins Centre. Next to Rougemont Castle (built soon after the Norman Conquest) is Northernhay Gardens (1612), the oldest public open space in England. Exeter offers good educational facilities including the University of Exeter, which is also one of the city's largest employers










Floorplans (
Area stats