Popular
Total views: 2500+
Guide price
£2,850,0005 bedroom detached house for sale
Broadford Bridge Road, West Chiltington, West Sussex, RH20
Featured
Study
Detached house
5 beds
3 baths
5214
EPC rating: F
Key information
Tenure: Freehold
Council tax: Band H
Broadband: Basic 25Mbps *
Mobile signal:
EEO2ThreeVodafone
Features and description
- 5 - 7 bedrooms
- 5 reception rooms
- 3 - 4 bathrooms
- 2.85 acres
- Detached
- Garden
- Swimming Pool
- Tennis Court
Woodshill House is an elegant Grade II listed stone faced and Horsham stone roofed country house. Believed to date back as far as c1580 due to the gun-stock jowl, heavily weathered timbers to the northern end and the side purling roof. However, the roof structure, plastered ceiling and moulded features suggest a construction date of c1650-1675. Woodshill House is believed to have been constructed in four phases. The first phase comprises a two bay three storey range with a south-facing tile hung elevation. The axial girder to the ground floor is moulded and the ceiling height is higher than expected which suggest that the ceiling joists were originally plastered over. The second phase comprises a two bay three storey range set back under a staggered butt purlin and queen strut roof. This range is a square stone construction with ironstone galletting to the elevations.
Phases 3 and 4 are aligned and comprises a two single bay stone faced ranges c1700 but due to the level of alterations in the ranges it is not possible to date the buildings, but they do appear to potentially date phase 1 and 2. Information above is from a commission report by Wealden Buildings Study Group in 2018.
Situated just outside of Pulborough, with the villages of West Chiltington and Storrington very close by, Woodshill House lies on the top of a hill with views towards The South Downs. The gardens are an incredible mix of rose beds, specimen trees, vegetable garden, formal lawn and walled garden encasing the swimming pool area. The tennis court lies to the south, next to the paddock, whilst the kitchen garden attracts much sunlight as it is south-facing.
Phases 3 and 4 are aligned and comprises a two single bay stone faced ranges c1700 but due to the level of alterations in the ranges it is not possible to date the buildings, but they do appear to potentially date phase 1 and 2. Information above is from a commission report by Wealden Buildings Study Group in 2018.
Situated just outside of Pulborough, with the villages of West Chiltington and Storrington very close by, Woodshill House lies on the top of a hill with views towards The South Downs. The gardens are an incredible mix of rose beds, specimen trees, vegetable garden, formal lawn and walled garden encasing the swimming pool area. The tennis court lies to the south, next to the paddock, whilst the kitchen garden attracts much sunlight as it is south-facing.
Situated just outside of Pulborough, with the villages of West Chiltington and Storrington very close by, Woodshill House lies on the top of a hill with views towards The South Downs. The gardens are an incredible mix of rose beds, specimen trees, vegetable garden, formal lawn and walled garden encasing the swimming pool area. The tennis court lies to the south, next to the paddock, whilst the kitchen garden attracts much sunlight as it is south-facing.
Property information from this agent
About this agent

We are passionate about property. Our foundations are built on supporting clients in one of the most significant decisions they’ll make in their lifetime. As your partners in property, we act with integrity and are here to help you achieve the very best price for your home in the quickest possible time. We offer a range of services for your property requirements. If you are selling, buying or letting a home, or you need some frank advice and insight on the current property market from our team, please get in touch. We’d love to hear from you.
Similar properties
Discover similar properties nearby in a single step.








































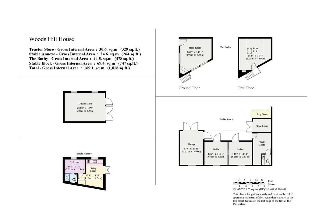
Floorplans (
