1 bedroom flat
Let agreed
Flat
1 bed
1 bath
Key information
Council tax: Band A
Broadband: Ultra-fast 1000Mbps *
Letting details
- Let agreed
- Part furnished
- Deposit: £575
- Contract length: 6 months
- Min. term: 6 months
Features and description
- Lrn 1430650/180/10062
- Energy Rating D
- Council Tax Band A
- Fantastic 1 Bed 2nd Floor Flat
- 360 Virtual Tour Available
- No Pets
- Part Furnished
Scottish Letting Agent Registration Number: LARN2305007
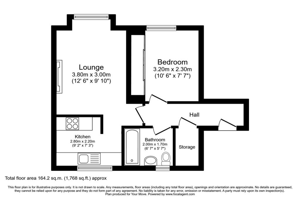
LRN 1430650/180/10062. EPC Rating D. Council Tax Band A. Fantastic opportunity to let this well presented 1 bed flat situated within walking distance to the city centre. Accommodation comprises of double bedroom with built in wardrobe space, lounge, kitchen with appliances and bathroom with shower over bath. This property benefits from electric heating and double glazing. No pets. Close to local amenities and transport links. Easy access to the Universities.
IMPORTANT NOTE TO POTENTIAL PURCHASERS & TENANTS:
We endeavour to make our particulars accurate and reliable, however, they do not constitute or form part of an offer or any contract and none is to be relied upon as statements of representation or fact. The services, systems and appliances listed in this specification have not been tested by us and no guarantee as to their operating ability or efficiency is given. All photographs and measurements have been taken as a guide only and are not precise. Floor plans where included are not to scale and accuracy is not guaranteed. If you require clarification or further information on any points, please contact us, especially if you are traveling some distance to view. POTENTIAL PURCHASERS: Fixtures and fittings other than those mentioned are to be agreed with the seller. POTENTIAL TENANTS: All properties are available for a minimum length of time, with the exception of short term accommodation. Please contact the branch for details. A security deposit of at least one month’s rent is required. Rent is to be paid one month in advance. It is the tenant’s responsibility to insure any personal possessions. Payment of all utilities including water rates or metered supply and Council Tax is the responsibility of the tenant in most cases.
DUN210384/2
LRN 1430650/180/10062. EPC Rating D. Council Tax Band A. Fantastic opportunity to let this well presented 1 bed flat situated within walking distance to the city centre. Accommodation comprises of double bedroom with built in wardrobe space, lounge, kitchen with appliances and bathroom with shower over bath. This property benefits from electric heating and double glazing. No pets. Close to local amenities and transport links. Easy access to the Universities.
IMPORTANT NOTE TO POTENTIAL PURCHASERS & TENANTS:
We endeavour to make our particulars accurate and reliable, however, they do not constitute or form part of an offer or any contract and none is to be relied upon as statements of representation or fact. The services, systems and appliances listed in this specification have not been tested by us and no guarantee as to their operating ability or efficiency is given. All photographs and measurements have been taken as a guide only and are not precise. Floor plans where included are not to scale and accuracy is not guaranteed. If you require clarification or further information on any points, please contact us, especially if you are traveling some distance to view. POTENTIAL PURCHASERS: Fixtures and fittings other than those mentioned are to be agreed with the seller. POTENTIAL TENANTS: All properties are available for a minimum length of time, with the exception of short term accommodation. Please contact the branch for details. A security deposit of at least one month’s rent is required. Rent is to be paid one month in advance. It is the tenant’s responsibility to insure any personal possessions. Payment of all utilities including water rates or metered supply and Council Tax is the responsibility of the tenant in most cases.
DUN210384/2
About this agent

Your Move is one of the UK's biggest estate and letting agency brands with branches from Inverness to Plymouth. Its national presence means Your Move will find your buyer or tenant wherever they are across the UK. Sales teams are commissioned based and only get paid when your property is sold or let. This means teams work hard throughout the process making sure customers get the best price for your property. Rated EXCELLENT across Trustpilot and Google with over 28,000 reviews. It pays to be with Your Move.










