5 bedroom property with land for sale
Key information
Features and description
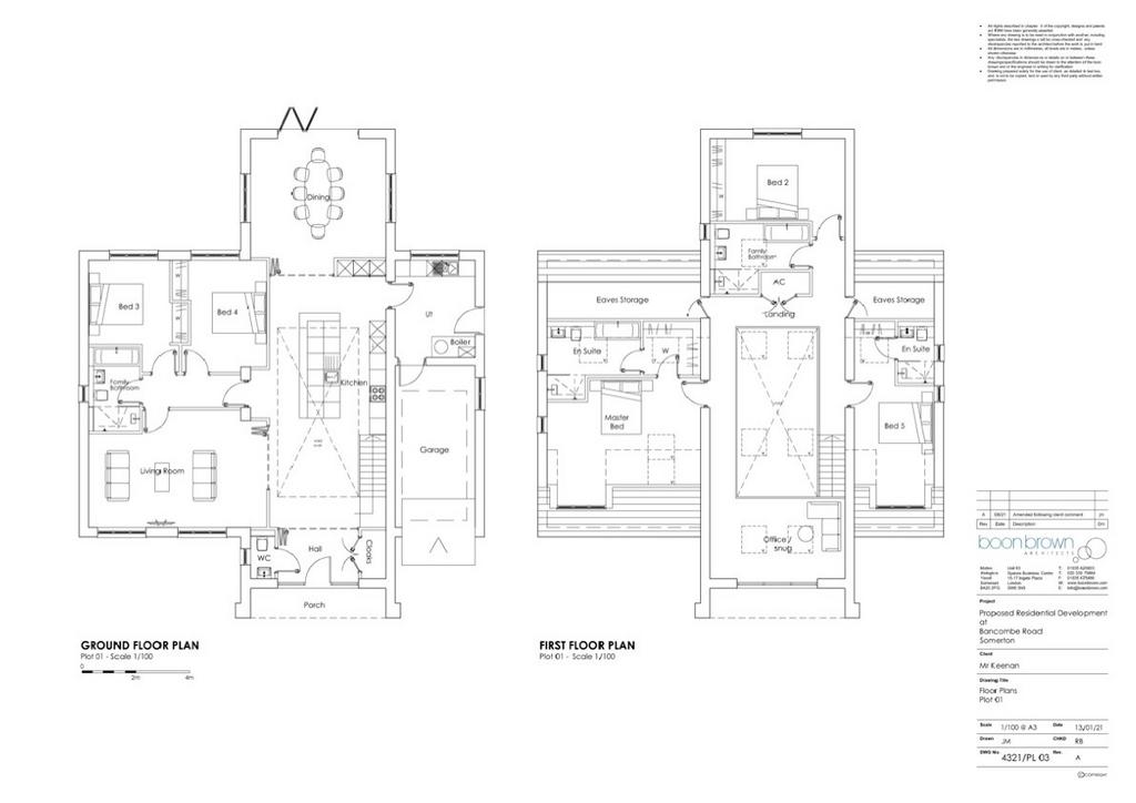
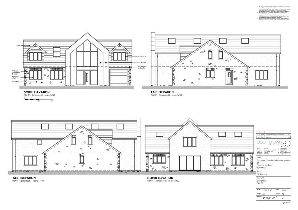
- Opportunity to purchase one of two impressive building plots
- Expected GDV of £675,000 - £700,000
- Planning Ref: 21/02136/REM
- Proposal for contemporary detached five bedroom home
- Walking distance to Somerton High Street
- Precedent set by successful previous sales of smaller neighbouring units
5 Drayton Court, Bancombe Road, Somerton, TA11 6FN
Glastonbury 8 miles, Street 6 miles, Langport 4 miles. Castle Cary 10 miles (Paddington 1.5 hours). Yeovil 12 miles (Waterloo 2.5 hours). Taunton/M5 (J25) 16 miles. A303 3.5 miles (Distances & times approximate).
This is an exceptional opportunity to build a bespoke, high-specification home in the increasingly popular market town of Somerton. Situated on Bancombe Road, this generous building plot benefits from full planning consent (ref: 21/02136/REM) and offers the ideal canvas for those wishing to create something truly individual, tailored to their own needs, style, and vision. Two mirrored plots are available for sale, and could be sold as a pair or separately.
Somerton continues to grow in stature and appeal, blending historical charm with a progressive, welcoming atmosphere. The town centre, just a short distance away, provides an excellent range of independent shops, cafés, pubs, and essential amenities, alongside good schooling and easy road access to the A303 and beyond. With its strong sense of community and rich architectural heritage, it’s no surprise that Somerton has become a favoured destination for those looking to settle in Somerset.
The plot itself is well-positioned within an established residential setting, and the consented plans allow for a substantial and thoughtfully designed property, where attention to detail and quality of finish can be prioritised. The scope here is significant, whether a buyer is looking to create a forever family home or build for resale. Opportunities of this kind in such a well-regarded location are few and far between. The expected Gross Domestic Value is between £675,000 and £700,000. Smaller neighbouring units have been constructed and successfully sold, which gives confidence in the quality of this acquisition.
About the area
Somerton was an important town in Roman times and eventually became the capital of Wessex. It’s now a thriving Market Town in the heart of Somerset, yet with easy road access via the A303 road a few miles south, and the main line rail station at Castle Cary. Somerton provides a wide range of local services including a two small supermarkets, Doctors Surgery, a Library, a Butchers, Newsagent, Chemist and Post Office. Close by are other small towns including Street, Glastonbury, Wells, Castle Cary, Yeovil and Sherborne whilst Bristol, Bath and Taunton are also within easy reach.
There are excellent state and independent schools locally, which include a well-respected primary school in Somerton and secondary schools (and a 6th form college) in Street and Huish Episcopi. Independent schools include Millfield (at Street & Glastonbury), Wells Cathedral, Downside, All Hallows and the schools at Bruton and Sherborne. There are lots of good restaurants and pubs in the town and surrounding villages, and most sporting, cultural and social requirements can be met.
IMPORTANT NOTICE
Roderick Thomas, their clients and any joint agents state that these details are for general guidance only and accuracy cannot be guaranteed. They do not constitute any part of any contract. All measurements are approximate, and floor plans are to give a general indication only and are not accurate drawings. No guarantees are given with regard to planning permission or fitness for purpose. No apparatus, equipment, fixture or fitting has been tested. Items shown in photographs are not necessarily included. Purchasers must satisfy themselves on all matters by inspection or otherwise. VIEWINGS - interested parties are advised to check availability and current situation prior to travelling to see any property.
Identity verification & Anti Money Laundering (AML) Requirements
As Estate Agents we are required by law to undertake Anti Money Laundering (AML) Regulation checks on any purchaser who has an offer accepted on a property. We are required to use a specialist third party service to verify the purchaser(s) identity. The cost of these checks is £60 (inc. VAT) per person. This is payable at the point an offer is accepted and our purchaser information forms completed, prior to issuing Memorandum of Sales to both sellers and buyers and their respective conveyancing solicitors. This is a legal requirement and the charge is non-refundable.”
Area statistics
About this agent











Area stats