Popular
Total views: 2500+
Offers over
£250,000Plot for sale
Gathurst Lane, Wigan WN6
Plot
0.24 acre(s)
Key information
Tenure: Freehold
Council tax: Ask agent
Features and description
- Approx 0.24 acres of land
- Outline Planning Permission for 2 dwellings
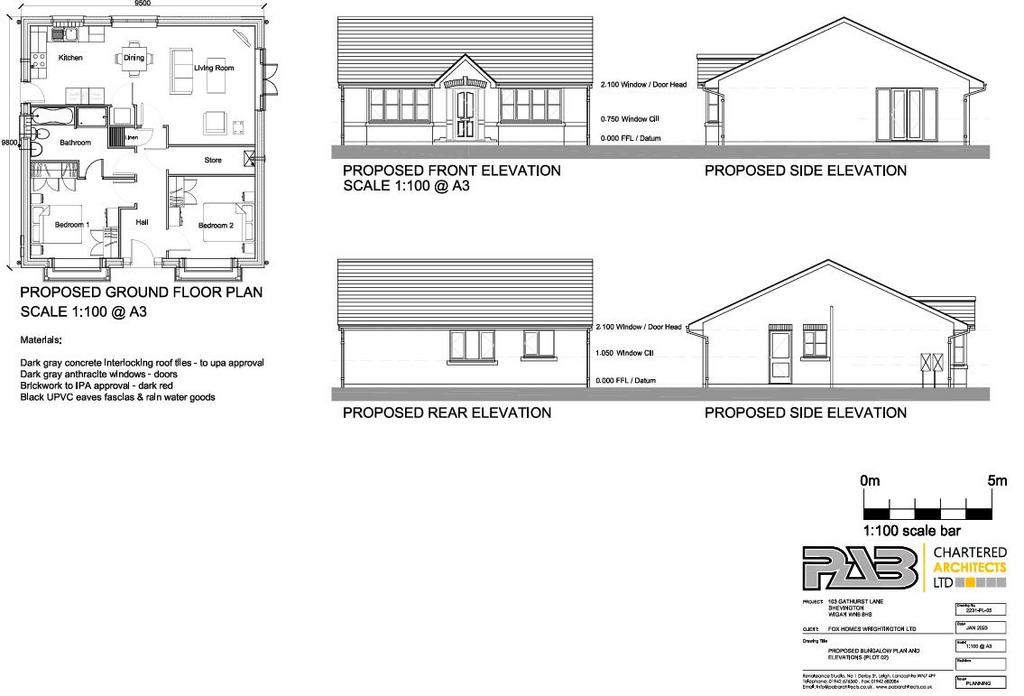
- One dwelling is two storey with 4 bedrooms and detached garage
- One dwelling is single storey with 2 bedrooms
- Close proximity to amenities of Shevington
- Close proximity to M6 (Junction 27)
Situated on one of the most desirable areas in the village of Shevington, Wigan.
A plot of land comprising approximately 0.10 ha (0.24 ac) which has the benefit of Outline Planning Consent for 2 x detached residential properties.
The consent allows for a two bedroom detached bungalow and a detached four bedroom home with a detached garage.
The village of Shevington which is in walking distance has an array of amenities, there are also excellent links to Junction 27 of the M6 Motorway.
Full Planning Details can be found on under application reference number
A/23/95730/OUT.
(Where aerial photographs are used with indicative boundaries no liability for accuracy is offered these are approximate for identification purposes only).
A plot of land comprising approximately 0.10 ha (0.24 ac) which has the benefit of Outline Planning Consent for 2 x detached residential properties.
The consent allows for a two bedroom detached bungalow and a detached four bedroom home with a detached garage.
The village of Shevington which is in walking distance has an array of amenities, there are also excellent links to Junction 27 of the M6 Motorway.
Full Planning Details can be found on under application reference number
A/23/95730/OUT.
(Where aerial photographs are used with indicative boundaries no liability for accuracy is offered these are approximate for identification purposes only).
Property information from this agent
About this agent

Fazakerley Sharpe, one of the North West’s oldest privately owned property consultancies was initially established by Thomas Fazakerley in 1931. A measure of our ongoing strength and continued performance is exemplified by the number of original instructions from 1937 which continue to be managed by the business today. We pride ourselves on traditional values, the relationships we have built and a commitment to maintaining a personal service. We specialise in Residential, Commercial and Rural Practice covering the whole of the North West, but mainly in the Cheshire and Greater Manchester Areas. The Company operates from Wrightington Street in the heart of the historical town of Wigan, Lancashire and is now headed by Jack Sharpe, a Chartered Surveyor who is the 5th generation of the family to run the business and succeeds his late Grandfather, Brian Fazakerley.
Similar properties
Discover similar properties nearby in a single step.







Floorplans (