No longer on the market
This property is no longer on the market
Similar properties
Discover similar properties nearby in a single step.
2 bedroom apartment
Let agreed
EPC rating: B
Apartment
2 beds
2 baths
Key information
Council tax: Band D
Letting details
- Let agreed
- Unfurnished
- Deposit: £1300
Features and description
Perfectly placed on Hillfoot Street, this modern two-bedroom apartment is situated within a tranquil and sought-after development, moments from the heart of vibrant Dennistoun.
This property offers a unique blend of characterful features you’ll love in your home, such as a beautiful bay window outlook with views over the neighbouring iconic tenements, or far beyond to the City Centre. However, you’ll find this property unique to many around it with the modern amenities including lift access, a private gated parking space and much, much more.
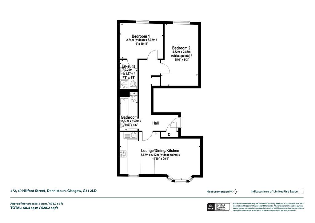
The stylish accommodation features a spacious and openplan lounge/kitchen/diner, thoughtfully designed to maximize both comfort and functionality with enough storage space to ensure a clutter-free lifestyle. The kitchen boasts an elegant array of fitted units, equipped with a gas hob and ample space for fridge and freezer, washing machine, and dishwasher. This well-appointed kitchen provides an efficient and appealing workspace for culinary enthusiasts.
Both bedrooms are generously sized, one bedroom offering access to the en-suite shower room. Both rooms are not only bright and spacious, but offer a fantastic outlook over the rooftops all the way to Glasgow City Centre.
The bright and modern family bathroom is finished in a crisp white suite, complemented by a stylish towel radiator.
The apartment benefits from recently upgraded double glazing, gas central heating with a recently upgraded boiler, and a secure entry system. Ensuring a warm, comfortable and secure living environment. An abundance of storage space is available throughout, including an open cupboard off the hallway, helping to maintain a tidy and clutter-free atmosphere.
A very rare and notable advantage of this property is the allocated parking space located conveniently at the rear of the building through remote controlled secure shuttering.
Early viewing is highly recommended for anyone seeking a bright, contemporary and stylish apartment in an eternally popular location.
Scottish Letting Agent Registration: LARN1903047
Landlord registration: 35545/260/20420
Deposit £1300
Council tax: D
EPC: B
EPC Rating: B
Council Tax Band: D
This property offers a unique blend of characterful features you’ll love in your home, such as a beautiful bay window outlook with views over the neighbouring iconic tenements, or far beyond to the City Centre. However, you’ll find this property unique to many around it with the modern amenities including lift access, a private gated parking space and much, much more.
The stylish accommodation features a spacious and openplan lounge/kitchen/diner, thoughtfully designed to maximize both comfort and functionality with enough storage space to ensure a clutter-free lifestyle. The kitchen boasts an elegant array of fitted units, equipped with a gas hob and ample space for fridge and freezer, washing machine, and dishwasher. This well-appointed kitchen provides an efficient and appealing workspace for culinary enthusiasts.
Both bedrooms are generously sized, one bedroom offering access to the en-suite shower room. Both rooms are not only bright and spacious, but offer a fantastic outlook over the rooftops all the way to Glasgow City Centre.
The bright and modern family bathroom is finished in a crisp white suite, complemented by a stylish towel radiator.
The apartment benefits from recently upgraded double glazing, gas central heating with a recently upgraded boiler, and a secure entry system. Ensuring a warm, comfortable and secure living environment. An abundance of storage space is available throughout, including an open cupboard off the hallway, helping to maintain a tidy and clutter-free atmosphere.
A very rare and notable advantage of this property is the allocated parking space located conveniently at the rear of the building through remote controlled secure shuttering.
Early viewing is highly recommended for anyone seeking a bright, contemporary and stylish apartment in an eternally popular location.
Scottish Letting Agent Registration: LARN1903047
Landlord registration: 35545/260/20420
Deposit £1300
Council tax: D
EPC: B
EPC Rating: B
Council Tax Band: D
Area statistics
Home prices (average)
2 bedroom apartments
£1,078 pcm
£1,078 pcm
About this agent

Set on Bath Street, in central Glasgow, the Rettie Glasgow Lettings team offers landlords a full range of letting and management services, and a varied portfolio of rental properties to tenants. From managing extensive property portfolios to overseeing the rental of a single property, the Rettie Glasgow Lettings team offers an extremely high level of service tailored to suit a breadth of requirements. We attain excellent rents for our properties and have a stringent referencing process for tenants. With unparalleled local knowledge and connections, we are perfectly placed to help you if you are interested in renting property anywhere in Glasgow city centre and beyond. Operating from Bath Street, the Rettie Glasgow letting team offers Glasgow landlords a full range of letting agency and management services for a diverse range of properties. Whether you have a property portfolio or a single property to let, we offer a first class service tailored to suit your requirements, from tenant introduction only to full letting and management.






















Area stats