Popular
Total views: 2500+
Guide price
£550,000Property for sale
Main Street, Wymondham LE14
Study
Property
0.20 acre(s)
Key information
Tenure: Freehold
Council tax: Ask agent
Features and description
- 0.75 Acre Development Site
- Planning Permission for 4 New Dwellings
An opportunity to purchase a 0.2 acre development with planning consent construction of 4 terraced townhouses with a total internal floor area of approximately 4,520 sqft (420m2). Situated in the centre of the village of Wymondham.
The property previously had planning permission ((ref. 20/00444/FUL)., but this lapsed in January 2025
Further Information - For further information, and to register your interest, please contact Peter Chennells BSc (Hons) MSc MRICS
[use Contact Agent Button]
[use Contact Agent Button]
Location - The site occupies an already established position within the heart of this much favoured and highly regarded village which is surrounded by unspoilt open countryside and includes useful day to day amenities including Parish Church, primary school and traditional public house.
Wymondham is convenient for commuting to the surrounding centres of Melton Mowbray, Oakham, Grantham and Leicester all with a range of local services available. Main line railway services are available from Grantham & Leicester further rail networks are available in the nearby market towns of Melton Mowbray and Oakham.
what3words: sandbags.over.spells
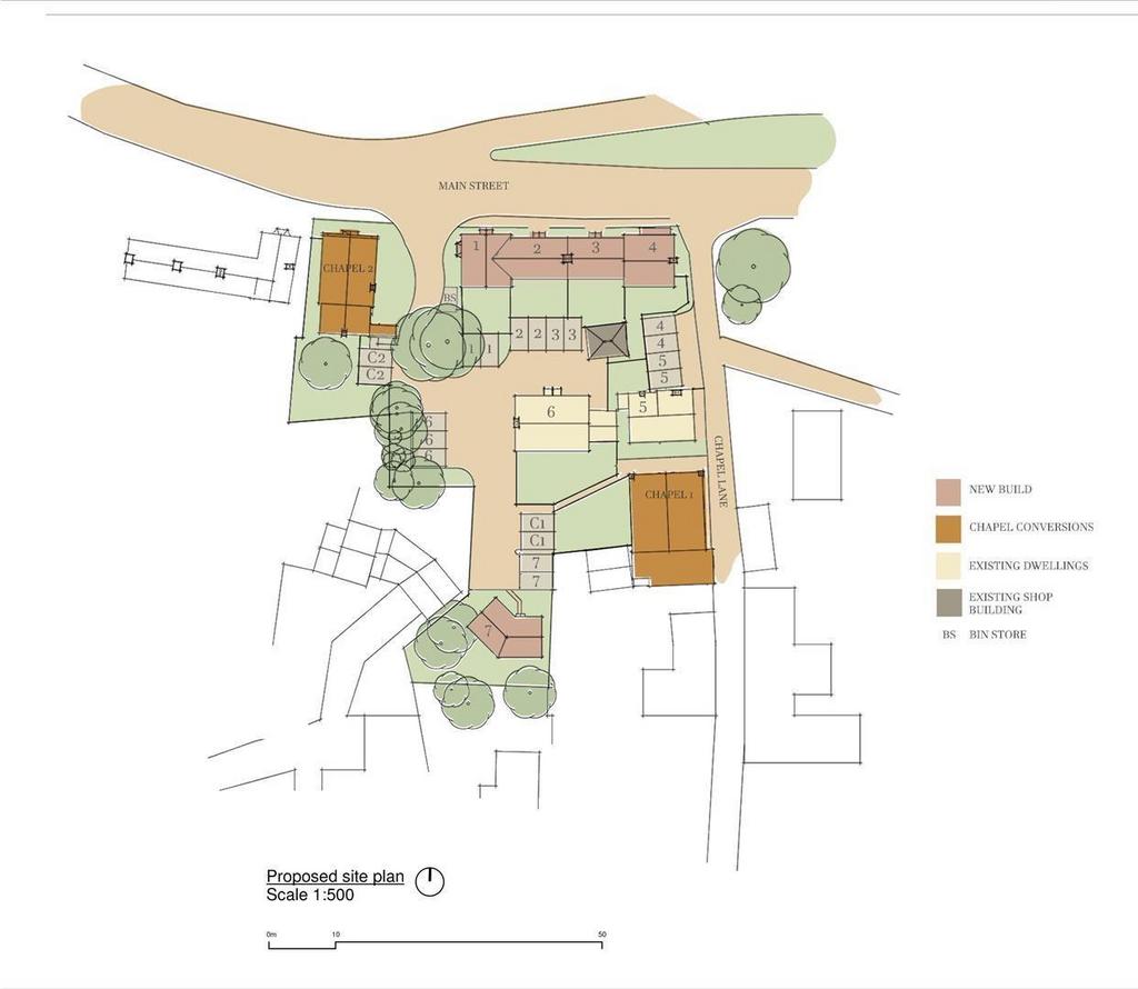
Planning - The development area (sited within the heart of the Conservation Area and identified as a housing allocation within the made Wymondham and Edmondthorpe Neighbourhood Plan) extends to approximately 0.75 acre (0.30ha).
Granted via delegated powers by Melton Borough Council, the site has the benefit of full detailed planning permission (ref. 20/00444/FUL) granted on 28 January 2022 for the residential conversion of the two disused chapel buildings and the erection of five new build dwellings. The Planning permission for the property has now lapsed.
Plots 1 & 4 - Ground Floor
Entrance hall
Cloakroom with W.C.
Lounge
Study/Bedroom 4
Dining Kitchen
First Floor
Landing
Main Bedroom
En suite Shower room
Bedroom 2
Bedroom 3
Bathroom
Plots 2 & 3 - Ground Floor
Entrance hall
Cloakroom with W.C.
Lounge
Dining Kitchen
Landing
Main Bedroom
En suite Shower room
Bedroom 2
Bedroom 3
Bathroom
Viewings - Viewings of the site must be arranged with Andrew Granger & Co in advance. Neither the Vendor nor the Agents are responsible for the safety of those viewing the site, and any persons taking access do so entirely at their own risk.
Method Of Sale - The site is being offered for sale by Private Treaty at a Guide Price of £550,000
Services - Mains water, sewerage, gas and electricity are understood to be available in Wymondham village.
4 & 6 Chapel Lane are understood to be connected mains gas, electric and water.
The purchaser/s will be responsible for making their own enquiries about the availability of any services.
Land Registry - The site is registered freehold title absolute under part Land Registry titles LT363237, LT335160 & LT334362
Wayleaves, Covenants, Easements & Rights Of Way - The land is sold subject to any wayleaves, easements, covenants and rights of way whether disclosed or not.
The property previously had planning permission ((ref. 20/00444/FUL)., but this lapsed in January 2025
Further Information - For further information, and to register your interest, please contact Peter Chennells BSc (Hons) MSc MRICS
[use Contact Agent Button]
[use Contact Agent Button]
Location - The site occupies an already established position within the heart of this much favoured and highly regarded village which is surrounded by unspoilt open countryside and includes useful day to day amenities including Parish Church, primary school and traditional public house.
Wymondham is convenient for commuting to the surrounding centres of Melton Mowbray, Oakham, Grantham and Leicester all with a range of local services available. Main line railway services are available from Grantham & Leicester further rail networks are available in the nearby market towns of Melton Mowbray and Oakham.
what3words: sandbags.over.spells
Planning - The development area (sited within the heart of the Conservation Area and identified as a housing allocation within the made Wymondham and Edmondthorpe Neighbourhood Plan) extends to approximately 0.75 acre (0.30ha).
Granted via delegated powers by Melton Borough Council, the site has the benefit of full detailed planning permission (ref. 20/00444/FUL) granted on 28 January 2022 for the residential conversion of the two disused chapel buildings and the erection of five new build dwellings. The Planning permission for the property has now lapsed.
Plots 1 & 4 - Ground Floor
Entrance hall
Cloakroom with W.C.
Lounge
Study/Bedroom 4
Dining Kitchen
First Floor
Landing
Main Bedroom
En suite Shower room
Bedroom 2
Bedroom 3
Bathroom
Plots 2 & 3 - Ground Floor
Entrance hall
Cloakroom with W.C.
Lounge
Dining Kitchen
Landing
Main Bedroom
En suite Shower room
Bedroom 2
Bedroom 3
Bathroom
Viewings - Viewings of the site must be arranged with Andrew Granger & Co in advance. Neither the Vendor nor the Agents are responsible for the safety of those viewing the site, and any persons taking access do so entirely at their own risk.
Method Of Sale - The site is being offered for sale by Private Treaty at a Guide Price of £550,000
Services - Mains water, sewerage, gas and electricity are understood to be available in Wymondham village.
4 & 6 Chapel Lane are understood to be connected mains gas, electric and water.
The purchaser/s will be responsible for making their own enquiries about the availability of any services.
Land Registry - The site is registered freehold title absolute under part Land Registry titles LT363237, LT335160 & LT334362
Wayleaves, Covenants, Easements & Rights Of Way - The land is sold subject to any wayleaves, easements, covenants and rights of way whether disclosed or not.
Property information from this agent
Area statistics
Crime score
Low crime
0/10
About this agent

Andrew Granger & Co has been an established property firm, estate agent, letting agent, commercial agent, and professional agent in Loughborough for over 27 years, and our office here covers a diverse range of properties and land for sale and to let as one of three Andrew Granger & Co’s branches in Leicestershire. If you’re looking for houses for sale in Loughborough and the surrounding areas, we can help you with smaller properties such a apartments, bungalows, and terraced homes through to detached period homes and character village properties. And if you’re in need of houses to let in Loughborough or elsewhere in Leicestershire we can offer properties to rent in a range of locations. Our rural team can also assist you with a whole host of property services including rural property valuations, rural estate management, rural planning, farm and land sales, rural grants and subsidies, and rural lets and tenancies across Leicestershire, Northamptonshire, Nottinghamshire, and Rutland. As an estate agent and letting agent in Loughborough, here at Andrew Granger & Co we’ll gladly offer property advice and have experienced and knowledgeable staff that are only too happy to help you with selling a property or helping you to find the right one in the Loughborough area and its distinct market.






Floorplan
Area stats