Land for sale
Key information
Features and description
- Residential Development Site
- Planning Consent for 5 x 5 Bedroom Houses
- GDV Approx: £3.5 M
- Stunning Rural Location
- Sale Of Separate Plots May Be Considered
Video tours
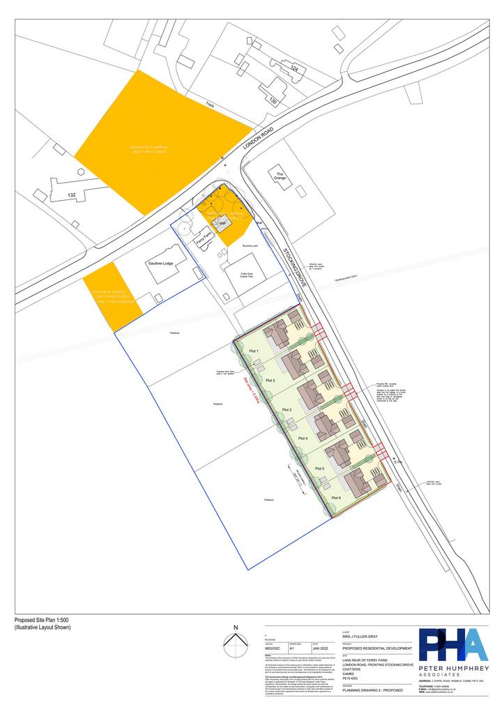
An attractive opportunity to purchase a residential development site with planning consent for the construction of 5 × 5 bedroomed detached properties located off London Road just outside Chatteris.
Planning - The original outline planning consent was granted by Fenland District Council on the 7th July 2023 for the erection of up to six detached dwellings with garages and new vehicular accesses (reference F/YR23/0077/O)
A Reserved Matters Consent was granted on the 3rd June 2025 for the appearance and landscaping of five properties (reference F/YR25/0185/RM)
Each of the five plots is approximately 869 square metres / 9,354 square feet
Once built the properties at plots 2 and 6 will consist of 279 square metres / 3,003 square feet of accommodation and the properties at plots 3, 4 and 5 will be 263 square metres / 2,831 square feet).
The vendor may consider selling plots separately.
Property information from this agent
Area statistics
About this agent






























Floorplans (
Area stats