Plot for sale
Key information
Features and description
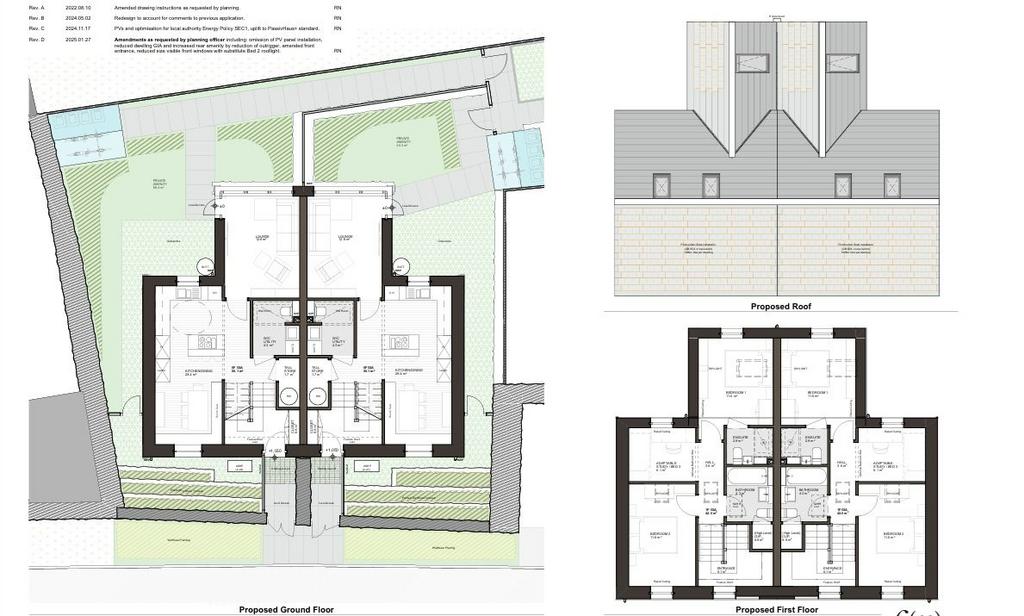
- Building plot for two houses
- Planning permission granted
- Plans available online
- Application no: pa24/08622
- Close to coastpath & village
- Fantastic opportunity
Video tours
DESCRIPTION
A sizeable plot of land in sought after Boscaswell Village, near Pendeen village centre with planning permission approved for the construction of two beautifully designed, energy efficient homes with parking and gardens.
The plot sits in a fantastic position just a short walk from the rugged coastpath in Pendeen and similar distance from the amenities available in the centre of the village of Pendeen.
Each property is proposed as a semi-detached, three bedroom home with the master bedroom offering an ensuite shower room. The accommodation is designed thoughtfully with provision for outside space to the front and rear, as well as off street parking in a beautiful part of West Cornwall.
LOCATION
Pendeen is a fantastic village with a strong community spirit and much to offer residents. The area has a strong history linked to mining and is in the Cornish Mining World Heritage Site. The village offers a convenience shop, several pubs, a primary school, and various eateries within easy reach.
There is also the Centre of Pendeen; a brilliant resource that is well-used by locals for activities, markets, and festivities. Pendeen is a short walk to the rugged and wild West Cornwall coast.
THINGS TO KNOW
PLANNING APPLICATION NUMBER: PA24/08622
PERMISSION FOR: Two semi-detached energy efficient homes
APPLICATION STATUS: Approved, with conditions
PLANS AVAILABLE: Yes, online
Area statistics
About this agent










Area stats