Residential development for sale
Key information
Features and description
Location…
The fast growing South Lincolnshire market town of Boston is located approximately 115 miles to the north of London, 35 miles to the south-east of Lincoln, 50 miles to the east of Nottingham and 40 miles to the west of King’s Lynn.
The town is served by the main road networks of the A16, A17 and A52 trunk roads. It has a mainline connection to the East Coast Mainline, a large port, hospital, retail offering, good sporting facilities and a number of well-regarded schools.
Tattershall Road is located approximately 1 mile to the north of the town centre and is a largely residential area.
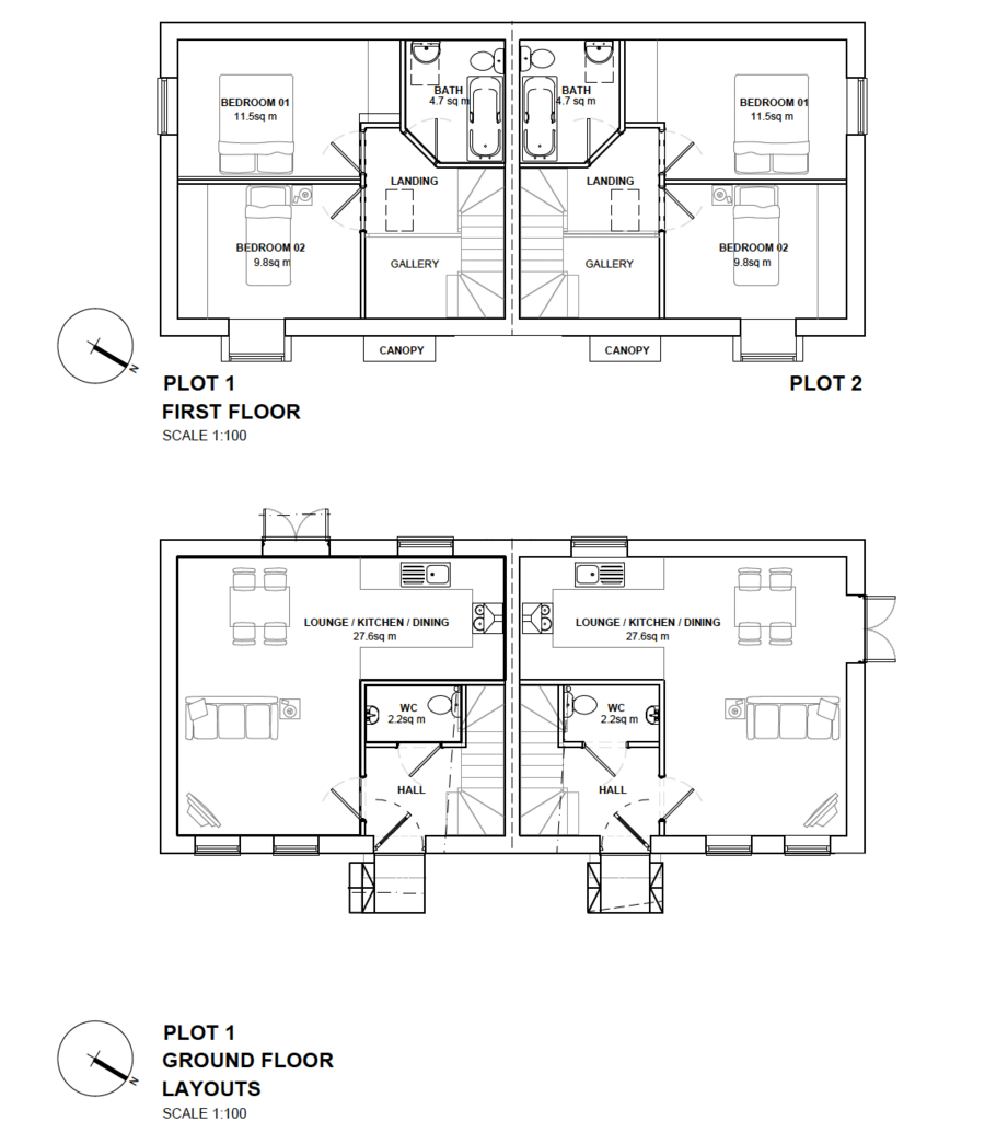
Site and location plans are included with these particulars.
Description…
The site comprises road frontage land located to the east of Tattershall Road opposite residential housing.
The land has dual planning permission B/24/0072 for a pair of two bedroomed semi-detached houses and garage.
The site also has planning permission B/22/0050 for a detached two storey dwelling with garage.
Full copies of the planning permission and plans are available on request.
Viewing…
Interested parties are welcome to view the land from the roadside at their convenience. Should they wish to access the land, this must be done via appointment with the agent.
All visitors are required to wear appropriate personal protective equipment (PPE). Poyntons Consultancy accepts no liability for any injury, damage, or loss sustained while accessing or viewing the site.
Property information from this agent
Area statistics
About this agent






Area stats