2 bedroom semi-detached house for sale
Key information
Features and description
- Potential to extend subject to pp
- South Westerly facing Garden
- Off road parking
- In need of refurbishment
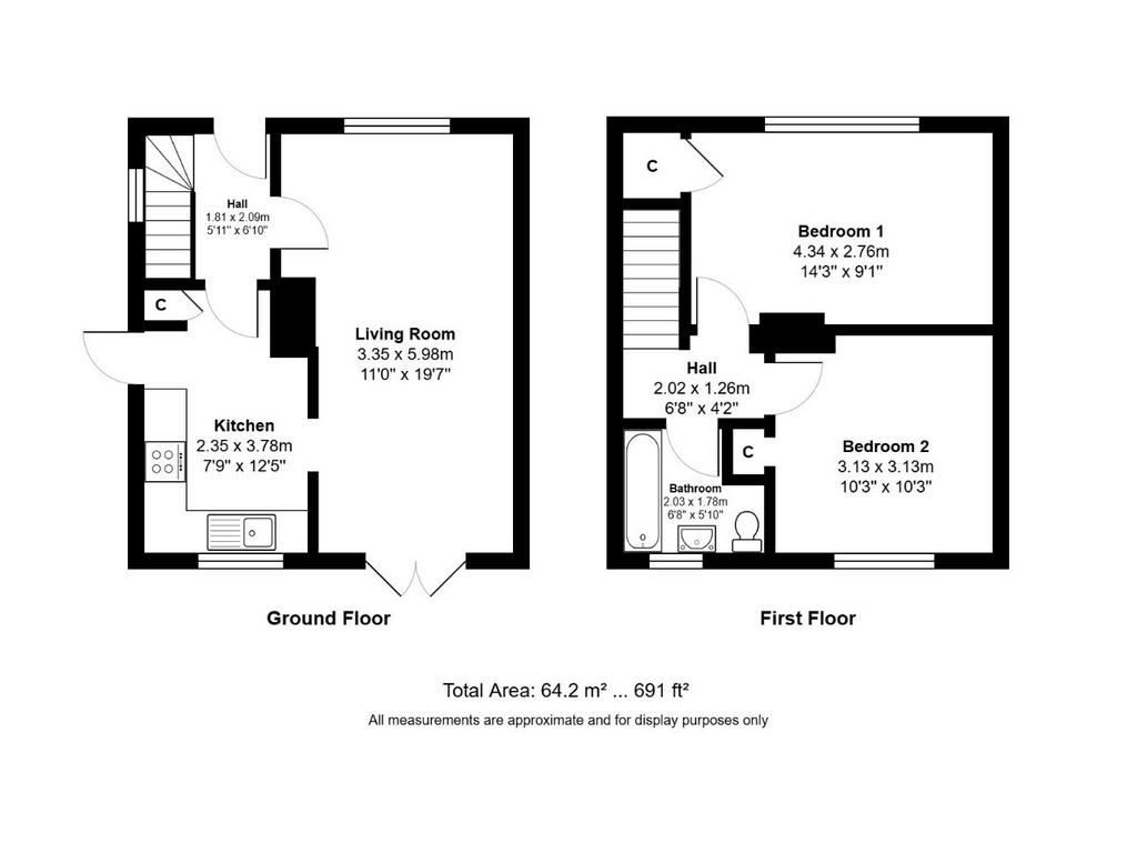
An opportunity to acquire a semi detached house in need of refurbishment, with the potential for a two story side extension to create a four bedroom dwelling. The property is located in a quiet cul de sac within a short level walk of the centre of Berkhamted town centre. The accommodation comprises of entrance hallway, kitchen, double aspect sitting room, on the first floor there are two large bedrooms and a bathroom. There is off road parking for three vehicles and a private south westerly facing rear garden.
Rooms
Entrance Hall
Stairs to first floor landing, understairs storage cupboard, replacement UPVC front door.
Kitchen
A range of wall and base units in white with four ring electric hob, stainless steel sink, electric Bosch, wall mounted Gas boiler, extractor hood.
Living Room
A double aspect room, with French doors to the rear garden, window to front, radiator, door to entrance hall.
Landing
Loft hatch, doors leading to
Bedroom One
Window to front, built in cupboard.
Bedroom Two
Window to rear garden.
Bathroom
Window to rear, panelled bath, wash hand basin, WC, tiled walls.
To the rear
A south westerly facing garden with panelled fencing, there is a four meter side garden which would be suitable space for a side extension.
To the front
With off road parking for three cars.
Extension potential
There is a 4 meter side garden area located behind the front bushes with potential for a two storey side extension. There is a house in the cul de sac opposite which has been extended two stories on the side.
Property information from this agent
About this agent









Floorplan