3 bedroom detached house for sale
Key information
Features and description
'Forelands' is a well-presented, detached house with a unique position enjoying panoramic coastal views over the beach of Budleigh Salterton and across Lyme Bay. The property benefits from direct acces onto the coastal path and beach.
The main accommodation comprises 3 bedrooms (1 ground floor), 2 reception rooms, kitchen, sun balcony, bathroom, utility room and separate w/c.Outside there is a good sized rear garden which is on the level and has a southerly orientation and provides direct access to the coastal path. Gas fired central heating and double glazing are installed throughout and all main services are connected.
There is allocated parking for one vehicle and 3 garages to the rear, with vehicular and pedestrian access through a passageway off Fore Street. There is a pedestrian right of access existing over the rear yard in favour of the adjoining property.
Rental:
The property was let on an Assured Shorthold Tenancy at an annual rent of £26,000 per annum.
Planning:
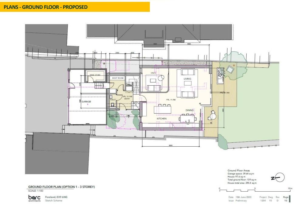
Planning permission was granted (application number 23/1019/FUL) on 1st September 2023 for the demolition of the existing house and the construction of a new build 3 storey principal residence.
Further information and full plans are available from the agents.
Budleigh Salterton lies within an Area of Outstanding Natural Beauty at the western most point of the East Devon Heritage Coast. The property is situated within a conservation area and identified in the East Devon Local Plan as forming part of the town centre shopping area.
Agents Notes
• The property is offered for sale freehold, by private treaty.
• All mains gas, drainage, water and electric are connected to the property.
• Council Tax Band G. Local Authority- East Devon District Council.
• All measurements, distances and areas listed are approximate. Fixtures, fittings and other items are NOT included unless specified in these details.
• Please note that any services, heating systems, or appliances have not been tested and no warranty can be given as to their working order. References to the tenure of a property are based on information supplied by the seller.
• We have not had sight of the title documents and a buyer is advised to obtain verification from their solicitor. Items shown in photographs are not included unless specifically mentioned within the sales particulars, but may be available by separate negotiation.
• We advise you to book an appointment to view before embarking on any journey to see a property, and check its availability.
Property information from this agent
About this agent





























Floorplan