Barn for sale
Key information
Features and description
- Agricultural Shed for conversion
- Class Q planning application - 2024/2370/PACOU
- 2/3 bedrooms
- Driveway parking
- Large garden
- Council Tax: TBC
- EPC rating TBC
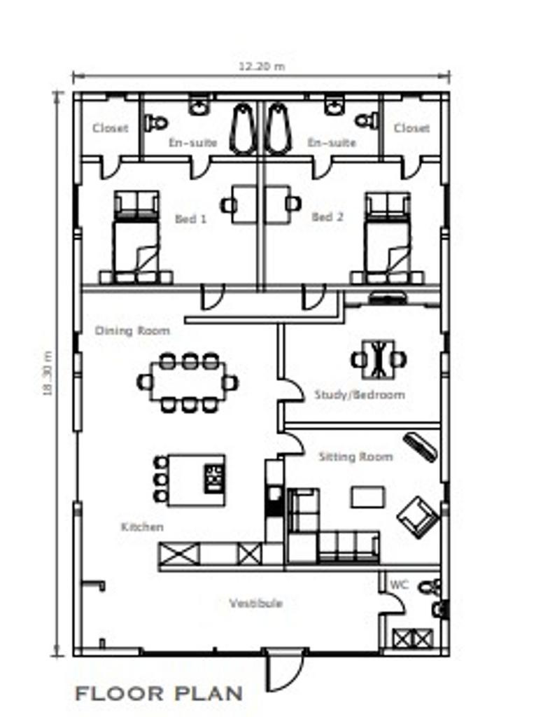
A rare and exciting opportunity to convert a quirky agricultural building in the peaceful village of Hoff, near Appleby. Full planning permission has been granted by Westmorland & Furness Council under a Class Q application (2024/2370/PACOU), allowing for conversion into a spacious and characterful residential home.
The approved plans include:
A large kitchen/diner
Lounge
WC
Study or third bedroom
Two additional double bedrooms both with ensuite bathrooms
Externally, the property is accessed via a shared track leading to a private driveway with ample parking space. To the rear, a generously sized garden offers fantastic open views of the surrounding countryside - an ideal setting for quiet rural living.
Utilities include a package treatment plant and drainage field (to be installed by the buyer), with mains electricity and water already available on site. The source of heating is to be chosen by the purchaser, allowing for flexibility in design and efficiency.
Set in a tranquil village location, this property is ideally situated for commuters seeking countryside living without sacrificing accessibility. A truly unique opportunity to create your dream home in the heart of the Eden valley.
Rooms
Services
Mains electricity & water. Drainage will be supplied by a package treatment plant with drainage field (to be installed by the buyers). Heating source is to be determined by the purchaser. We understand that mains gas is available within the village. Please note: measurements are approximate so may reflect the maximum dimensions and the mention of any appliances/services within these particulars does not imply that they are in full and efficient working order.
Referral & Other Payments
Referral & Other Payments
PFK work with preferred providers for certain services necessary for a house sale or purchase. Our providers price their products competitively, however you are under no obligation to use their services and may wish to compare them against other providers. Should you choose to utilise them PFK will receive a referral fee : Napthens LLP, Bendles LLP, Scott Duff & Co, Knights PLC, Newtons Ltd - completion of sale or purchase - £120 to £210 per transaction; Emma Harrison Financial Services – arrangement of mortgage & other products/insurances - average referral fee earned in 2024 was £221.00; M & G EPCs Ltd - EPC/Floorplan Referrals - EPC & Floorplan £35.00, EPC only £24.00, Floorplan only £6.00. Anti Money Laundering (AML) compliance check via Landmark referral between £8.50 to £15.50. All figures quoted are inclusive of VAT.
Directions
To locate The Agricultural Building, Hoff you can use the postcode CA16 6TA or by using What3words- amending.initial.ironclad. All viewings MUST be accompanied, please contact the office to make an appointment.
Garden
Large rear garden
Parking - Driveway
Driveway parking for multiple cars
Property information from this agent
Area statistics
About this agent







Area stats