Popular
Total views: 2500+
Guide price
£725,0004 bedroom detached house for sale
Horley, Surrey, RH6
Chain-free
Study
Detached house
4 beds
2 baths
1571
EPC rating: E
Key information
Tenure: Freehold
Council tax: Band E
Broadband: Ultra-fast 1000Mbps *
Mobile signal:
EEO2ThreeVodafone
Features and description
- 4 Double bedrooms
- No Chain!
- 1571 square foot (inc garage)
- Lounge
- Separate Dining room
- Large P shaped conservatory
- Kitchen Breakfast room
- Downstairs WC
- Ensuite to master
- Integral garage
Video tours
CHAIN FREE This attractive 1930s detached family home offers generous, versatile living space while retaining an abundance of period character. Ideally situated just 0.3 miles from Horley train station and within easy reach of schools, shops, leisure facilities, and the town centre, it’s perfectly positioned for both families and commuters.
The ground floor features a welcoming lounge with a beautiful bay window and original fireplace, a separate dining room with its own fireplace, and a well-appointed kitchen. A large conservatory to the rear provides a fantastic space for relaxing or entertaining while enjoying views over the mature, well-proportioned garden. A downstairs WC adds convenience, and the integral garage offers excellent potential for conversion into an additional reception room, home office, or playroom, subject to the usual permissions.
Upstairs, there are four generous double bedrooms. The largest bedroom benefits from a charming bay window and feature fireplace, while Bedroom 2 enjoys the added convenience of an en-suite shower room. A modern family bathroom serves the remaining bedrooms.
Externally, the property provides off-road parking for several vehicles to the front, while the private rear garden is mature, well maintained, and generously proportioned — perfect for outdoor entertaining or family enjoyment.
Located within easy walking distance of Horley train station (0.3 miles) and 0.6 miles from the town centre office, this property is also ideally placed for local schools, shops, and leisure facilities.
A fantastic opportunity to secure a spacious, characterful family home in a highly convenient and sought-after location, with further scope to extend or convert if desired.
The ground floor features a welcoming lounge with a beautiful bay window and original fireplace, a separate dining room with its own fireplace, and a well-appointed kitchen. A large conservatory to the rear provides a fantastic space for relaxing or entertaining while enjoying views over the mature, well-proportioned garden. A downstairs WC adds convenience, and the integral garage offers excellent potential for conversion into an additional reception room, home office, or playroom, subject to the usual permissions.
Upstairs, there are four generous double bedrooms. The largest bedroom benefits from a charming bay window and feature fireplace, while Bedroom 2 enjoys the added convenience of an en-suite shower room. A modern family bathroom serves the remaining bedrooms.
Externally, the property provides off-road parking for several vehicles to the front, while the private rear garden is mature, well maintained, and generously proportioned — perfect for outdoor entertaining or family enjoyment.
Located within easy walking distance of Horley train station (0.3 miles) and 0.6 miles from the town centre office, this property is also ideally placed for local schools, shops, and leisure facilities.
A fantastic opportunity to secure a spacious, characterful family home in a highly convenient and sought-after location, with further scope to extend or convert if desired.
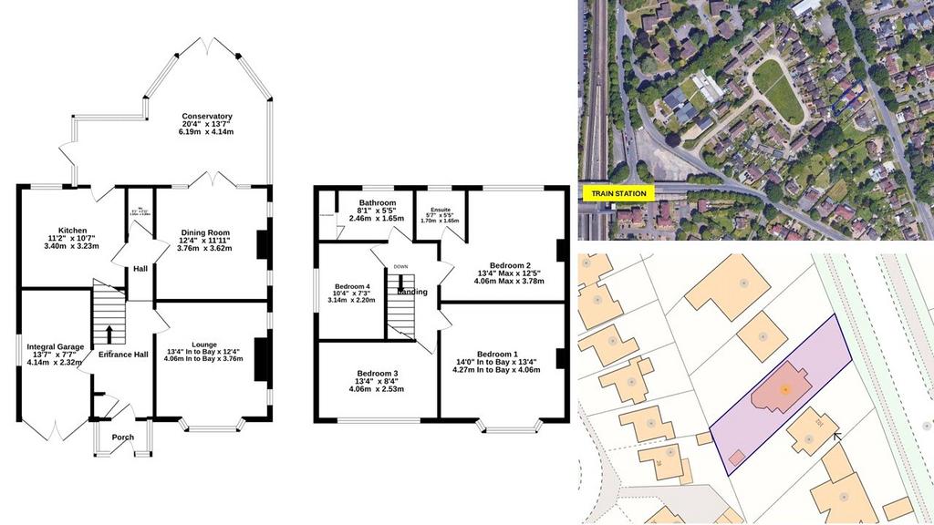
Rooms
Porch
Entrance Hall
Lounge
4.06m in to Bay x 3.66m
Dining Room 3.66m x 3.76m
Kitchen 3.4m x 3.23m
Conservatory 6.2m x 4.14m
Downstairs WC
Garage 4.14m x 2.3m
Bedroom 1
4.27m in to Bay x 4.04m
Bedroom 2
4.06m max x 3.78m
Ensuite Shower room 1.7m x 1.65m
Bedroom 3 4.06m x 2.54m
Bedroom 4 3.15m x 2.26m
Bathroom 2.46m x 1.65m
Property information from this agent
About this agent

Horley is home to our founding estate and letting agent’s office, and, we have a strong connection with the town. Our friendly, local team is on hand to help you buy or sell a house, or let a property in the Horley area and beyond. Award-winning estate & letting agents in Horley Here at Mayhews we have an unprecedented commitment to customer service and continually gain feedback to ensure we maintain the high standards of service we are known for in the local area. Our team of estate agentstake pride in helping our clients move in and around some of the most beautiful parts of Surrey. Due to our success over the years, and our 100% satisfaction rate, we have added new offices in East Grinstead and Horsham. About Horley Sitting below the neighbouring towns of Reigate and Redhill in Surrey sits the popular commuter town of Horley – ideal for travellers to London and south coast destinations. The town straddles the main railway line and the A23, and is very close to Gatwick Airport. A small, yet bustling town of just over 20,000 people, Horley is a delightful residential area with a vibrant community and a wide range of leisure activities, sporting facilities, associations and clubs to suit every interest. Horley is surrounded by community of villages, which include Earlswood, Copthorne, Salfords, and Burstow. The town benefits from an excellent transportation system – in addition to frequent trains to and from London, Gatwick, and the south coast, there’s frequent buses run by Fastway, local taxis, and great access to local main roads and motorways. Like East Grinstead, Horley’s history is particularly colourful, notably with its connections to Henry VIII who took ownership of Horley Manor in 1539 after the dissolution of the monasteries.
Similar properties
Discover similar properties nearby in a single step.

























Floorplan





