Croft for sale
Key information
Features and description
Owner Occupied Croft & Four Decrofted House Sites, 461 South Lochboisdale, Isle of South Uist, HS8 5UB
461 South Lochboisdale represents a rare opportunity to acquire an owner occupied croft extending to approximately 8.53 hectares and four decrofted house sites each extending to between 0.123 and 0.168 hactares. The croft and plots can be bought either separately or together as one package.
Offers: Over £40,000 are invited for each plot
Offers: Over £50,000 are invited for the croft
Offers: In the region of £200,000 for the croft and plots together
461 South Lochboisdale comprises four decrofted house sites and an owner occupied croft offered for sale on instruction of trustee in sequestration either separately or as a package.
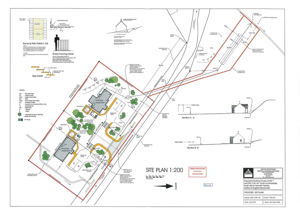
Each house site has detailed planning consent for an individually designed two or three bedroom dwelling (depending on the site). Full details are available on request.
In addition to the plots there is also an owner occupied croft with direct access to the shore.
The sale may be subject to reservation by the Seller of service (including private drainage) rights.
Croft:
The croft at 461 South Lochboisdale represents a rare opportunity to acquire an owner occupied croft extending to approximately 8.53 hectares.
The croft is split by the township road and includes a small headland and has direct access to the shore.
Interested parties are advised to consult a solicitor specialising in Crofting Law.
Further information regarding crofting can be found at
Crofting Register Croft Number: C7087
Crofting Commission Number: I5361
Plots:
The plots are located on the landward side of the township road and all have loch views.
Detailed planning permission for four individually designed houses has been granted by Comhairle Nan Eilean Siar under planning reference 22/00257 and 22/00258 on 7th December 2022.
Plot 1 has detailed permission for a single storey two bedroom dwelling. (0.123 Ha)
Plot 2 has detailed permission for a 1½ storey two bedroom dwelling. (0.123 Ha)
Plot 3 has detailed permission for a single storey two bedroom dwelling. (0.165 Ha)
Plot 4 has detailed permission for a 1½ storey three bedroom dwelling. (0.168 Ha)
Full details are available on request.
Each house site has been decrofted and extends to between 0.123 and 0.168 Ha (to be confirmed by Title Deed).
Location:
The crofting township of South Lochboisdale is located just off the B888 just south of Daliburgh.
Facilities in Daliburgh include the Borrodale Hotel, local primary school, Co-Op shop, community hall, petrol station and fish and chip shop. Secondary education is available at Liniclite, in Benbecula, which also houses a community swimming pool and library.
Lochboisdale is the main population centre on South Uist and just 5 miles from the property. Lochboisdale is also the port for ferries running to Oban, Barra and Mallaig. There are a number of facilities in Lochboisdale, including hotel, post office with coffee shop, garage, and police station. Balivanich, on the neighbouring Isle of Benbecula is some 28 miles to the north, has the small airport with a regular service to the mainland.
The isles of North and South Uist together with Benbecula are a haven for wildlife.
The property is also within easy reach of the glorious sandy beaches on the west coast of the island.
Viewings: Strictly by appointment through this agency.
Directions: Heading south on the B888 from Daliburgh you will see a left hand turning signposted South Lochboisdale. Take this turning and follow this road. You will come to a large U-shaped property on your left. The croft is on either side of this property spanning both sides of the road including access to the shore and the plots are on the landward side of the road.
About this agent













