Popular
Total views: 2500+
Offers in region of
£250,000Residential development for sale
Torquay TQ2
Residential development
Key information
Features and description
- Building Plot with Planning Consent
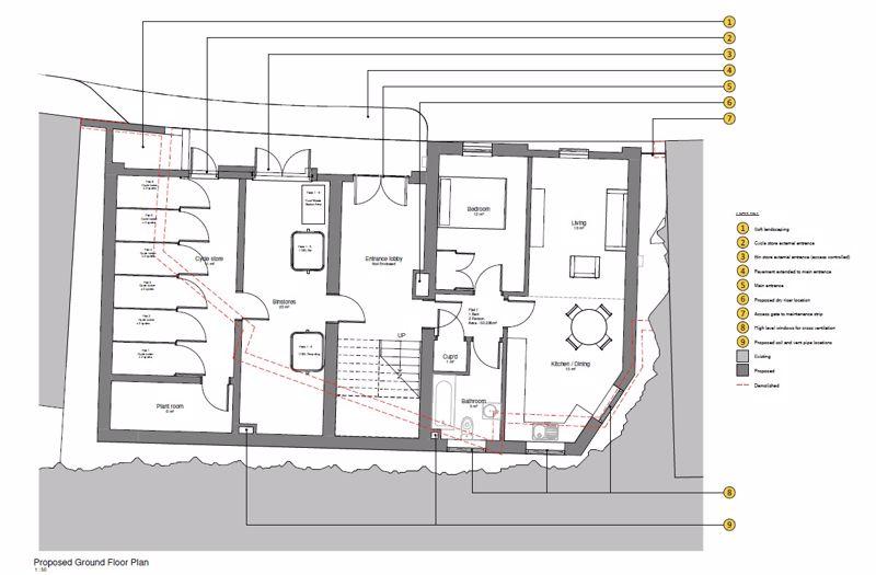
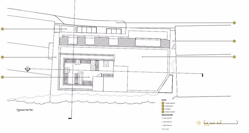
- Consent Granted for 6 Dwellings
- 3 x One Bed Flat, 2 x Two Bed Flat & 1 x Three Bed Flat
- Cleared Site Ready to Build
- An Excellent Opportunity - Not to be Missed!
Building Plot with Planning Consent. Consent Granted for 6 Dwellings.
The site is located on Melville Street in an elevated position, close to Torquay town centre and all its amenities. Torquay harbour is a short distance away.
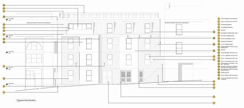
The site has planning permission granted under application P/2023/0838 for the erection of an apartment building containing 6 dwellings, 2 with balconies (flats 4 & 6).
Internal cycle and refuse storage and extension of pedestrian footway. Demolition of retaining wall to allow for ground floor construction.
OFFERS ARE INVITED ON AN UNCONDITIONAL BASIS.
Tenure: Freehold
Property information from this agent
About this agent

For all your business needs throughout the South West and beyond










