Plot for sale
Key information
Features and description
- Prime development plot
- Superb views across Ramsey Bay
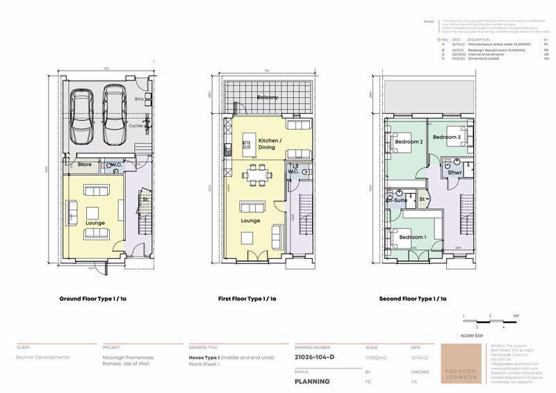
- Planning permission for the development of eight townhouses and associated car parking and landscaping
- Planning permission number 22/01340/B. Expiry August 2028
This is a rare and exciting opportunity to acquire a generous 0.50 acre plot with planning permission in place for the construction of eight elegant townhouses, thoughtfully designed to make the most of the stunning seafront setting. The approved scheme, under Planning Permission 22/01340/B (valid until August 2028), allows for the creation of six spacious four-bedroom homes and two stylish three-bedroom properties, each with private garaging, landscaped surroundings, and parking.
The location is unrivalled - a blend of coastal serenity and urban convenience - making it ideally suited for high quality residential development in an area where demand for modern, well-located homes continues to grow.
With planning already secured and the groundwork laid for a landmark residential scheme, this is an exceptional chance for developers or investors to create something truly special on the island's picturesque northern coastline.
Tenure: Freehold
Property information from this agent
About this agent




















