2 bedroom detached bungalow for sale
Key information
Features and description
- Modern Method Of Auction - T & C's Apply
- Reservation Fee Payable
- Unusual but exciting opportunity
- 2 bed, 2 bathroom, 2 reception room bungalow
- Currently used as 2 dwellings
- Extensive gardens back on to farmland and plenty of parking
- Planning for detached 3 bedroom house
- Immense potential for variety of uses
- Multi generation living, holiday lets etc
- No onward chain
Video tours
Modern Method Of Auction - T & C's Apply
Exciting opportunity and offered for sale with no onward chain. A two bedroom, two bathroom, & two reception room bungalow with a large conservatory together with gardens that have planning permission for the erection of a detached three-bedroom house. This provides immense potential, once built, to use the overall accommodation in a variety of ways over and above as a straight forward multi generation home. For example, shorthold lettings or even holiday lettings. The property enjoys a pleasant location toward the centre of this small but popular village. The bungalow is currently divided in to two separate dwellings and the new build has to be in conjunction with the original property as an annexe.
The existing bungalow(s) comprise – hall, sitting room, conservatory, kitchen, bedroom and bathroom together with further accommodation in the adjoining of hall, kitchen, sitting room with fold away bed, bedroom and shower room. The properties have electric heating.
The detached annexe was granted permission by North Kesteven District Council on 13.10.2017 under application reference 17/0928/FUL for the erection of detached annexe. Link to NKDC planning portal
17/0928/FUL | Erection of detached annexe | Land Adjacent To 94A The Stables High Street Martin Lincoln Lincolnshire LN4 3QT
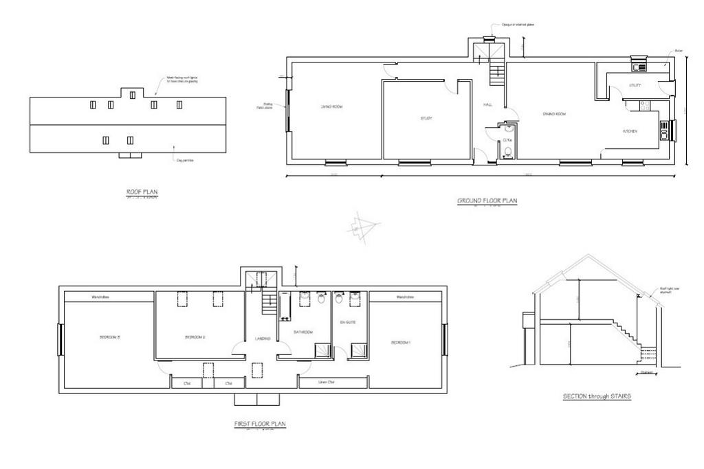
This would provide accommodation to include hall, WC, lounge, study or potential 4th bedroom, dining kitchen, landing, three double bedrooms, en suite shower room and main bathroom.
Outside the property has an extensive driveway providing ample parking. The main grounds are to the rear and currently extensive lawn backing on to adjacent farmland hence quite private.
AGENTS NOTE The property is situated in a conservation area. The driveway is owned by 94a but nos 92 and 94 have a right of access over and share maintenance costs. There is a public footpath through the property but we are informed by the vendors that to their knowledge this has not been used during their ownership.
Rooms
BUYING CONDITIONS
This property is for sale by the Modern Method of Auction, meaning the buyer and seller are to Complete within 56 days (the "Reservation Period"). Interested parties personal data will be shared with the Auctioneer (iamsold).If considering buying with a mortgage, inspect and consider the property carefully with your lender before bidding.A Buyer Information Pack is provided. The winning bidder will pay £349.00 including VAT for this pack which you must view before bidding.The buyer signs a Reservation Agreement and makes payment of a non-refundable Reservation Fee of 4.5% of the purchase price including VAT, subject to a minimum of £6,600.00 including VAT. This is paid to reserve the property to the buyer during the Reservation Period and is paid in addition to the purchase price. This is considered within calculations for Stamp Duty Land Tax.Services may be recommended by the Agent or Auctioneer in which they will receive payment from the service provider if the service is taken. Paym
Entrance Hall
Rear Bungalow Kitchen
3.34m x 2.99m - 10'11" x 9'10"
Bathroom
2.38m x 3.33m - 7'10" x 10'11"
Rear Bungalow Sitting Room
4.15m x 3.34m - 13'7" x 10'11"
Rear Bungalow Conservatory
3.9m x 3.46m - 12'10" x 11'4"
Rear Bungalow Bedroom
3.75m x 3.32m - 12'4" x 10'11"
Front Bungalow Kitchen
3.26m x 3.16m - 10'8" x 10'4"
Front Bungalow Sitting Room
4.79m x 3.01m - 15'9" x 9'11"
Shower Room
2.06m x 1.76m - 6'9" x 5'9"
Front Bungalow Bedroom
3.26m x 2.81m - 10'8" x 9'3"
Area statistics
About this agent






























Floorplan
Area stats