Popular
Total views: 2500+
Plot for sale
Dan Y Bryn, Llanmiloe, Carmarthen
Study
Plot
Key information
Tenure: Freehold
Council tax: Ask agent
Features and description
- Freehold Plot
- Full Planning Permission
- Brilliant Investment Opportunity
- Sought After Location
- Planning Application No. PL/08000
- Four Bedrooms
- Ideal Family Home
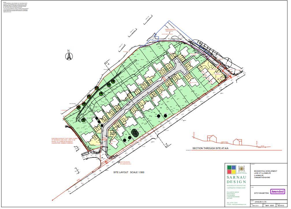
An exciting opportunity to purchase a plot in Llanmiloe with full planning permission. The plot is approximately 642 square meters and boasts an enviable location within Llanmiloe. The planning permission is for a detached house with a lovely L shape kitchen/diner/living room, a utility room study and downstairs WC on the ground floor. The first floor boasts the master bedroom with an en-suite, three further double bedrooms and the main family bathroom. The property benefits from a garage to the front of the property.
The plot can either be a great investment for someone looking to build the property for re-sale or an opportunity to build your own dream home in a popular location.
AGENT NOTE- The plot has mains drainage connections, with electricity and water available in the footpath adjacent.
Situated on the edge of the Carmarthenshire, Pembrokeshire border in West Wales, Pendine boasts a 7 mile beach stretching from Gilmore Point to Laugharne Sands where Malcolm Campbell and J.G. Parry-Thomas set the world land speed record five times between 1924 and 1927. The beach stretches for seven miles, and is well worth the visit.
GENERAL INFORMATION
VIEWING: By appointment only via the Agents.
TENURE: We are advised Freehold
SERVICES: We have not checked or tested any of the services or appliances at the property.
TAX: Band NA
FACEBOOK & TWITTER
Be sure to follow us on Twitter: @ WWProps
Any floorplans provided are included as a service to our customers and are intended as a GUIDE TO LAYOUT only. Dimensions are approximate. NOT TO SCALE.
ADD/REM/11/23
TAKEONOK/LLE/01/11/23
The plot can either be a great investment for someone looking to build the property for re-sale or an opportunity to build your own dream home in a popular location.
AGENT NOTE- The plot has mains drainage connections, with electricity and water available in the footpath adjacent.
Situated on the edge of the Carmarthenshire, Pembrokeshire border in West Wales, Pendine boasts a 7 mile beach stretching from Gilmore Point to Laugharne Sands where Malcolm Campbell and J.G. Parry-Thomas set the world land speed record five times between 1924 and 1927. The beach stretches for seven miles, and is well worth the visit.
GENERAL INFORMATION
VIEWING: By appointment only via the Agents.
TENURE: We are advised Freehold
SERVICES: We have not checked or tested any of the services or appliances at the property.
TAX: Band NA
FACEBOOK & TWITTER
Be sure to follow us on Twitter: @ WWProps
Any floorplans provided are included as a service to our customers and are intended as a GUIDE TO LAYOUT only. Dimensions are approximate. NOT TO SCALE.
ADD/REM/11/23
TAKEONOK/LLE/01/11/23
Property information from this agent
About this agent

West Wales Properties.Co.Uk is the leading independent estate agent in the area, with 10 high profile computer linked offices. West Wales Properties was founded in 1992 with its first office opening in Haverfordwest, quickly followed by the opening of the Narberth and Milford Haven offices. Further expansion into the south of Pembrokeshire with the opening of the Pembroke, and Tenby in addition to offices at Fishguard, Cardigan, Carmarthen, Newcastle Emlyn and Llanelli. In 2000 West Wales Properties joined up with an associated office in Mayfair, London which concentrates on achieving maximum exposure through the national media. West Wales Properties is not just about buying and selling houses, we offer a full range of services including Commercial Sales, Letting, Property Management, Financial Services, Survey and Conveyancing. West Wales Properties is known for setting the standards in service. We were the first company to have fully computerised linked offices. West Wales Home Rentals is a separate division, which offers a property management service on Residential Properties throughout Pembrokeshire. This division is under the management of Mrs Lorene Trivette. The company is always striving to improve the service it offers by sending out questionnaires to clients after selling their property to get feedback on the service they have received. To see some of the comments from the questionnaires returned over the past six month. In 2012 the company invested in purchasing new offices in Pembroke and refurbishing Tenby. In 2013 the Milford Haven and Haverfordwest offices were refurbished. In 2014 the Carmarthen office was re-located to a more central position within the town and a state of the art showroom and offices. Some of the West Wales Properties.Co.Uk offices and West Wales Home Rentals operate under a franchise agreement and are bound by the Policy, Procedures and the code of practice the NAEA and The Property Ombudsman.










Floorplan