Detached house
New build
Detached house
0.80 acre(s)
Key information
Tenure: Freehold
Council tax: Ask agent
Features and description
- 0.08 Acre Self Build Plot
- Two Bedrooms
- Dormer Bungalow
- Integral Garage
- Full Planning Permission
- Ref: 22/02314/ful
Bradley Hall is delighted to be appointed to market this residential development opportunity in Longhoughton, Northumberland. The development would see the construction of a single residential dwelling with associated parking and garden.
LOCATION
The subject site is located within Longhoughton, a quaint village located within the heart of the Northumberland countryside, situated approximately 1.5 miles inland of the beautiful Northumberland coastline. The village is home to the highly regarded Running Fox Cafe which provides an excellent food and drinks service, a primary school and a local Co-Op supermarket. The market town of Alnwick which provides a wide arrange of local amenities including supermarkets, busy high street and a large number of tourist attractions is within a short drives distance whilst the beaches of Sugar Sands, Boulmer and Seaton Point are all within close proximity.
The A1 is accessed approximately 2.8 miles from the property providing great road access both north and south. Access to the east coast mainline is available at Alnmouth train station 3 miles to the south which provides direct routes to Edinburgh and Newcastle within an hour.
The property is situated in a quiet and peaceful position to the northern end of the village.
DESCRIPTION
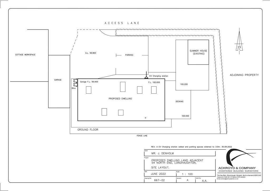
The site comprises approx. 0.08 acres (0.03 hectares) and benefits from full planning permission for the erection of a single dwelling. The site is rectangular in shape, relatively level and readily developable with lawn covering. An existing summer house and decking would be retained.
Purchasers will need to make their own enquiries into services available to the site.
PLANNING PERMISSION
Planning permission is granted under reference 22/02314/FUL.
The permission will allow the development of a two bedroom dormer bungalow with integral garage, two off street car parking spaces, lawn and decking areas.
The house would be arranged to provide entrance lobby, W/C, large open plan kitchen, dining living area and garage to the ground floor. To the first floor there would be a large gallery landing with void to the ground floor, a store room, two double bedrooms and a family bathroom.
TENURE
The site is sold freehold with vacant possession.
VAT
All rents, premiums and purchase prices quoted herein are exclusive of VAT. All offers are to be made to Bradley Hall on this basis, and where silent, offers will be deemed net of VAT.
LEGAL COSTS
Each party is to bear their own legal costs involved in the transaction.
LOCATION
The subject site is located within Longhoughton, a quaint village located within the heart of the Northumberland countryside, situated approximately 1.5 miles inland of the beautiful Northumberland coastline. The village is home to the highly regarded Running Fox Cafe which provides an excellent food and drinks service, a primary school and a local Co-Op supermarket. The market town of Alnwick which provides a wide arrange of local amenities including supermarkets, busy high street and a large number of tourist attractions is within a short drives distance whilst the beaches of Sugar Sands, Boulmer and Seaton Point are all within close proximity.
The A1 is accessed approximately 2.8 miles from the property providing great road access both north and south. Access to the east coast mainline is available at Alnmouth train station 3 miles to the south which provides direct routes to Edinburgh and Newcastle within an hour.
The property is situated in a quiet and peaceful position to the northern end of the village.
DESCRIPTION
The site comprises approx. 0.08 acres (0.03 hectares) and benefits from full planning permission for the erection of a single dwelling. The site is rectangular in shape, relatively level and readily developable with lawn covering. An existing summer house and decking would be retained.
Purchasers will need to make their own enquiries into services available to the site.
PLANNING PERMISSION
Planning permission is granted under reference 22/02314/FUL.
The permission will allow the development of a two bedroom dormer bungalow with integral garage, two off street car parking spaces, lawn and decking areas.
The house would be arranged to provide entrance lobby, W/C, large open plan kitchen, dining living area and garage to the ground floor. To the first floor there would be a large gallery landing with void to the ground floor, a store room, two double bedrooms and a family bathroom.
TENURE
The site is sold freehold with vacant possession.
VAT
All rents, premiums and purchase prices quoted herein are exclusive of VAT. All offers are to be made to Bradley Hall on this basis, and where silent, offers will be deemed net of VAT.
LEGAL COSTS
Each party is to bear their own legal costs involved in the transaction.
Property information from this agent
About this agent

We are a multi-disciplinary chartered surveying and property consultancy with more than 25 years’ experience of the local housing market.Operating primarily from our Durham, Gosforth and Alnwick offices, our residential team is made up of highly qualified, motivated staff who pride themselves on offering an unrivalled personal service to homebuyers and sellers. We guide you through the sales process from instruction through to completion and strive to make this journey as hassle-free as possible.With our in-depth local knowledge, we are best placed to provide advice on the valuation, acquisition, disposal and letting of a wide range of homes. Our extensive marketing and negotiation skills enable us to get the best deal for you in a timely and efficient manner.We also provide consultancy services on a diverse range of regeneration projects, from city centre residential developments to mixed-use out-of-town schemes.








Floorplans (