Popular
Total views: 2500+
From
£450,0002 bedroom house for sale
Charlton Lane, West Farleigh, Maidstone
New build
EV charger
Solar panels
House
2 beds
1 bath
Key information
Tenure: Freehold
Council tax: Ask agent
Broadband: Ultra-fast 1800Mbps *
Mobile signal:
EEO2ThreeVodafone
Features and description
PRICES FROM £450,000 - £525,000 - An exciting opportunity has arisen to purchase a brand new home on this exclusive complex in the heart of the rural village of West Farleigh. Currently under construction, if reserving early enough, the fortunate buyers will be able to choose their own carpets & wall colours. The kitchen & bathroom suites will be good specification. There are 2 single storey dwellings, ideal for those who want to live in a quiet, tranquil setting & have no stairs to worry about! The remaining two plots are two storey & extend to over 1300 sq ft. In summary, accommodation in each unit consist of two bedrooms, stunning bathroom & an open plan kitchen/dining/living room. Each property benefits from 2 x allocated parking spaces. EV charging points, cycle storage & solar panels. More information can be found on Maidstone Borough Council Planning web portal, reference 23/505810/Full. Anticipated build completion October 2025. Off plan reservations are now being taken. Contact Page & Wells on[use Contact Agent Button]
Location - West Farleigh is a rural, yet convenient location, surrounded by picturesque walks. The county town of Maidstone is about 4 miles distant, where a vast range of amenities can be found.
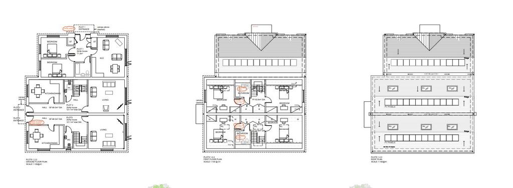
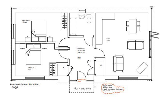
Properties Available - An exclusive development of 4 x new build homes built on Elmscroft Farm. There is a mix of one & two storey dwellings, all benefitting from two allocated parking spaces.
Plot 1 - With a total internal area of 71.2 sq m - £450,000 - £475,000
Plot 2- With a total internal area 121.1 sq m - £475,000 - £495,000
Plot 3- With a total internal area 121.1 sq m - £500,000 - £525,000
Plot 4- With a total internal area 71.2 sq m - £450,000 - £475,000
Agents Note - The information provided for marketing purposes is accurate at the time of print, however, our clients reserve the right to make any necessary material amendments to the construction and design at any point. Any such changes will be communicated to all relevant parties as soon as practical.
Key Features - * 4 x new build properties
* Reservations being taken off plan
* Single storey & Two storey available
* EV Charging points
* Choice of carpets & wall colours (subject to early reservation)
* Two allocated parking spaces
* Quality kitchen & bathrooms
* Cycle store
* Solar panels
* Underfloor heating throughout
* Engineered wood flooring to ground floor on all plots
* Bathrooms will be half tiled with Porcelanosa or similar
* Prices from £450,000 - £525,000
Contact - Page & Wells
52-54 King Street, Maidstone, Kent ME14 1DB
Tel.[use Contact Agent Button]
Email : [use Contact Agent Button]
Location - West Farleigh is a rural, yet convenient location, surrounded by picturesque walks. The county town of Maidstone is about 4 miles distant, where a vast range of amenities can be found.
Properties Available - An exclusive development of 4 x new build homes built on Elmscroft Farm. There is a mix of one & two storey dwellings, all benefitting from two allocated parking spaces.
Plot 1 - With a total internal area of 71.2 sq m - £450,000 - £475,000
Plot 2- With a total internal area 121.1 sq m - £475,000 - £495,000
Plot 3- With a total internal area 121.1 sq m - £500,000 - £525,000
Plot 4- With a total internal area 71.2 sq m - £450,000 - £475,000
Agents Note - The information provided for marketing purposes is accurate at the time of print, however, our clients reserve the right to make any necessary material amendments to the construction and design at any point. Any such changes will be communicated to all relevant parties as soon as practical.
Key Features - * 4 x new build properties
* Reservations being taken off plan
* Single storey & Two storey available
* EV Charging points
* Choice of carpets & wall colours (subject to early reservation)
* Two allocated parking spaces
* Quality kitchen & bathrooms
* Cycle store
* Solar panels
* Underfloor heating throughout
* Engineered wood flooring to ground floor on all plots
* Bathrooms will be half tiled with Porcelanosa or similar
* Prices from £450,000 - £525,000
Contact - Page & Wells
52-54 King Street, Maidstone, Kent ME14 1DB
Tel.[use Contact Agent Button]
Email : [use Contact Agent Button]
Property information from this agent
About this agent

Our head office is centrally located in Maidstone, the county town of Kent. Here you will find a well established team, with a wealth of experience in the property industry. Director, David Page heads up the office, whilst Steve Kidd is the branch manager. They are ably assisted by senior sales negotiator Michelle Varney & the newest member of our team, Katie Goldsmith. As a forward thinking agency, we have embraced the use of the innovative marketing tools that are now available, such as 3D floorplans, 3D Virtual tours & professional photography, which truly showcase a property listing. Whether buying or selling, we look forward to working with you on your property journey.










Floorplan