Plot for sale
Key information
Features and description
- Detached steel barn with planning for conversion
- Sought after location of Tidenham parish
- Far-reaching views towards the Severn Estuary
- Private location
- Plenty of parking for several vehicles
Video tours
This prime location and opportunity is particularly attractive to those seeking to blend rural charm with modern design facilities.
STEP INSIDE: - Nestled off a tranquil country lane that winds through the hamlet of Tidenham, this parcel of access land measuring approximately five acres presents a rare opportunity to create your dream property in a serene and picturesque setting.
As you approach, an inviting entrance guides you currently through a field, enveloping you in the natural beauty of this exceptional building opportunity, revealing the true potential that lies beyond the trees.
This secluded gem provides the perfect backdrop for the potential of an absolutely stunning residence, ensuring both privacy and a strong connection to nature, while remaining easily accessible to motorway links transportation and shops and restaurants in the nearby town of Chepstow.
Imagine crafting a sweeping driveway that gracefully leads you down to a charming barn, offering a glimpse of the expansive potential development that awaits. The impressive substantial footprint of the steel framed barn showcases the spaciousness and true flexibility of this development.
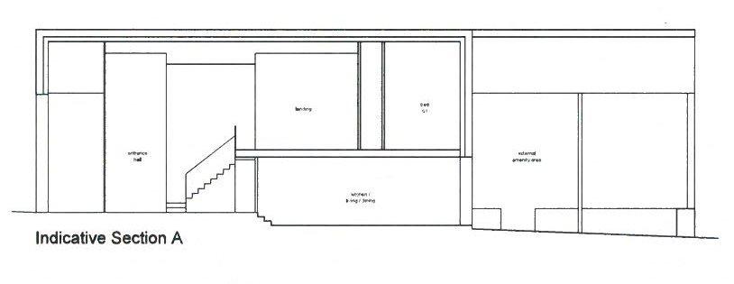
The planning permission granted by Forest of Dean Council on the 20th May 2024 (P0620/24/PQ3PA) will provide a large open plan living/kitchen/diner, three additional reception rooms, pantry, separate utility, boot room and two cloakrooms. The first floor will provide four en-suite double bedrooms, with the principal suite also benefitting from a walk in dressing room, plus a family bathroom.
This extraordinary opportunity invites your imagination to flourish. Whether you're a developer or someone looking to build a forever home, this property is brimming with potential and ready to be transformed into something truly special.
Outside - The property currently has access via a picturesque country lane, leading through an open field down to the barn building. This peaceful, rural atmosphere sets the tone for a retreat, complete with a sweeping track down to the property's distinctive steel frame barn.
The planning will also provide a covered seating area leading from the open plan living/kitchen/diner.
AGENTS NOTES:
Attached to the main barn is an additional open steel framed outbuilding and a condition of the planning approval is for the purchaser to remove this.
There is the option to purchase and additional acreage by separate negotiation (please ask agent for further details).
Mains water and electricity are available for connection but it is the purchasers responsibility to make their own enquiries with the relevant utility companies for connection and costs.
The land (approximately 5 acres) and barns are currently on one title with the additional surrounding land (available by separate negotiation), however, this will be split once a sale is agreed.
Public footpath and gate must be shut at all times due to animals still grazing in the entrance field.
The entrance to the field and along the hedge line of the field will stay with the current owner's ownership for access to the remaining fields that are being retained.
Viewings
Please make sure you have viewed all of the marketing material to avoid any unnecessary physical appointments. Pay particular attention to the floorplan, dimensions, video (if there is one) as well as the location marker.
In order to offer flexible appointment times, we have a team of dedicated Viewings Specialists who will show you around. Whilst they know as much as possible about each property, in-depth questions may be better directed towards the Sales Team in the office.
If you would rather a ‘virtual viewing’ where one of the team shows you the property via a live streaming service, please just let us know.
Selling?
We offer free Market Appraisals or Sales Advice Meetings without obligation. Find out how our award winning service can help you achieve the best possible result in the sale of your property.
Legal
You may download, store and use the material for your own personal use and research. You may not republish, retransmit, redistribute or otherwise make the material available to any party or make the same available on any website, online service or bulletin board of your own or of any other party or make the same available in hard copy or in any other media without the website owner's express prior written consent. The website owner's copyright must remain on all reproductions of material taken from this website.
Property information from this agent
Area statistics
About this agent




















Area stats