3 bedroom semi-detached house for sale
Key information
Features and description
- Two-storey semi-detached home in a prime location.
- Open-plan kitchen, dining, and living area with garden access.
- Ground floor includes W.C. and smart storage solutions.
- Master bedroom features an en-suite bathroom.
- Two additional bedrooms and a family bathroom upstairs.
- Attic trusses designed for future conversion possibilities.
- Private garden and off-road parking for convenience.
- Set in Waltham Village near shops, cafes, schools, and pubs.
The ground floor features a light-filled open-plan kitchen, dining, and living area, creating a versatile space for cooking, dining, and relaxing. The bifold doors open directly onto the private garden, perfect for alfresco dining or creating a safe play area for children. The ground floor also includes a separate W.C. and a storage area, ensuring practical living solutions.
Upstairs, the first floor is home to a master bedroom with its own en-suite, providing a peaceful retreat. Two additional bedrooms offer flexibility for family, guests, or even a dedicated workspace. A contemporary family bathroom completes the first-floor layout. Designed with Carr & Carr’s signature attention to detail, this property also includes attic trusses with the potential for future conversion, making it adaptable to your long-term needs.
Enjoy the best of village living with this home’s fantastic location in Waltham Village, known for its welcoming community and excellent amenities. Independent shops, cafes, and restaurants are just a short walk away, while the nearby 18-hole golf course and scenic countryside offer endless leisure opportunities. With its perfect blend of comfort, convenience, and quality, this home is an exceptional find.
Rooms
Broadband & Mobile Phone Coverage
Please use the following link to check the mobile phone and broadband coverage for this property.
Council Tax
We understand the council tax band for this property is currently being reassessed. All interested parties are advised to make their own enquiries. See
Sources Of Useful Information
Purchasers may find the following websites useful in providing additional information in respect of the property and the immediate surrounding area.
Mortgage Advice
Mortgage Advice Bureau works with Jackson, Green & Preston Estate Agents to provide their clients with expert mortgage and protection advice. We have access to over 12,000 mortgages from 90+ lenders so we can find the right mortgage to suit your individual needs. The expert advice we offer, combined with the volume of mortgages that we arrange, places us in a very strong position to ensure that our customers have access to the latest deals available and receive a first-class service. We will take care of everything from explaining all of your options and helping you select the right mortgage, to choosing the most suitable protection for you and your family and handling the whole application process.
Your home may be repossessed if you do not keep up repayments on your mortgage. There may be a fee for mortgage advice. The actual amount you pay will depend upon your circumstances. The fee is up to 1% but a typical fee is 0.3% of the amount borrowed.
Mortgage Advice Bureau (truncated)
About this agent

Similar properties
Discover similar properties nearby in a single step.











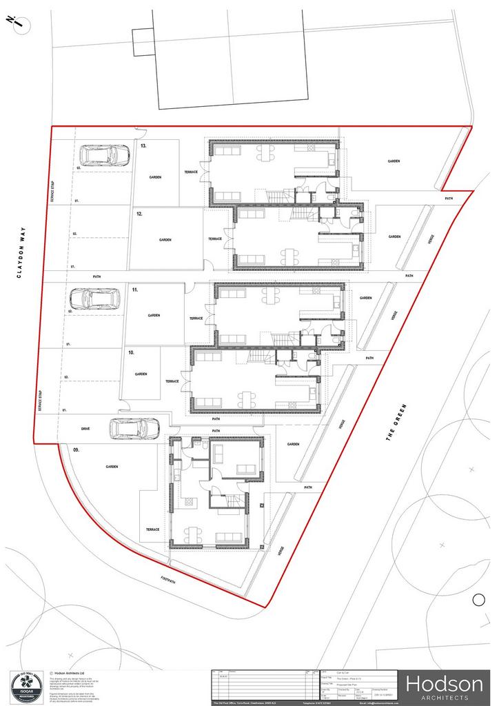
Floorplan
