2 bedroom terraced house
Key information
Features and description
- Free hold with no onward chain
- Gas central heating & double glazing
- Investment opportunity
- Scope to improve & add value
Video tours
* CHAIN FREE*TWO BEDROOM TERRACE PROPERTY*
With gas central heating, uPVC double glazing throughout this property is offered to market with no onward chain.
Offering potential buyers the chance to add vale, this investment property brief comprise; Entrance Hallway, Lounge, Kitchen and ground floor bathroom.
To the first floor are two double bedrooms and a spacious landing .
Externally to the rear is a good sized enclosed yard with two outhouses and access not the rear lane.
360 VIDEO TOUR:
Council Tax Band: A
Tenure: Freehold
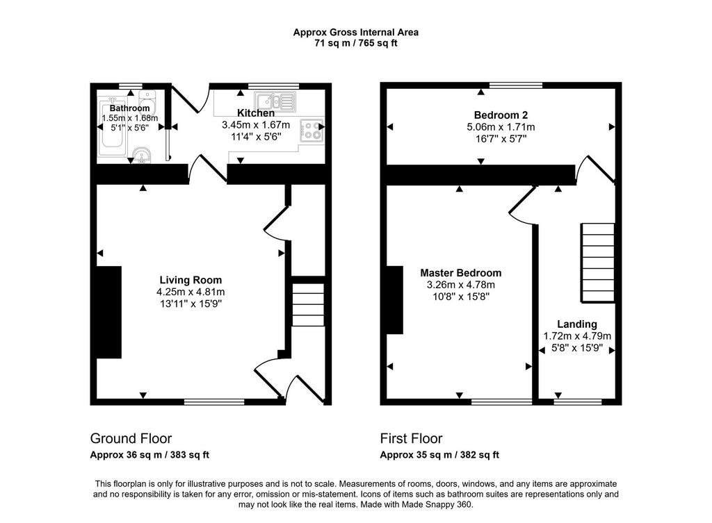
Rooms
Hallway 1.56m x 0.76m (5ft 1in x 2ft 5in)
Part-glazed uPVC front door, carpeted floor, stairs to first floor and access to the living room.
Living Room 4.64m x 4.12m (15ft 2in x 13ft 6in)
Carpeted floor, painted walls with feature wall paper to chimney breast and fire surround. Double-glazed window to front aspect, under stair storage cupboard and central heating radiator. Composite sink with mixer tap, gas boiler and double-glazed window to rear aspect.
Kitchen 2.28m x 1.75m (7ft 5in x 5ft 8in)
Part-glazed uPVCdoor to rear yard, vinyl flooring and part plastered, part tiled walls. Assortment of wall and base units with contrasting roll-top work surface, extractor, free standing gas oven and hob. Space and plumbing for washing machine,
Bathroom 1.69m x 1.57m (5ft 6in x 5ft 1in)
Vinyl florring, panelled bath with overhead shower, washbasin and pedestal with mixer tap and close-couple W/C. Double-glazed window to rear aspect and towel rail central heating radiator.
Landing 4.66m x 1.69m (15ft 3in x 5ft 6in)
Carpeted floor, double-glazed window to front aspect and central heating radiator.
Bedroom 1 4.66m x 3.21m (15ft 3in x 10ft 6in)
Carpeted floor, double-glazed window to front aspect and central heating radiator.
Bedroom 2 4.39m x 1.63m (14ft 4in x 5ft 4in)
Carpeted floor, double-glazed window to rear aspect and central heating radiator.
Rear External
Yard with two outbuildings, rendered boundary wall and wooden gate to back lane.
About this agent











Floorplan