3 bedroom property with land
Key information
Features and description
- Non estate building plot
- Fully approved set of building regulations
- Sought After Mawnan Smith
- No cil to pay
- Permission For High Spec Home
- Three Generous Ensuite Bedrooms
- Garage And Parking
The Plot
A very rare and exciting opportunity to purchase a non estate development opportunity within the extremely popular and sought after village of Mawnan Smith. The plot has detailed planning permission for the construction of an architect designed, detached reverse level three-bedroom home. The site sits in a slightly elevated position off Grove Hill, once constructed the property will enjoy an elevated west facing aspect and views across the valley opposite. A very attractive benefit of this site to any developer is that there is no CIL payable (Community Infrastructure Levy). The planning permission for the development was passed on the 26th March 2018 under the planning reference of PA18/00940.
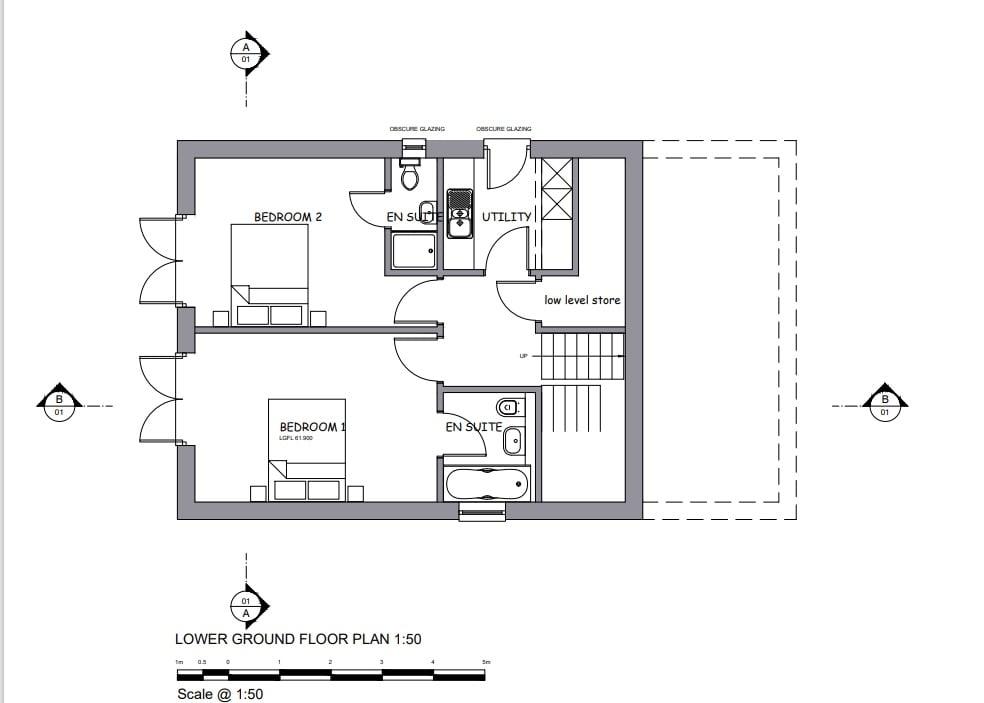
The property to be constructed will offer light and airy modern living, the design being reverse level will make the most of the slightly elevated position. The design of the property will provide a stunning triple aspect open plan central living space, this open plan living space enjoying direct access out to two sides and onto the West facing wrap around balcony and terrace area. The further spacious accommodation includes three generous double bedrooms, all with ensuite shower or bathrooms. The property will also provide an entrance hallway, cloakroom/w.c and a utility room.
The development commenced with the building of the garage, this providing a very useful store area for any potential build. The owners have also carried out a program of planting that provides natural screening to the site. We have also been informed that the site has mains services of water and drainage connected. We also understand that there is an electricity supply just within the boundary of the site. These services having already been placed on the plot will provide any prospective buyer a far easier start to the development.
In our opinion an increasingly rare opportunity to purchase such a site within the village of Mawnan Smith, it represents a truly exciting opportunity in this prime village location. All viewings to the site are to be escorted, please contact the office to arrange your viewing.
The Village of Mawnan Smith
Mawnan Smith is a very popular and sought after village situated between the Town of Falmouth and the Helford River. The village has a thriving community which is well served by a range of facilities including a general stores, well regarded primary school and pre school, a restaurant, coffee shop, hairdressers, Doctors surgery and the thatched Red Lion Public House. The renowned gardens at Trebah, Glendurgan and Carwinion are all within easy walking distance, as is the coastal footpaths that lead towards the Helford passage in one direction and Maenporth and Falmouth in the other. The beautiful Helford River with its safe sailing waters and moorings is within easy reach of this property with various footpaths providing access to both Durgan and the Helford. The Helford river provides some of the most sought-after day sailing waters in the south-west. The village is also close to the popular beaches close by that include Durgan, Maenporth and Swanpool, all of which are within easy reach.
Property information from this agent
About this agent














