Land for sale
Features and description
- Approx. Site Area: 231 Sq M (276 Sq Yds)
- Planning Permission: Granted for 4-bed detached house (Bury Council Ref: 70083)
- Floor Area: CIRCA 1650 Sq Ft
- Parking: Off-road parking for two cars
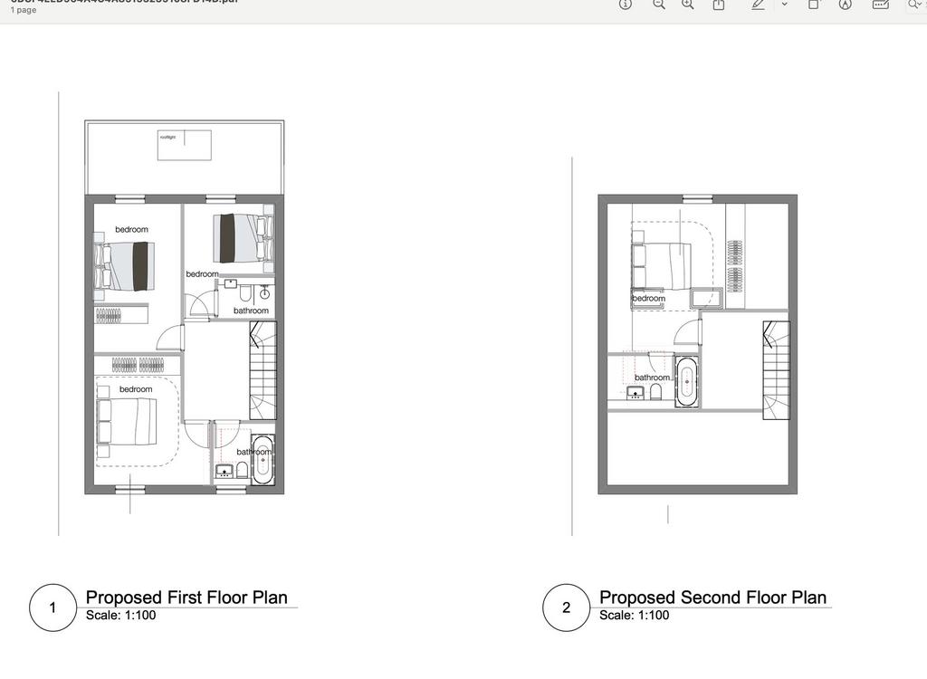
A fantastic opportunity to purchase a rectangular parcel of land with full planning permission for a spacious 4-bedroom detached house. The proposed development extends to approximately 1650 sqft and includes four double bedrooms, two ensuites, a reception room, a large open-plan kitchen/lounge/diner, and a separate utility room. The plans also allow for off-road parking for two cars.
Located on Walter Street, this site is moments away from the green spaces of Garner Mount, offering excellent access to scenic fields and popular dog walking routes. The area benefits from being part of Prestwich, an increasingly sought-after location known for its vibrant community, local shops, bars, and restaurants, all within walking distance on Bury New Road.
This plot is ideally situated for those seeking a blend of urban convenience and outdoor living, with Junction 17 of the M60 motorway less than a mile away, providing easy access into Manchester and beyond.
Prestwich has fast become one of Greater Manchester’s most popular up-and-coming areas, attracting those looking for suburban life with plenty of amenities and excellent transport links. The site is the perfect opportunity for someone looking to build their own dream home.
The vendor is reluctantly selling as they are unable to commence the project for 12 months. However, should the plot not sell, they are prepared to build the property themselves.
About this agent











