Popular
Total views: 2500+
Guide price
£150,000Plot for sale
Cookbury, Devon EX22
Plot
Key information
Tenure: Freehold
Council tax: Ask agent
Features and description
- Planning permission granted to convert a traditional stone barn to create a three-bedroom dwelling
- Forming part of a collective of four barns with planning permission granted, two of which are completed
- Idyllic rural setting with countryside views enjoyed
- Adjoining barn offering potential for conversion (STPP)
An exciting development opportunity to create a three-bedroom two storey barn conversion in an idyllic rural setting. The traditional stone barn forms part of a larger collective of barns to be converted (two of which are completed) at Upcott Barton, set just outside of Cookbury.
The property when constructed will provide three en-suite bedrooms including master with dressing room, open plan kitchen/dining/living room, utility room, office and WC. There is an adjoining stone barn offering further opportunity to convert, subject to gaining the necessary planning consents. The property would be accessed via a shared drive to the front of the property where there is a fenced off garden area with hardcore parking area to the side.
LOCATION
Situated on the edge of the charming hamlet of Cookbury, some 5 miles east of Holsworthy with its parish Church which has an unusual dedication to St John the Baptist and the Seven Maccabees and still has its 13th Century Tower and Chancel. Holsworthy has a good range of shops, to include a Waitrose and Co-op supermarkets in addition to the Marks and Spencer petrol station. There are also some excellent local leisure facilities to include an 18 hole Golf Course, indoor swimming pool and sports hall.
The wonderful North Cornish coastline is within 16 miles at Bude and offers a wide range of shopping, eateries, public houses and schooling facilities as well as a range of leisure pursuits including swimming pool, tennis courts, golf course and sandy beaches.
ACCOMMODATION
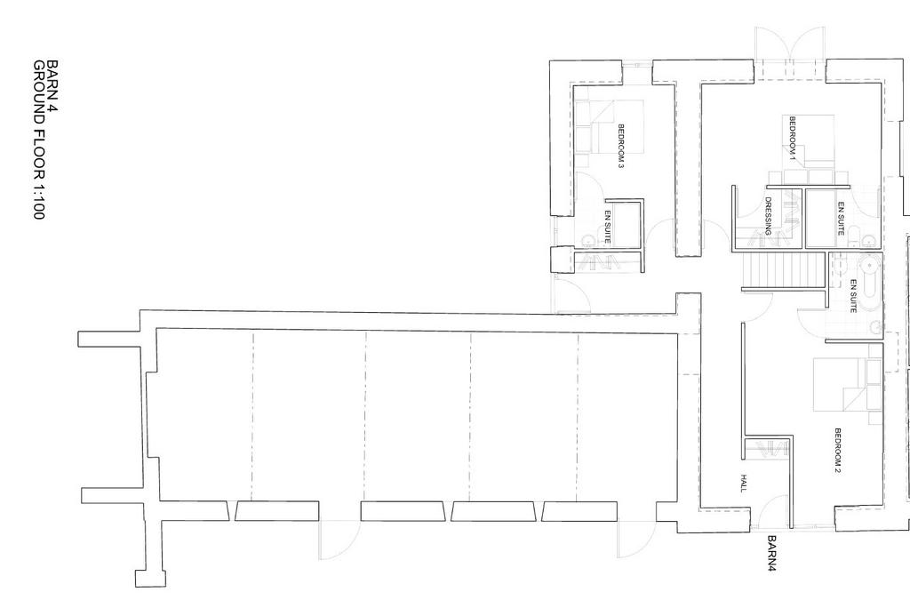
The planned accommodation is as follows: Bedroom One En-Suite Dressing Room
Bedroom Two En-Suite
Bedroom Three En-Suite
First Floor:
Open plan kitchen/dining/living room Utility Room
Office
WC
OUTSIDE
The property is approached over a shared drive to the front of the property. There is a fenced off lawn area to the front with hardcore area to the side offering parking a patio potential
PLANNING
Planning consent the conversion of four barns to four residential dwellings was granted by Torridge Council under cover of application number 1/1277/2017/FUL. A full copy of the planning consent may be obtained from the Torridge District Council website.
Please note that two of the barns submitted under this application have since been completed.
TENURE
Freehold
SERVICES
It is considered mains electricity and water are available in the vicinity. However, prospective purchasers must verify such availability and cost of connection for all services themselves. Private drainage will be required.
DEVELOPER CHARGES
To our knowledge there is no on or off-site affordable contribution, Community Infrastructure Levy, Education or Transport contribution payable in respect of this site. Buyers must satisfy themselves prior to purchase with regards to any potential charges due.
PROPOSED FLOOR PLAN
The proposed floor plans are not to scale and are for identification purposes only.
LAND PLAN
The land plan displayed is for indicative purposes only and should not be relied upon as a depiction of precise boundaries.
DIRECTIONS
From Holsworthy take the A3072 Hatherleigh road and at Anvil Corner take the left hand turning, signposted ‘Bideford/Cookbury/ Thornbury’. Proceed on this road and after approximately ½ mile take the right hand turning signposted ‘Cookbury’ and proceed along this road for approximately ½ mile where the property will be found on the right handside.
WHAT THREE WORDS LOCATION
///pulses.splint.hopefully
IMPORTANT NOTICE
Kivells, their clients and any joint agents give notice that:
1. They are not authorised to make or give any representations or warranties in relation to the property either here or elsewhere, either on their own behalf or on behalf of their client or otherwise. They assume no responsibility for any statement that may be made in these particulars. These particulars do not form part of any offer or contract and must not be relied upon as statements or representations of fact.
2. Any areas, measurements or distances are approximate. The text, photographs and plans are for guidance only and are not necessarily comprehensive. It should not be assumed that the property has all necessary planning, building regulation or other consents and Kivells have not tested any services, equipment or facilities. Purchasers must satisfy themselves by inspection or otherwise.
The property when constructed will provide three en-suite bedrooms including master with dressing room, open plan kitchen/dining/living room, utility room, office and WC. There is an adjoining stone barn offering further opportunity to convert, subject to gaining the necessary planning consents. The property would be accessed via a shared drive to the front of the property where there is a fenced off garden area with hardcore parking area to the side.
LOCATION
Situated on the edge of the charming hamlet of Cookbury, some 5 miles east of Holsworthy with its parish Church which has an unusual dedication to St John the Baptist and the Seven Maccabees and still has its 13th Century Tower and Chancel. Holsworthy has a good range of shops, to include a Waitrose and Co-op supermarkets in addition to the Marks and Spencer petrol station. There are also some excellent local leisure facilities to include an 18 hole Golf Course, indoor swimming pool and sports hall.
The wonderful North Cornish coastline is within 16 miles at Bude and offers a wide range of shopping, eateries, public houses and schooling facilities as well as a range of leisure pursuits including swimming pool, tennis courts, golf course and sandy beaches.
ACCOMMODATION
The planned accommodation is as follows: Bedroom One En-Suite Dressing Room
Bedroom Two En-Suite
Bedroom Three En-Suite
First Floor:
Open plan kitchen/dining/living room Utility Room
Office
WC
OUTSIDE
The property is approached over a shared drive to the front of the property. There is a fenced off lawn area to the front with hardcore area to the side offering parking a patio potential
PLANNING
Planning consent the conversion of four barns to four residential dwellings was granted by Torridge Council under cover of application number 1/1277/2017/FUL. A full copy of the planning consent may be obtained from the Torridge District Council website.
Please note that two of the barns submitted under this application have since been completed.
TENURE
Freehold
SERVICES
It is considered mains electricity and water are available in the vicinity. However, prospective purchasers must verify such availability and cost of connection for all services themselves. Private drainage will be required.
DEVELOPER CHARGES
To our knowledge there is no on or off-site affordable contribution, Community Infrastructure Levy, Education or Transport contribution payable in respect of this site. Buyers must satisfy themselves prior to purchase with regards to any potential charges due.
PROPOSED FLOOR PLAN
The proposed floor plans are not to scale and are for identification purposes only.
LAND PLAN
The land plan displayed is for indicative purposes only and should not be relied upon as a depiction of precise boundaries.
DIRECTIONS
From Holsworthy take the A3072 Hatherleigh road and at Anvil Corner take the left hand turning, signposted ‘Bideford/Cookbury/ Thornbury’. Proceed on this road and after approximately ½ mile take the right hand turning signposted ‘Cookbury’ and proceed along this road for approximately ½ mile where the property will be found on the right handside.
WHAT THREE WORDS LOCATION
///pulses.splint.hopefully
IMPORTANT NOTICE
Kivells, their clients and any joint agents give notice that:
1. They are not authorised to make or give any representations or warranties in relation to the property either here or elsewhere, either on their own behalf or on behalf of their client or otherwise. They assume no responsibility for any statement that may be made in these particulars. These particulars do not form part of any offer or contract and must not be relied upon as statements or representations of fact.
2. Any areas, measurements or distances are approximate. The text, photographs and plans are for guidance only and are not necessarily comprehensive. It should not be assumed that the property has all necessary planning, building regulation or other consents and Kivells have not tested any services, equipment or facilities. Purchasers must satisfy themselves by inspection or otherwise.
Property information from this agent
About this agent

Kivells can be traced back to 1885 when William Thomas Kivell set himself up in business as an auctioneer and land agent, first in Pyworthy and then in Holsworthy. What follows is an account of the Kivell family over four generations in the development of the firm of Kivells, from its origins as a one-man business in the late nineteenth century to its position today as one of the leading firms of Auctioneers, property agents and chartered surveyors in the West Country. William Kivell went on to grow the business and was joined by his sons forming Kivell and Sons, selling farm property and holding livestock auctions. Kivells is a very different firm from that founded by William Thomas Kivell in 1885, however the nature of the business and its ethics remain the same all be it with a much larger area of operation. The firm has recently became a limited company with one of the five directors being David Kivell, a great-grandson of William Kivell. It is organised around five divisions:- Agricultural sales and auctions (including the 3 livestock markets at Holsworthy, Hallworthy and Exeter and on farm sales throughout the Westcountry). Farm, Residential and Commercial Property (covering sales, auctions and lettings). Professional and Valuation work (including surveys, property management, rent reviews and full project management) Machinery and Heritage department (specialise in the sale of steam engines and all manner of vehicles, agricultural and domestic bygones). Kivells now operate from 5 main offices (Exeter, Holsworthy, Launceston, Liskeard and Bude) and 3 market centres (Holsworthy, Exeter and Hallworthy) and the firm employs around 170 full and part-time staff.







