5 bedroom property with land for sale
Key information
Features and description
- Rare opportunity to acquire a building plot benefitting from full planning permission for the erection of a magnificent 'gateway building' into Chepstow Town.
- Potential to build a sizable bespoke five-bedroomed residence with a double garage designed by award-winning local architects.
- Monmouthshire County Council Planning Ref DM/2022/00956
- Nestled in an exclusive, private location in the heart of Historic Chepstow, the plot offers breathtaking views of the town, estuary, and Wye Valley from an elevated position.
- Ideal for commuters, the plot is situated in a fantastic location boasting excellent transport links to surrounding areas and is just a short walking distance from Chepstow town centre.
Further benefits include a linked double garage with additional storage and utility area with the addition of household and visitor parking.
The land is situated in a convenient location with excellent commuter links in the heart of Chepstow’s Georgian Conservation Area with the picturesque Wye Valley and Forest of Dean a short drive away.
Under planning reference DM/2022/00956 dated 18th December 2023, Monmouthshire County Council have granted full planning permission on appeal for the erection of a detached dwelling and garage. The proposed dwelling affords fantastic substantial and versatile living accommodation arranged over three floors and offering an opportunity to construct a grand, bespoke family home. The site extends to 750m2 and enjoys secluded gardens.
Rooms
Situation
Just a short walk from the centre of the historic town of Chepstow where you can find an extensive array of facilities including, supermarkets including Marks and Spencer & Tesco, schooling at Chepstow Comprehensive and The Dell Primary School, doctors surgeries, dentists, Chepstow community hospital, shopping facilities, leisure centre, bars and restaurants and the immediate environs offer wonderful footpaths which straddle the Wye Valley including the Offa's Dyke footpath and the Forest of Dean close by. Other nearby recreational facilities include golf courses and horse racing.
The M48 Severn Bridge is just one mile away, enjoying excellent access eastbound via the M48/M4 to Bristol and Parkway Railway Station and the M4/M5 interchange and London, westbound to Newport and Cardiff. Chepstow railway station provides regular rail links, whilst the bus station provides local services and links to Cardiff, Swansea and London Victoria.
Proposed Accommodation
The proposed accommodation will be arranged over three floors and briefly comprises:
Proposed Ground Floor
78 metres squared
Kitchen/Dining: 8.8m x 4m (35m2)
Snug: 4.5m x 6m (25m2)
Utility: 2.2m x 2.2m (4.3m2)
WC: 1.6m x 1.5m (2.4m2)
Terraces: 53m2
Proposed Lower Ground Floor
54 metres squared
Living Room: 5.5m x 4m (22m2)
Office/Bedroom 5: 3.2m x 4m (11.5m2)
Bathroom: 2.2m x 1.6m (3.5m2)
Plant/Store: 4.2m x 2m (8.3m2)
Terrace: 30m2
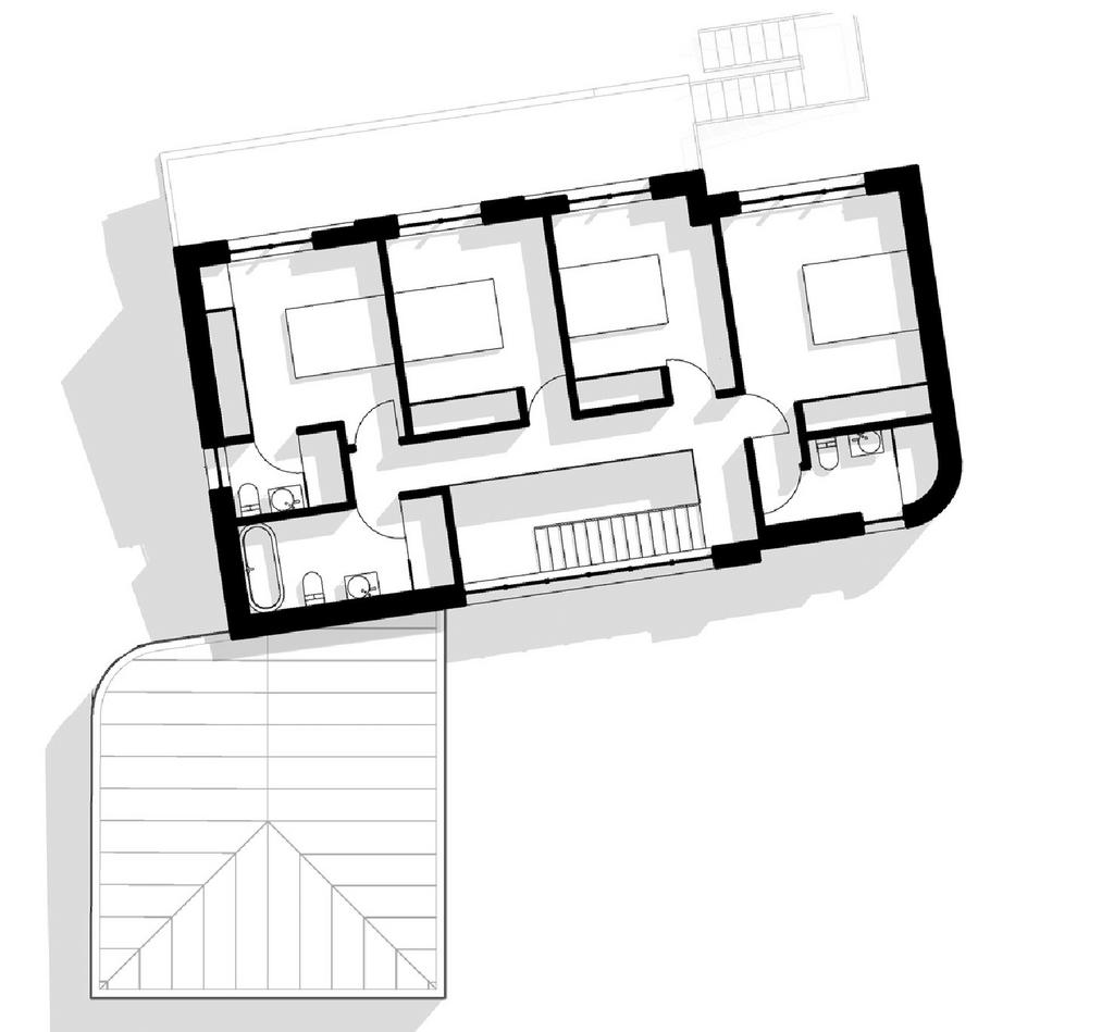
Proposed First Floor
84 metres squared
Bedroom 1: 3.4m x 4.8m (15m2)
Ensuite: 3.4m x 1.5m (5m2)
Bedroom 2: 3.4m x 3.7m (11.6m2)
Ensuite: 2m x 1.4m (3m2)
Bedroom 3: 3m x 3.7m (11m2)
Bedroom 4: 3m x 3.7m (11m2)
Bathroom: 3.9m x 1.7m (6.6m2)
Proposed Garage
7m x 6m (38m2)
Outside
The proposed would comprise a private driveway leading up to the property onto an extensive parking area with access to the property and double garage.
The property will sit amongst gardens of 345 metres squared with far reaching views across the River Severn and beyond.
Local Authority
Monmouthshire County Council.
Services
There is mains electricity and water available in the locality. Drainage will be private.
Tenure
We are informed the property will be Freehold, intending purchasers should verify this with their solicitor.
Property information from this agent
About this agent





























Floorplan