Popular
Total views: 2500+
Price on application
POALand for sale
Cherry Tree Lane, Soham CB7
Land
Features and description
- Proposed community facility on new development off cherry tree lane, soham, ely, cambridgeshire
PROPOSED COMMUNITY FACILITY ON NEW DEVELOPMENT OFF CHERRY TREE LANE, SOHAM, ELY, CAMBRIDGESHIRE.
Description - The site extends to approximately 0.0441 hectares (0.109 acres) as shown edged in red on the plan. The site is located on the northern edge of the proposed new development off Cherry Tree Lane, Soham which was granted outline planning permission (ref. 21/00291/OUM) on 31st October 2023. An application for Reserved Matters for the housing development was validated on 19th March 2024 and is currently pending consideration.
Under paragraph 9 of the Section 106 Agreement dated 27th October 2023 for the site, the Owners are required to submit a Community Facility Specification to the Council for approval prior to the submission of the first application for Reserved Matters. The Community Facility Specification set out below was approved by the Council on 4th March 2024.
Community Facility Specification - The Community Facility will be designed in accordance with the following criteria:
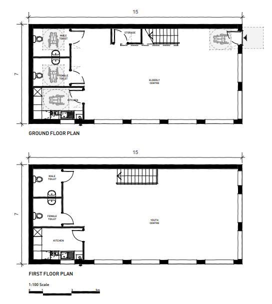
•Floor area of circa 200m² (2,150ft²) as shown on indicative floorplan (drawing no. P19-2275_16A).
•No more than two storeys in height.
•Number of car parking spaces to be provided in accordance with Local Plan Policy COM8.
•Provision of secured and covered cycle parking.
•External provision for servicing and refuse storage.
External Appearance - The Community Facility will need to be designed sympathetically to the appearance of the surrounding development using principally buff coloured bricks and dark grey tiles.
Access - Vehicular and pedestrian access to the site will be over the new estate roads which will be constructed to an adoptable standard and adopted by Cambridgeshire County Council. The vendor will construct an adoptable standard road to the boundary of the site within 18 months of commencing development on site which is anticipated to be January 2025.
The vendor will grant the purchaser a right of way over the estate road until such time as the road is adopted by the County Council subject to the purchaser making good damage which it causes to the estate road during construction of the Community Facility.
Electricity, Water And Telecoms - The vendor will provide electricity, water and telecoms services to the site with connection points in the footpath fronting the Community Facility with sufficient capacity for the Community Facility, the precise capacities to be agreed with the purchaser.
Foul And Surface Water Drainage - The vendor will provide foul and surface water drainage connections to the boundary of the property with sufficient capacity for the Community Facility, the precise capacities to be agreed with the purchaser.
The vendor will grant the purchaser a right to discharge thorough these pipes until such time as they are adopted subject to contributing towards the maintenance and repair of these pipes.
Timings - The purchaser will be required to submit an application for approval of Reserved Matters within 28 days of exchange of contracts and will be required to complete the build within 2 years of approval of Reserved Matters.
User - The purchaser will be obliged to enter into a covenant that the building will only be used for a Community Facility.
Tenure - The site is offered for sale with vacant possession on completion.
Value Added Tax - VAT will be chargeable on the sale price.
Method Of Sale - The site is offered for sale by private treaty.
Viewings - Viewings are strictly by appointment with the Agents:
Cheffins, 25 Market Place, Ely, Cambs. CB7 4NP.
[use Contact Agent Button]
[use Contact Agent Button]
[use Contact Agent Button]
Description - The site extends to approximately 0.0441 hectares (0.109 acres) as shown edged in red on the plan. The site is located on the northern edge of the proposed new development off Cherry Tree Lane, Soham which was granted outline planning permission (ref. 21/00291/OUM) on 31st October 2023. An application for Reserved Matters for the housing development was validated on 19th March 2024 and is currently pending consideration.
Under paragraph 9 of the Section 106 Agreement dated 27th October 2023 for the site, the Owners are required to submit a Community Facility Specification to the Council for approval prior to the submission of the first application for Reserved Matters. The Community Facility Specification set out below was approved by the Council on 4th March 2024.
Community Facility Specification - The Community Facility will be designed in accordance with the following criteria:
•Floor area of circa 200m² (2,150ft²) as shown on indicative floorplan (drawing no. P19-2275_16A).
•No more than two storeys in height.
•Number of car parking spaces to be provided in accordance with Local Plan Policy COM8.
•Provision of secured and covered cycle parking.
•External provision for servicing and refuse storage.
External Appearance - The Community Facility will need to be designed sympathetically to the appearance of the surrounding development using principally buff coloured bricks and dark grey tiles.
Access - Vehicular and pedestrian access to the site will be over the new estate roads which will be constructed to an adoptable standard and adopted by Cambridgeshire County Council. The vendor will construct an adoptable standard road to the boundary of the site within 18 months of commencing development on site which is anticipated to be January 2025.
The vendor will grant the purchaser a right of way over the estate road until such time as the road is adopted by the County Council subject to the purchaser making good damage which it causes to the estate road during construction of the Community Facility.
Electricity, Water And Telecoms - The vendor will provide electricity, water and telecoms services to the site with connection points in the footpath fronting the Community Facility with sufficient capacity for the Community Facility, the precise capacities to be agreed with the purchaser.
Foul And Surface Water Drainage - The vendor will provide foul and surface water drainage connections to the boundary of the property with sufficient capacity for the Community Facility, the precise capacities to be agreed with the purchaser.
The vendor will grant the purchaser a right to discharge thorough these pipes until such time as they are adopted subject to contributing towards the maintenance and repair of these pipes.
Timings - The purchaser will be required to submit an application for approval of Reserved Matters within 28 days of exchange of contracts and will be required to complete the build within 2 years of approval of Reserved Matters.
User - The purchaser will be obliged to enter into a covenant that the building will only be used for a Community Facility.
Tenure - The site is offered for sale with vacant possession on completion.
Value Added Tax - VAT will be chargeable on the sale price.
Method Of Sale - The site is offered for sale by private treaty.
Viewings - Viewings are strictly by appointment with the Agents:
Cheffins, 25 Market Place, Ely, Cambs. CB7 4NP.
[use Contact Agent Button]
[use Contact Agent Button]
[use Contact Agent Button]
Property information from this agent
Area statistics
Crime score
Low crime
1/10
About this agent

Established in 1825, Cheffins estate agency business operates from five offices across the Anglia region including Cambridge, Saffron Walden, Newmarket, Ely and Haverhill; we also have an office in London. We understand that moving house is a major event and we do everything we can to make it as smooth as possible. Cheffins has a proven track record in buying, selling and letting residential property. The team at Cheffins has significant market experience and buyers, sellers, landlords and tenants are accustomed to a dedicated personal and professional service delivered with integrity. Our London office team complement our regional expertise by getting exposure for your house to buyers and sellers in the capital providing an extra dimension to our regional service and making sure your house is seen by as many prospective buyers as possible. Call us today for a free, no obligation sales valuation on your property or to find out how much your property could be worth should you choose to rent it out.





Area stats