2 bedroom flat
Auction
Sold STC
Flat
2 beds
796
EPC rating: C
Key information
Tenure: Leasehold | 49 yrs left
Council tax: Ask agent
Features and description
Sold for £188,000.Guide Price = £110,000+
*For Sale By Online PublicAuction 31st July 2024 09:30 AM. To inspect the legal documents for this property go to our website to download the legal pack*
A Vacant Ground Floor Two Bedroom Flat
6 Week Completion Available
Tenure
Leasehold. The property is held on a 99 year lease from 1st December 1974 (thus approximately 49 years unexpired).
Location
The property is situated on a residential road close to local shops and amenities. The open spaces of Roundwood Park are within easy reach. Transport links are provided by Harlesden underground (Bakerloo line) and overground stations.
Description
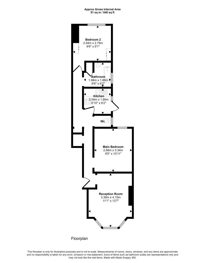
The property comprises a ground floor two bedroom flat situated within a mid terrace building arranged over ground and first floors.
Accommodation
Ground Floor
Reception Room
Kitchen
Two Bedrooms
Bathroom
Separate WC
Accommodation
Exterior
The property benefits from a rear garden.Note
Further Information
When purchasing a flat that has a short lease, it is important to understand that in addition to the purchase price, if you wish to extend the lease to 90+ years, you will need to pay a premium to the freeholder. This is done by way of serving a Section 42 notice to the freeholder requesting a lease extension with a suggested price for the extension. The freeholder has the right to refuse the offer and submit a counter notice with their suggested price. In most cases, the leaseholder must have owned the property for at least 2 years in order to serve a S42 notice. If you do not fully understand this process, please ask the auctioneers or a solicitor.
Planning
EPC Rating
F
Open House Viewings:
Viewing Schedule (No Booking Required)
Thursday 18 July 2024 11:00 AM - 11:30
Saturday 20 July 2024 12:15 PM - 12:45
Monday 22 July 2024 11:00 AM - 11:30
Wednesday 24 July 2024 11:00 AM - 11:30
Friday 26 July 2024 11:00 AM - 11:30
Saturday 27 July 2024 10:00 AM - 10:30
Tuesday 30 July 2024 11:00 AM - 11:30
*For Sale By Online PublicAuction 31st July 2024 09:30 AM. To inspect the legal documents for this property go to our website to download the legal pack*
A Vacant Ground Floor Two Bedroom Flat
6 Week Completion Available
Tenure
Leasehold. The property is held on a 99 year lease from 1st December 1974 (thus approximately 49 years unexpired).
Location
The property is situated on a residential road close to local shops and amenities. The open spaces of Roundwood Park are within easy reach. Transport links are provided by Harlesden underground (Bakerloo line) and overground stations.
Description
The property comprises a ground floor two bedroom flat situated within a mid terrace building arranged over ground and first floors.
Accommodation
Ground Floor
Reception Room
Kitchen
Two Bedrooms
Bathroom
Separate WC
Accommodation
Exterior
The property benefits from a rear garden.Note
Further Information
When purchasing a flat that has a short lease, it is important to understand that in addition to the purchase price, if you wish to extend the lease to 90+ years, you will need to pay a premium to the freeholder. This is done by way of serving a Section 42 notice to the freeholder requesting a lease extension with a suggested price for the extension. The freeholder has the right to refuse the offer and submit a counter notice with their suggested price. In most cases, the leaseholder must have owned the property for at least 2 years in order to serve a S42 notice. If you do not fully understand this process, please ask the auctioneers or a solicitor.
Planning
EPC Rating
F
Open House Viewings:
Viewing Schedule (No Booking Required)
Thursday 18 July 2024 11:00 AM - 11:30
Saturday 20 July 2024 12:15 PM - 12:45
Monday 22 July 2024 11:00 AM - 11:30
Wednesday 24 July 2024 11:00 AM - 11:30
Friday 26 July 2024 11:00 AM - 11:30
Saturday 27 July 2024 10:00 AM - 10:30
Tuesday 30 July 2024 11:00 AM - 11:30
Area statistics
Crime score
High crime
10/10
Home prices (average)
2 bedroom flats
£443,005
£443,005
About this agent

Auction House London is the largest branch of the Auction House UK brand. Auction House holds more auctions annually than any other firm of auctioneers in the UK and sold 4,957 properties throughout 2018 – over 1,000 properties more than our closest rivals. Co-founded by Andrew Binstock and Jamie Royston in 2011, Auction House London has grown year on year in its relatively short history to become one of the top 5 residential property auctioneers in the UK. We adopt a modern and dynamic approach to offering high quality auction facilities to both corporate and independent sellers and buyers. We firmly believe in the importance of extensive online marketing campaigns in addition to the traditional offline methods. Our forward thinking approach to auctions has been regularly applauded and we are very proud to be recognised as offering extremely high levels of customer service to all of our clients. With a proven track record in residential and commercial investments and property auctions, the team offers a fresh and energetic approach to their auctions, providing a quality service that achieves the right results for all parties.







Floorplan
Area stats