Plot
Plot
1.30 acre(s)
Key information
Features and description
A rarely available, generous plot with ‘Planning Permission in Principle’ for a detached house extending to approximately 1.3 acres, with far reaching views over Loch Ness in a much sought after location within easy commuting distance of Inverness.
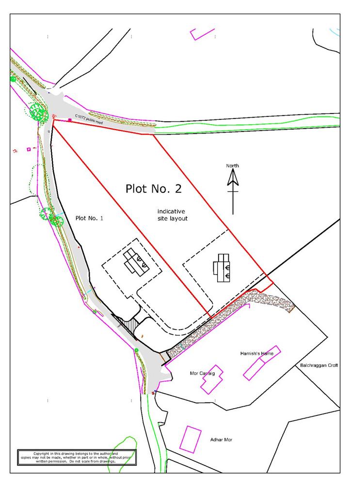
Plot 2 is of an excellent size extending to 1.3 acres, offering the purchaser the opportunity to not only build a house to their own specification, but also provides sufficient land for outbuildings and extensive gardens, together with superb open views across Loch Ness to the Monadhliath mountains.
Planning Permission in Principle was granted on the 17th of January 2024 under planning reference 23/00033/RBREF. Planning documents are available on request.
The plot is situated in an elevated position above the western shores of Loch Ness, it enjoys close proximity to the excellent local facilities provided by the Abriachan Forest Trust. With its 540 hectares, this unique community owned woodland facility, provides forest schools, outdoor activities, extensive trails for both the walker and the mountain biker, interfacing with the great Glen Way and also provides fabulous vantage points overlooking Loch Ness. or Facebook and Instagram pages.
The vibrant village hall provides many social and activity-based facilities, with an extensive all year round calendar of local community events. In June each year sees the Abriachan mini highland games and BBQ, the evening rounded of by local musicians. or Facebook and Instagram pages.
The Woodland Trust for Scotland, also close by, provides a wonderful landscape of walks along the western shore of Loch Ness with both stunning views and wildlife.
Mains water, BT and Electricity are close by, drainage will be to a waste water treatment plant.
From Inverness take the A82 towards Drumnadrochit, ignore the 1st road sign for Blackfold and Abriachan, continue through Lochend, after 2 miles you will see another signpost pointing to a right hand turn for Abriachan, turn right here and after one mile you will find a tarmacadam lane on your left hand side. Turning left you will find the plots situated on the left hand side of this lane, What3words///repayment.treetop.dares
Plot 2 is of an excellent size extending to 1.3 acres, offering the purchaser the opportunity to not only build a house to their own specification, but also provides sufficient land for outbuildings and extensive gardens, together with superb open views across Loch Ness to the Monadhliath mountains.
Planning Permission in Principle was granted on the 17th of January 2024 under planning reference 23/00033/RBREF. Planning documents are available on request.
The plot is situated in an elevated position above the western shores of Loch Ness, it enjoys close proximity to the excellent local facilities provided by the Abriachan Forest Trust. With its 540 hectares, this unique community owned woodland facility, provides forest schools, outdoor activities, extensive trails for both the walker and the mountain biker, interfacing with the great Glen Way and also provides fabulous vantage points overlooking Loch Ness. or Facebook and Instagram pages.
The vibrant village hall provides many social and activity-based facilities, with an extensive all year round calendar of local community events. In June each year sees the Abriachan mini highland games and BBQ, the evening rounded of by local musicians. or Facebook and Instagram pages.
The Woodland Trust for Scotland, also close by, provides a wonderful landscape of walks along the western shore of Loch Ness with both stunning views and wildlife.
Mains water, BT and Electricity are close by, drainage will be to a waste water treatment plant.
From Inverness take the A82 towards Drumnadrochit, ignore the 1st road sign for Blackfold and Abriachan, continue through Lochend, after 2 miles you will see another signpost pointing to a right hand turn for Abriachan, turn right here and after one mile you will find a tarmacadam lane on your left hand side. Turning left you will find the plots situated on the left hand side of this lane, What3words///repayment.treetop.dares
Property information from this agent
About this agent

Situated in the Capital of the Highlands, the Inverness office team provide a broad range of land agency services ranging from traditional estate management to utilities & pipelines, in addition to rural consultancy, estate agency and valuations. Bell Ingram Design also provide Building Surveying and Architectural services from the Inverness office.







