2 bedroom flat to rent
Key information
Letting details
- Available now
- Furnished
- Long term let
- Contract length: 12 months
- Min. term: 12 months
Features and description
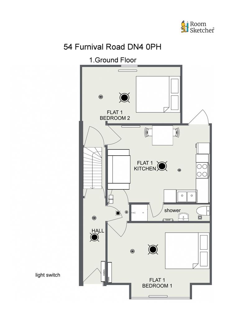
Welcome to 54 Furnival Road, Doncaster DN4 - a charming furnished ground floor flat available for long-term rent.
This lovely property boasts two double bedrooms & a modern shower room.
Kitchen/living area with washing machine, fridge freezer and integrated oven, hob and extractor fan.
The Big back garden is perfect for enjoying the outdoors.
Laminate floors, double glazed windows with blinds & electric heating throughout. Perfect for a single professional or couple looking for a comfortable home.
Situated in the bustling town of Doncaster, this flat is conveniently located near local amenities and public transport links. The nearby town centre offers a variety of shops, restaurants, and entertainment options, ensuring you'll never be bored.
Doncaster is also known for its rich history and cultural attractions, such as the historic Doncaster Minster and the Doncaster Museum and Art Gallery.
This property is ideal for those looking for a comfortable and convenient place to call home. Don't miss out on the opportunity to view this wonderful flat - contact us today to arrange a viewing.
Area statistics
About this agent








Area stats

