6 bedroom detached house
Premium display
Study
Detached house
6 beds
1 bath
0.93 acre(s)
Key information
Tenure: Freehold
Council tax: Band F
Broadband: Basic 11Mbps *
Mobile signal:
EEO2ThreeVodafone
Features and description
- Versatile farmhouse, outbuildings set in under an acre of grounds
- A pretty rural setting with beautiful countryside views
- Planning consent to convert barns to a holiday let (if preferred)
- Farmhouse in need of modernisation with potential to design to own specification
- Extensive parking
- Further land available by separate negotiation if required
- Additional linhay with planning consent for sale making potential for multi-generational living
- C. 12.5 miles to A30 and c. 14 miles to train station
Aish Barton is a six-bedroom Devon cross-passage longhouse, featuring more than 2,900 square feet of flexible accommodation in need of updating, presenting an exciting opportunity to create a modern family home. The property is steeped in character and history and even features in the Domesday Book. The property is set in approximately 0.93 acres and enjoys exceptional views over the Mid Devon countryside.
The ground floor has a comfortable sitting room which retains the original inglenook fireplace, now fitted with a woodburning stove. There is also a formal dining room, a drawing room and two further ground floor reception rooms, which could be utilised as a snug and a useful study space. The kitchen and breakfast room is well-proportioned and has space for a large breakfast table as well as all the necessary appliances including a Rayburn range cooker. The property benefits from an adjoining utility room providing further space for storage and appliances and a downstairs cloakroom.
Upstairs there are five double bedrooms including the generous, L-shaped principal bedroom, which has its own washbasin and the potential for an en suite bath or shower room subject to the necessary consents. There is also a sixth single bedroom. The first floor also has a family bathroom that has a bathtub and separate shower unit.
Further lots are available to buy. Additional land is also available by separate negotiation.
Planning permission
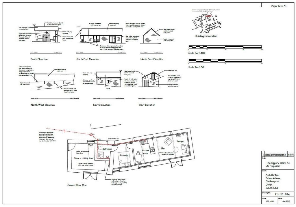
Piggery- Lounge | Kitchen | Bedroom with en suite | Holiday let permission
Planning reference: 1/0980/2022/FUL
Local Authority: Torridge District Council.
Services: Mains electricity and water. Private drainage which we understand is not compliant with current regulations. Oil-fired central heating.
Council Tax: Band F.
Wayleaves and Easements: The property is sold subject to any wayleaves or easements, whether mentioned in these particulars or not.
Rights of Way: National Grid has a right of access to reach the telegraph poles.
Tenure: Freehold.
Planning: Prospective purchasers are advised that they should make their own enquiries of the local planning authority.
Please note: Proposed boundaries are meant as a guide and may be subject to change.
Rights of way: There will be a right of way for neighbouring properties over the driveway to access their properties. Further information is available from the vendor's agent.
Torridge District Council Planning-
The farmhouse is set in approximately 0.93 acres and includes large grassy paddocks and pastures creating ideal spaces for exercising horses or for grazing animals. There are concrete courtyards and hardstanding which provide plenty of parking and access to the extensive traditional farm outbuildings, which total over 9000 sq ft. There is a workshop, garage and the six barns providing significant potential for redevelopment. The farmhouse enjoys gardens to the front and rear of the property that are mainly laid to lawn and bordered by a variety of mature specimen trees and hedgerow. Far reaching views over the neighbouring countryside can be enjoyed from most of the property’s grounds.
Additional land is available by separate negotiation.
The property is set in a rural location surrounded by beautiful Devon countryside,close to the small village of Petrockstowe and 10 miles north of the picturesque town of Okehampton. Petrockstowe has a parish church, while there are several shops in Hatherleigh, approximately four miles away. Okehampton offers a choice of shops, supermarkets and leisure facilities, while schooling in the area includes primary schools at Merton, Hatherleigh and an outstanding primary at nearby Highampton. Secondary schooling is available at Okehampton College (Ofsted 'Outstanding') and Exeter College (Ofsted 'Outstanding') together with a number of noted independent schools, including Shebbear College, Mount Kelly, West Buckland, Exeter School and Stover. The opportunities for outdoor pursuits in the area are endless. There is good walking, riding and cycling direct from the property, whilst the National Parks of Dartmoor and Exmoor are both within easy reach. Less than half a mile from the house is the Meeth Quarry Nature Reserve (150 hectares) which also joins up with the Tarka Trail where you can cycle, walk and
ride. The rugged beauty of the North Devon coastline is within driving distance, providing some of the best surfing in the UK, whilst the sandy beaches of South Devon are famous for sailing. For equestrian enthusiasts, there is The Grange near Okehampton (amongst others), which holds numerous events throughout the year. By road, the A30 provides fast and efficient connections to Exeter, and the M5. The nearest train station is Eggesford approximately 14 miles away offering services to Barnstaple and Exeter.
The ground floor has a comfortable sitting room which retains the original inglenook fireplace, now fitted with a woodburning stove. There is also a formal dining room, a drawing room and two further ground floor reception rooms, which could be utilised as a snug and a useful study space. The kitchen and breakfast room is well-proportioned and has space for a large breakfast table as well as all the necessary appliances including a Rayburn range cooker. The property benefits from an adjoining utility room providing further space for storage and appliances and a downstairs cloakroom.
Upstairs there are five double bedrooms including the generous, L-shaped principal bedroom, which has its own washbasin and the potential for an en suite bath or shower room subject to the necessary consents. There is also a sixth single bedroom. The first floor also has a family bathroom that has a bathtub and separate shower unit.
Further lots are available to buy. Additional land is also available by separate negotiation.
Planning permission
Piggery- Lounge | Kitchen | Bedroom with en suite | Holiday let permission
Planning reference: 1/0980/2022/FUL
Local Authority: Torridge District Council.
Services: Mains electricity and water. Private drainage which we understand is not compliant with current regulations. Oil-fired central heating.
Council Tax: Band F.
Wayleaves and Easements: The property is sold subject to any wayleaves or easements, whether mentioned in these particulars or not.
Rights of Way: National Grid has a right of access to reach the telegraph poles.
Tenure: Freehold.
Planning: Prospective purchasers are advised that they should make their own enquiries of the local planning authority.
Please note: Proposed boundaries are meant as a guide and may be subject to change.
Rights of way: There will be a right of way for neighbouring properties over the driveway to access their properties. Further information is available from the vendor's agent.
Torridge District Council Planning-
The farmhouse is set in approximately 0.93 acres and includes large grassy paddocks and pastures creating ideal spaces for exercising horses or for grazing animals. There are concrete courtyards and hardstanding which provide plenty of parking and access to the extensive traditional farm outbuildings, which total over 9000 sq ft. There is a workshop, garage and the six barns providing significant potential for redevelopment. The farmhouse enjoys gardens to the front and rear of the property that are mainly laid to lawn and bordered by a variety of mature specimen trees and hedgerow. Far reaching views over the neighbouring countryside can be enjoyed from most of the property’s grounds.
Additional land is available by separate negotiation.
The property is set in a rural location surrounded by beautiful Devon countryside,close to the small village of Petrockstowe and 10 miles north of the picturesque town of Okehampton. Petrockstowe has a parish church, while there are several shops in Hatherleigh, approximately four miles away. Okehampton offers a choice of shops, supermarkets and leisure facilities, while schooling in the area includes primary schools at Merton, Hatherleigh and an outstanding primary at nearby Highampton. Secondary schooling is available at Okehampton College (Ofsted 'Outstanding') and Exeter College (Ofsted 'Outstanding') together with a number of noted independent schools, including Shebbear College, Mount Kelly, West Buckland, Exeter School and Stover. The opportunities for outdoor pursuits in the area are endless. There is good walking, riding and cycling direct from the property, whilst the National Parks of Dartmoor and Exmoor are both within easy reach. Less than half a mile from the house is the Meeth Quarry Nature Reserve (150 hectares) which also joins up with the Tarka Trail where you can cycle, walk and
ride. The rugged beauty of the North Devon coastline is within driving distance, providing some of the best surfing in the UK, whilst the sandy beaches of South Devon are famous for sailing. For equestrian enthusiasts, there is The Grange near Okehampton (amongst others), which holds numerous events throughout the year. By road, the A30 provides fast and efficient connections to Exeter, and the M5. The nearest train station is Eggesford approximately 14 miles away offering services to Barnstaple and Exeter.















Floorplan