Land
Study
Land
7.00 acre(s)
Key information
Tenure: Freehold
Council tax: Ask agent
Features and description
A NEW LIFE IN THE COUNTRY.
An exciting opportunity to acquire a unique and attractive development/lifestyle opportunity with the benefit of a 5 acre paddock and stunning rural views.
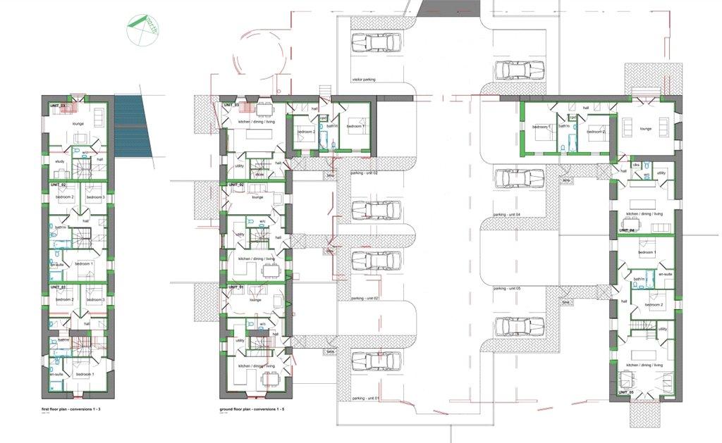
The steading building benefits from full planning permission (subject to conditions) under Ref 19/00369/FUL to create five well designed and attractive homes with accommodation outlined as below:
Unit 1 (2 storey) - Hall, kitchen/dining/living, utility, lounge, master bedroom with en-suite shower room, bedroom 2, bedroom 3, family bathroom.
Unit 2 (2 storey) - Hall, kitchen/dining/living, utility, lounge, master bedroom with en-suite shower room, bedroom 2, bedroom 3, family bathroom.
Unit 3 (2 storey) - Hall, kitchen/dining/living, utility, lounge, study, store, bedroom 1, bedroom 2, bathroom,
Unit 4 - Hall, kitchen/dining/living,utility,wc, lounge, bedroom 1, bedroom 2.
Unit 5 (2 storey) - Hall, kitchen/dining/living, utility, lounge, master bedroom with en-suite, bedroom 2.
Grazing paddock of circa 5 acres.
In all circa 7 acres.
The site would also lend itself to a buyer looking to create a wonderful detached home in one of the steadings, having a five acre paddock and converting the other steading into a mixture of an annexe and garaging for visiting guests, family or to create an additional income. This would be subject to amending the planning.
Situation:
Blackadder Bank occupies a rural yet accessible location, 2 miles equidistant from the pretty villages of Allanton and Whitsome and within 7.5 miles of Duns and 8.5 miles from Berwick upon Tweed, which both offer a good range of shops, educational and recreational facilities. Berwick upon Tweed also offers a mainline train station with regular routes to Edinburgh, Newcastle upon Tyne (both approx. 45 minutes) and London (circa hours).
Local contributions: Planning permission has been granted subject to a section 75 agreement which provides that the developer will pay to Scottish Borders Council the sum of £26,360 in respect of the steading.
A copy of the planning and section 75 agreement can be obtained using the online planning portal, quoting the ref planning refence as detailed above.
Please direct all enquiries to Rettie & Co - Berwick-upon-Tweed.[use Contact Agent Button]
An exciting opportunity to acquire a unique and attractive development/lifestyle opportunity with the benefit of a 5 acre paddock and stunning rural views.
The steading building benefits from full planning permission (subject to conditions) under Ref 19/00369/FUL to create five well designed and attractive homes with accommodation outlined as below:
Unit 1 (2 storey) - Hall, kitchen/dining/living, utility, lounge, master bedroom with en-suite shower room, bedroom 2, bedroom 3, family bathroom.
Unit 2 (2 storey) - Hall, kitchen/dining/living, utility, lounge, master bedroom with en-suite shower room, bedroom 2, bedroom 3, family bathroom.
Unit 3 (2 storey) - Hall, kitchen/dining/living, utility, lounge, study, store, bedroom 1, bedroom 2, bathroom,
Unit 4 - Hall, kitchen/dining/living,utility,wc, lounge, bedroom 1, bedroom 2.
Unit 5 (2 storey) - Hall, kitchen/dining/living, utility, lounge, master bedroom with en-suite, bedroom 2.
Grazing paddock of circa 5 acres.
In all circa 7 acres.
The site would also lend itself to a buyer looking to create a wonderful detached home in one of the steadings, having a five acre paddock and converting the other steading into a mixture of an annexe and garaging for visiting guests, family or to create an additional income. This would be subject to amending the planning.
Situation:
Blackadder Bank occupies a rural yet accessible location, 2 miles equidistant from the pretty villages of Allanton and Whitsome and within 7.5 miles of Duns and 8.5 miles from Berwick upon Tweed, which both offer a good range of shops, educational and recreational facilities. Berwick upon Tweed also offers a mainline train station with regular routes to Edinburgh, Newcastle upon Tyne (both approx. 45 minutes) and London (circa hours).
Local contributions: Planning permission has been granted subject to a section 75 agreement which provides that the developer will pay to Scottish Borders Council the sum of £26,360 in respect of the steading.
A copy of the planning and section 75 agreement can be obtained using the online planning portal, quoting the ref planning refence as detailed above.
Please direct all enquiries to Rettie & Co - Berwick-upon-Tweed.[use Contact Agent Button]
About this agent

Located in the historic town of Berwick Upon Tweed, our office is ideally placed to assist you in buying or selling property anywhere in this beautiful part of the country. Rettie Berwick offers the personal service for which the Rettie group are known, along with incomparable local knowledge and a comprehensive network of contacts throughout the region. The Berwick office covers the beautiful and historic Scottish Borders and the stunning coastline and countryside of Northumberland. Amy Brown and her team all have strong local ties and are passionate about the town and its surrounding countryside. They deliver exceptional customer service and results.





















Floorplan