Popular
Total views: 2500+
Guide price
£950,000Plot for sale
Ciderhouse Farm, Sigwells, Nr. Sherborne, Dorset, DT9
Plot
Key information
Features and description
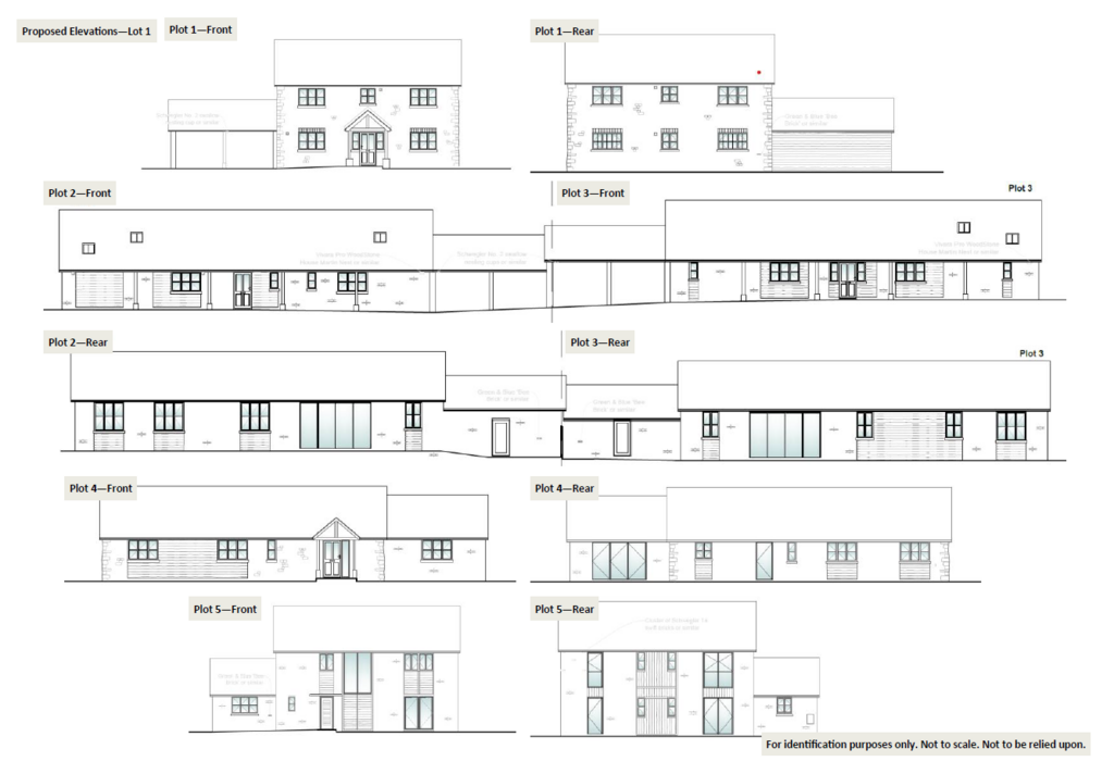
- Residential development site with outline planning permission for 5no. new-build dwellings.
- There is also detailed planning permission for the conversion of a former airfield fire station to 1no. dwelling.
- An exceptional site in a rural location with close proximity to the A303 and Sherborne.
- For sale by private treaty. Offers are invited on an unconditional basis.
- The site extends, in total, to approximately 0.8-hectares (1.98-acres).
Video tours
Residential development site with outline planning permission for 5no. new-build dwellings (all open market), together with associated infrastructure works.
There is also detailed planning permission for the conversion of a former airfield fire station to 1no. dwelling, together with associated infrastructure works.
An exceptional site in a rural location with close proximity to the A303 and Sherborne.
The site extends, in total, to approximately 0.8-hectares (1.98-acres). It is available as a whole or in two lots.
LOT 1 - £650,000
LOT 2 - £300,000
Please note that the sale of Lot 2 will not take place until after the sale of Lot 1, unless the site is sold as a whole.
For sale by private treaty. Offers are invited on an unconditional basis.
There is also detailed planning permission for the conversion of a former airfield fire station to 1no. dwelling, together with associated infrastructure works.
An exceptional site in a rural location with close proximity to the A303 and Sherborne.
The site extends, in total, to approximately 0.8-hectares (1.98-acres). It is available as a whole or in two lots.
LOT 1 - £650,000
LOT 2 - £300,000
Please note that the sale of Lot 2 will not take place until after the sale of Lot 1, unless the site is sold as a whole.
For sale by private treaty. Offers are invited on an unconditional basis.
Property information from this agent
About this agent

Greenslade Taylor Hunt - Development, Land & Planning
Winchester House, Dean Gate Ave
Taunton, Somerset
TA1 1RN
01823 760495Our knowledgeable team provides expert advice to clients looking to sell or develop their residential, agricultural or commercial land and buildings. We value and market development land of all descriptions including building plots, barns for conversion and large development sites. We have a specialist planning, drawing and design office and provide professional advice at every stage of the development process, from conception and feasibility, assessing best use and viability, preparation of design plans and obtaining planning permissions.

















