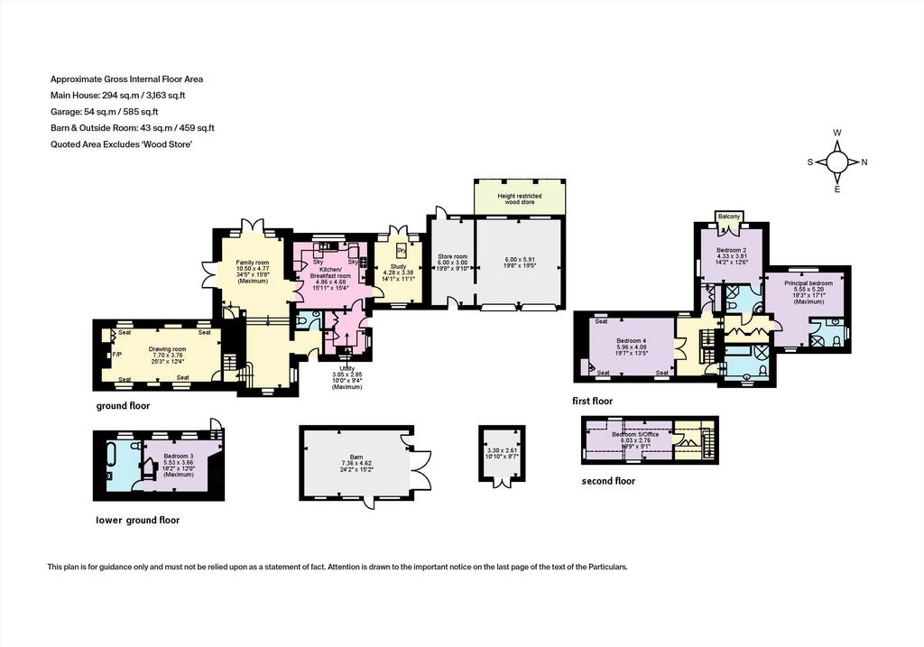
5 bedroom detached house
Key information
Features and description
- 5 bedrooms
- 4 reception rooms
- 4 bathrooms
- 2.50 acres
- Outbuildings
- Detached
- Double Garage
- Garden
- Parking
- Restored
The impressive and private landscaped gardens are an integral part of the property and are beautifully maintained with well-stocked flower beds and many flowering shrubs and specimen trees. The main garden lies to the rear (west) of the house with an extensive area of paved terrace suitable for alfresco entertaining. Stone steps lead down to the slightly sloping lawn with a large lily pond with a fountain beyond. The lower level of the garden fronts onto the River Stour with single bank fishing rights, and views of open meadows. From the lane there is access through double gates onto the drive leading to parking adjacent to the double garage and store room. The paddock lies across the lane from the house and is sloping with a timber field shelter and magnificent views. There is a stone barn with further areas of gravelled parking at both ends. In all about 2.5 acres (1.01 hectares).
A30 1.2 miles, Marnhull 2.5 miles, Gillingham (Waterloo 2 hours) 3.9 miles Sturminster Newton 5.7 miles, Shaftesbury 6 miles, A303 9.6 miles Castle Cary station (Paddington 90 minutes) 16.8 miles Bournemouth International Airport 32.6 miles (Distances and times approximate).
The small, friendly village of Stour Provost has a church, primary school and a thriving and active village hall. For immediate needs the larger village of Marnhull is close by and has excellent amenities including two primary schools, combined GP surgery and pharmacy, garage, two pubs and several local shops (see ). More extensive shopping, business and recreational facilities are available nearby in Sturminster Newton, Gillingham and Shaftesbury. The local area has good transport links. There are direct rail services from Gillingham to Waterloo (2 hours) and from Castle Cary to Paddington (90 minutes), the A30 and A303 are both easily accessible and Bristol, Bournemouth and Exeter airports are all within a reasonable driving distance. The wider, local area is renowned for
its wide choice of excellent schools from both the state and independent sectors. The selection from the latter within a 15 mile radius include Port Regis, Clayesmore, Hanford, the Sherborne schools, Knighton House, Bryanston, Hanford, the Bruton schools, Hazlegrove and Milton Abbey.
Property information from this agent
About this agent




























Floorplan