Popular
Total views: 2500+
5 bedroom detached house to rent
The Gables at Seaside Place (Shoreham Beach)
Detached house
5 beds
4 baths
Key information
Council tax: Band E
Broadband: Ultra-fast 1000Mbps *
Letting details
- Available now
- Furnished
- Deposit: £450.00
- Short term let
Features and description
- Stunning 5 bedroom property for up to 12 people
- On the beach location
- Hot Tub, 2 balconies, mini golf
- Spacious Accommodation
- Mood Lighting throughout the property
- Ocean Views
- Parking for up to 10 Cars
- Two kitchens
- 3 en-sutes and 1 family bathroom
- Unique and peaceful
Video tours
This stunning 5 bedroom House sits directly on Shoreham Beach and boasts a large private Hot Tub, 5 hole mini golf, 2 balconies, 2 kitchens, smart TVs .
Situated within10 minute walk from the Harbour Club as well as restaurants and bars in Shoreham Town Centre. The property has parking for 10 vehicles.
All bedrooms have kingsize beds, 2 have been furnished with extra single beds that can be used as a family room, There are 3 en suites & 1 family bathroom. Excellent public transport links to Brighton/Hove & surrounding areas.
The space
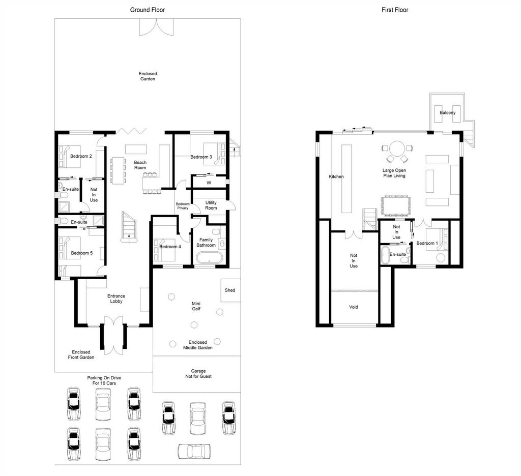
Directly on the Beach. Large detached house named The Gables at Seaside Place.
5 bedrooms, 4 on ground floor 1 on first floor. Lots of sea views and mood lighting throughout the property. Beautiful garden with artificial grass to the back of house perfect for sun bathing and grassed at front surrounded by a picket fence.
First floor:
Large open plan kitchen/diner/lounge area with amazing sea views .
Vaulted king size Master Bedroom with en suite bathroom.
Ground floor:
Grand Lobby with central staircase in the central Beach room. The Beach room is the 2nd kitchen in the house and has bifolds leading directly to the garden.
Second Master bedroom with a shower ensuite.
Bedroom 3 (family room with a kingsize bed and single bed) Direct Seaview.
Bedroom 4 with a Kingsize bed
Bedroom 5 with a Kingsize bed and a single bed, and own shower ensuite.
Back garden overlooks the sea from all areas. Hot tub (£200 optional extra) and The Green Egg BBQ. Lots of seating and loungers.
Middle garden has a mini golf (5 holes) to enjoy.
Utility room, 2 washing machines, heated towel rail for drying.
Hot Tub seats 6/7 guests at a time complete with a lounger overlooking the sea. Use up to 10pm only for neighbour respect.
With mood lighting throughout you will loveThe Gables at Seaside Place on Shoreham Beach.
Large area for parking off road for 10 vehicles.
Guest access
Drive down Old Fort Road past 1 roundabout & on the right just before 2nd road about. Look for the grey gravel driveway with white picket fence.
Keysafe for easy access from 3pm onwards.
Code will be emailed to you. 2nd set of keys inside the property. Always keep a set in the key safe. Put in the code then pull down the little black lever. Key safe is in the porch. Auto lights will help you in the porch if arriving at night.
Check out anytime by 11am
Day of leaving, please strip the beds (leaving the protectors on the pillows and beds only.
Please leave all usable food and drinks for the housekeeper and to save our bins. Please remove all other rubbish and put in the correct bins.
Black bin, landfill rubbish
Blue bin all recycling, hard plastic, glass, cans, paper.....
Other things to note
Hot Tub is available and hot all year round. Please bring your own towel for sea/tub use as only one supplied for indoors use. There are robes to use at the property if you would like.
Whilst the hot tub is checked regularly during your stay please follow the rules as misuse is expensive and damaging. When not in use the floating chlorinator. Open and close the hood using 2 hands. The hood folds over the metal bar then you can lift the lid. Temperature will be preset to 38 degrees. Always keep cover on to retain heat when not in use and to keep clean when not in use. Fake Tan lovers (sorry you are not permitted to use). Recommend you shower before use. Strict control of children. Over 5s with supervision.
6/7 max. The hot tub is an enjoyable and relaxing experience, will certainly enhance your stay, but be sensible and stay safe. Advisable not to use if you have been drinking & never after 10pm. No glass in the tub please as if a bit breaks will be very hard to find and will be a danger.
Very important. Residential neighbourhood and noise. Please be aware families live either side and have busy working lives. For enjoyment of the beach for all please keep noise to a minimum after 10pm.
Smoking - please do not put butts anywhere other than the pots provided and empty into the black bin end of stay. Please do not throw anything onto the beach or artificial grass area.
There are a variety of restaurants and pubs - booking in advance is advisable
Play Park for children a few minutes walk away in adjacent road Harbour Way and just beyond the Waterside pub.
Car not essential as a lovely coast walk into town takes approx 20 mins. Or cab takes less than 5 mins and takes you to Shoreham Town.
15 minute drive to Brighton, Hove or Worthing town parking hassles.
Please note. -
Infants make up the total number of guests.
The Gables at Seaside Place has a strict cancellation policy so it is advisable to ensure you have travel insurance in place to cover all eventualities. We want you to book then relax and be trouble free.
Seaside Place is a home from home with the magic of a holiday feel. We know you will enjoy.
Your obligations
You agree to comply with the regulations set out in any property manual at the Property and any other regulations reasonably specified by us from time to time and ensure that they are observed by all members of your party. You agree to keep and leave the Property and the furnishings, including items such as kitchen equipment, crockery and glasses clean and in good condition.
You agree not to cause any damage to the walls, doors, windows or any other part of the Property nor to do anything that may be reasonably considered to cause a nuisance or annoyance to us or to any other occupier of adjoining or neighbouring properties.
You agree to take all necessary steps to safeguard your personal property while at the Property.
You agree to ensure that each member of your party is covered by comprehensive travel insurance (including cancellation, flight delays, loss and damage to baggage and other property) and health insurance (including evacuation and repatriation coverage).
You cannot allow more people to stay in the Property than expressly authorised, nor can you significantly change the makeup of the party during your stay in the Property, nor can you take your pet into the Property unless permitted by us in writing in advance. If you do so, we can refuse to hand over the Property to you, or can require you to leave it. We will treat any of these circumstances as a cancellation of the Booking by you and we shall be under no obligation to refund you for any fees already paid to us in those circumstances. Any refund will be at our sole discretion.
You agree to allow us or any representative of ours access to the Property at any reasonable time during your stay for the purpose of essential repairs, in an emergency or to ensure you are complying with this Booking Contract.
Complaints
Every effort has been made to ensure that you have an enjoyable and memorable holiday. If however, you have any cause for complaint it is important that remedial action is taken as soon as possible.
It is essential that you contact us if any problem arises so that it can be speedily resolved. It is often extremely difficult (and sometimes impossible) to resolve problems properly unless we are promptly notified. Discussion of any criticisms with us whilst you are in residence at the Property will usually enable any shortcomings to be rectified straightaway. In particular, complaints of a transient nature
(for example, regarding preparation or heating of the Property) cannot possibly be investigated unless registered whilst you are in residence at the Property.
If any complaint cannot be resolved during your holiday, you must write to us or email us with full details within 28 days of the end of your Booking.
For the avoidance of doubt, you shall always contact us if you have any complaint in relation to your Booking or the Property.
House Rules
No smoking inside the property
No parties or events
Check-in time is 3PM - 9PM.
Checkout 11am
Can't use Fake Tan :)
Shoes are removed within the house to avoid sand damaging the flooring.
Directions
Drive down Old Fort Road past 1 roundabout & on the right just before 2nd roadabout. Look for the grey gravel driveway with white picket fence.
Notice
All photographs are provided for guidance only.
Redress scheme provided by: UKALA (163842)
Client Money Protection provided by: UKALA (163842)
Situated within10 minute walk from the Harbour Club as well as restaurants and bars in Shoreham Town Centre. The property has parking for 10 vehicles.
All bedrooms have kingsize beds, 2 have been furnished with extra single beds that can be used as a family room, There are 3 en suites & 1 family bathroom. Excellent public transport links to Brighton/Hove & surrounding areas.
The space
Directly on the Beach. Large detached house named The Gables at Seaside Place.
5 bedrooms, 4 on ground floor 1 on first floor. Lots of sea views and mood lighting throughout the property. Beautiful garden with artificial grass to the back of house perfect for sun bathing and grassed at front surrounded by a picket fence.
First floor:
Large open plan kitchen/diner/lounge area with amazing sea views .
Vaulted king size Master Bedroom with en suite bathroom.
Ground floor:
Grand Lobby with central staircase in the central Beach room. The Beach room is the 2nd kitchen in the house and has bifolds leading directly to the garden.
Second Master bedroom with a shower ensuite.
Bedroom 3 (family room with a kingsize bed and single bed) Direct Seaview.
Bedroom 4 with a Kingsize bed
Bedroom 5 with a Kingsize bed and a single bed, and own shower ensuite.
Back garden overlooks the sea from all areas. Hot tub (£200 optional extra) and The Green Egg BBQ. Lots of seating and loungers.
Middle garden has a mini golf (5 holes) to enjoy.
Utility room, 2 washing machines, heated towel rail for drying.
Hot Tub seats 6/7 guests at a time complete with a lounger overlooking the sea. Use up to 10pm only for neighbour respect.
With mood lighting throughout you will loveThe Gables at Seaside Place on Shoreham Beach.
Large area for parking off road for 10 vehicles.
Guest access
Drive down Old Fort Road past 1 roundabout & on the right just before 2nd road about. Look for the grey gravel driveway with white picket fence.
Keysafe for easy access from 3pm onwards.
Code will be emailed to you. 2nd set of keys inside the property. Always keep a set in the key safe. Put in the code then pull down the little black lever. Key safe is in the porch. Auto lights will help you in the porch if arriving at night.
Check out anytime by 11am
Day of leaving, please strip the beds (leaving the protectors on the pillows and beds only.
Please leave all usable food and drinks for the housekeeper and to save our bins. Please remove all other rubbish and put in the correct bins.
Black bin, landfill rubbish
Blue bin all recycling, hard plastic, glass, cans, paper.....
Other things to note
Hot Tub is available and hot all year round. Please bring your own towel for sea/tub use as only one supplied for indoors use. There are robes to use at the property if you would like.
Whilst the hot tub is checked regularly during your stay please follow the rules as misuse is expensive and damaging. When not in use the floating chlorinator. Open and close the hood using 2 hands. The hood folds over the metal bar then you can lift the lid. Temperature will be preset to 38 degrees. Always keep cover on to retain heat when not in use and to keep clean when not in use. Fake Tan lovers (sorry you are not permitted to use). Recommend you shower before use. Strict control of children. Over 5s with supervision.
6/7 max. The hot tub is an enjoyable and relaxing experience, will certainly enhance your stay, but be sensible and stay safe. Advisable not to use if you have been drinking & never after 10pm. No glass in the tub please as if a bit breaks will be very hard to find and will be a danger.
Very important. Residential neighbourhood and noise. Please be aware families live either side and have busy working lives. For enjoyment of the beach for all please keep noise to a minimum after 10pm.
Smoking - please do not put butts anywhere other than the pots provided and empty into the black bin end of stay. Please do not throw anything onto the beach or artificial grass area.
There are a variety of restaurants and pubs - booking in advance is advisable
Play Park for children a few minutes walk away in adjacent road Harbour Way and just beyond the Waterside pub.
Car not essential as a lovely coast walk into town takes approx 20 mins. Or cab takes less than 5 mins and takes you to Shoreham Town.
15 minute drive to Brighton, Hove or Worthing town parking hassles.
Please note. -
Infants make up the total number of guests.
The Gables at Seaside Place has a strict cancellation policy so it is advisable to ensure you have travel insurance in place to cover all eventualities. We want you to book then relax and be trouble free.
Seaside Place is a home from home with the magic of a holiday feel. We know you will enjoy.
Your obligations
You agree to comply with the regulations set out in any property manual at the Property and any other regulations reasonably specified by us from time to time and ensure that they are observed by all members of your party. You agree to keep and leave the Property and the furnishings, including items such as kitchen equipment, crockery and glasses clean and in good condition.
You agree not to cause any damage to the walls, doors, windows or any other part of the Property nor to do anything that may be reasonably considered to cause a nuisance or annoyance to us or to any other occupier of adjoining or neighbouring properties.
You agree to take all necessary steps to safeguard your personal property while at the Property.
You agree to ensure that each member of your party is covered by comprehensive travel insurance (including cancellation, flight delays, loss and damage to baggage and other property) and health insurance (including evacuation and repatriation coverage).
You cannot allow more people to stay in the Property than expressly authorised, nor can you significantly change the makeup of the party during your stay in the Property, nor can you take your pet into the Property unless permitted by us in writing in advance. If you do so, we can refuse to hand over the Property to you, or can require you to leave it. We will treat any of these circumstances as a cancellation of the Booking by you and we shall be under no obligation to refund you for any fees already paid to us in those circumstances. Any refund will be at our sole discretion.
You agree to allow us or any representative of ours access to the Property at any reasonable time during your stay for the purpose of essential repairs, in an emergency or to ensure you are complying with this Booking Contract.
Complaints
Every effort has been made to ensure that you have an enjoyable and memorable holiday. If however, you have any cause for complaint it is important that remedial action is taken as soon as possible.
It is essential that you contact us if any problem arises so that it can be speedily resolved. It is often extremely difficult (and sometimes impossible) to resolve problems properly unless we are promptly notified. Discussion of any criticisms with us whilst you are in residence at the Property will usually enable any shortcomings to be rectified straightaway. In particular, complaints of a transient nature
(for example, regarding preparation or heating of the Property) cannot possibly be investigated unless registered whilst you are in residence at the Property.
If any complaint cannot be resolved during your holiday, you must write to us or email us with full details within 28 days of the end of your Booking.
For the avoidance of doubt, you shall always contact us if you have any complaint in relation to your Booking or the Property.
House Rules
No smoking inside the property
No parties or events
Check-in time is 3PM - 9PM.
Checkout 11am
Can't use Fake Tan :)
Shoes are removed within the house to avoid sand damaging the flooring.
Directions
Drive down Old Fort Road past 1 roundabout & on the right just before 2nd roadabout. Look for the grey gravel driveway with white picket fence.
Notice
All photographs are provided for guidance only.
Redress scheme provided by: UKALA (163842)
Client Money Protection provided by: UKALA (163842)
Area statistics
Crime score
Low crime
1/10
About this agent

Westbeach Properties is a modern and professional company whether you are selling, letting or wanting to let your property as a holiday let we can give you advice on all three services.
















































Area stats