Popular
Total views: 2500+
Guide price
£13,500,0007 bedroom detached house for sale
Crown Lane, Farnham Royal, Slough, Buckinghamshire
Featured
Detached house
7 beds
Key information
Tenure: Freehold
Council tax: Ask agent
Features and description
Every aspect of this benchmark, luxury country house has been carefully considered to create the ultimate rural retreat.
Discreet timber gates give access to the driveway which meanders through the mature wooded grounds towards the arrival court. The triple height Great Hall is a statement in itself, providing an atmosphere of light and space, a feature of the whole house.
The reception rooms have been designed to seamlessly blend modern family areas with work orientated spaces. Twin height double doors lead to the galleried library whilst the dining room gives the illusion of floating on an ink black reflection pool, with a flood lit vertical garden.
On the second floor the six principal bedrooms have been designed around seven star living with power showers, colour therapy, cosy fireplaces and a full 360 degree sun terrace. From the master bedroom it is a comfortable walk down one flight of stairs to the gym, and a further single flight to the swimming pool and spa. Adjacent is the presidential suite for private or special guests.
Garden and Grounds
The garden and grounds are a remarkable aspect of this property. Overlooked by the pool room is the sanctuary Gold Medal winning Chelsea Garden, a tranquil space with a contemporary water feature flanked by pleached hornbeams.
To the South a paved terrace overlooks the formal lawns which cascade down to the ha-ha and the paddock beyond. Mature deciduous trees, in particular Beech and Oak, with an additional 500 specimen of trees planted to add to the privacy.
A fragrant wisteria walk leads from the presidential suite giving access to the barbecue area in a discreet yew shelter. Within the woodland walks 30,000 snowdrop bulbs have been planted to create a white river, the first flowers of spring.
Most importantly, the garden and grounds are extremely private and peaceful.
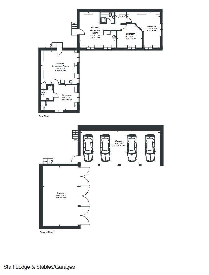
Staff Lodges
Constructed of timber under tiled roofs are two adjoining staff flats situated above the garages and stores.
Flat 1: kitchen, reception room, bedroom and shower room.
Flat 2: kitchen, reception room, 2 bedroom and shower room.
Garages: There is an open fronted garage providing parking for 4 vehicles. An additional enclosed garage/store provides space for a further 3 vehicles.
Lying on the South of Burnham Beeches an ancient woodland maintained and funded by the Corporation of London since 1880, the house enjoys an unrivalled rural position with far reaching views to the South West where Windsor Castle can be seen in the distance. As a Site of Special Scientific Interest this area is highly protected and remains a very special traditional English deciduous woodland attracting an array of wildlife.
Communications are excellent with Central London only 22 miles away and easy access via the M40 which is within 4 miles. Heathrow Airport is 14 miles away and HRH Northolt 15 miles distant. There is a wide selection of high quality schools in the district, most notably Caldicott Preparatory School which is a short walk away and a feeder school for Eton, Harrow and Radley together with Wycombe Abbey which is also nearby.
Discreet timber gates give access to the driveway which meanders through the mature wooded grounds towards the arrival court. The triple height Great Hall is a statement in itself, providing an atmosphere of light and space, a feature of the whole house.
The reception rooms have been designed to seamlessly blend modern family areas with work orientated spaces. Twin height double doors lead to the galleried library whilst the dining room gives the illusion of floating on an ink black reflection pool, with a flood lit vertical garden.
On the second floor the six principal bedrooms have been designed around seven star living with power showers, colour therapy, cosy fireplaces and a full 360 degree sun terrace. From the master bedroom it is a comfortable walk down one flight of stairs to the gym, and a further single flight to the swimming pool and spa. Adjacent is the presidential suite for private or special guests.
Garden and Grounds
The garden and grounds are a remarkable aspect of this property. Overlooked by the pool room is the sanctuary Gold Medal winning Chelsea Garden, a tranquil space with a contemporary water feature flanked by pleached hornbeams.
To the South a paved terrace overlooks the formal lawns which cascade down to the ha-ha and the paddock beyond. Mature deciduous trees, in particular Beech and Oak, with an additional 500 specimen of trees planted to add to the privacy.
A fragrant wisteria walk leads from the presidential suite giving access to the barbecue area in a discreet yew shelter. Within the woodland walks 30,000 snowdrop bulbs have been planted to create a white river, the first flowers of spring.
Most importantly, the garden and grounds are extremely private and peaceful.
Staff Lodges
Constructed of timber under tiled roofs are two adjoining staff flats situated above the garages and stores.
Flat 1: kitchen, reception room, bedroom and shower room.
Flat 2: kitchen, reception room, 2 bedroom and shower room.
Garages: There is an open fronted garage providing parking for 4 vehicles. An additional enclosed garage/store provides space for a further 3 vehicles.
Lying on the South of Burnham Beeches an ancient woodland maintained and funded by the Corporation of London since 1880, the house enjoys an unrivalled rural position with far reaching views to the South West where Windsor Castle can be seen in the distance. As a Site of Special Scientific Interest this area is highly protected and remains a very special traditional English deciduous woodland attracting an array of wildlife.
Communications are excellent with Central London only 22 miles away and easy access via the M40 which is within 4 miles. Heathrow Airport is 14 miles away and HRH Northolt 15 miles distant. There is a wide selection of high quality schools in the district, most notably Caldicott Preparatory School which is a short walk away and a feeder school for Eton, Harrow and Radley together with Wycombe Abbey which is also nearby.
Property information from this agent
Area statistics
Crime score
Low crime
0/10
About this agent

One of the UK’s leading agents in selling, buying and letting town and country houses and cottages, London houses and flats, new homes, farms and estates and residential development land around the country with expert local knowledge backed up by national expertise to ensure a quality service. With a network of over 50 offices nationwide, and 11 offices in Central London, plus our international reach through our memberships with Leading Real Estate Companies of the World® and Luxury Portfolio International, we are well placed to handle any property requirement.















Floorplans (
Area stats