4 bedroom detached house
Premium display
Study
Eco friendly
Solar panels
Detached house
4 beds
2152
Key information
Features and description
- Choice of 2 plots. Quoted price is for both.
- Each with consent for detached house
- Eco friendly contemporary design
- Hall, 2/3 Recs, Kitchen, Utility
- 3/4 Bedrooms, 3 Bathrooms
- Double Garage parking
- Large plots, 1.62 acres overall
- 5 properties to be on site
- Superb location & views
- A rare opportunity!
Video tours
Available together or separately, the choice of 2 building plots each with 'mirrored' consent for unrestricted detached two storey, 'Eco friendly' residential dwellings each comprising; Ground Floor; Hall, Double height vaulted Sitting Room, Dining Room, Kitchen, Utility Room, Bathroom, Bedroom 4/Study. First Floor; Galleried Landing, Master Bedroom 1 with Dressing Room and En Suite, 2 Further Bedrooms, Bathroom 3. Double Garage. About 1.62 Acres overall. Wonderful rural position and fabulous views. There are 5 dwellings planned for the site [one already exists] EPC Exempt.
Situation And Amenities - In terms of location, the plots enjoy the best of all worlds, being approached by a long privately owned drive which will access five properties in due course (one is already in existence) surrounded by open countryside in a timeless and tranquil setting, enjoying the most fantastic views over Taw Valley and unspoilt countryside. The village of High Bickington, which is just a short car journey, is situated within the heart of this spectacular North Devon countryside with rolling hills and fields. The village offers amenities including primary school, two popular pubs, church, chapel, community hall, post office, doctor's surgery, bus service and playing fields with cricket and football clubs, as well as the local golf course at Libbaton. The towns of Torrington, South Molton and Barnstaple are all within easy travelling distance and from the latter there is access to the North Devon Link Road which leads through to the M5 at Junction 27 motorway network beyond. Barnstaple Town Centre is within easy driving distance and offers an excellent range of amenities including both local and national high street shops, banks and leisure facilities including cinema, theatre and leisure centre, as well as the North Devon District Hospital just on the edge of the town. A national main line railway line links Barnstaple to Exeter St David's with further connecting services to London and beyond, and to Exeter central for the excellent shopping facilities. (This train service can also be accessed more closely to the property). Exeter International Airport is situated at Clyst Honiton, East Devon, just 5 miles from Exeter City and 5 minutes from the M5 Motorway (Junction 29) offering both scheduled and holiday chartered flights within the UK, Europe and beyond. Dartmoor and Exmoor are both within easy access as are the famous North Devon Coastal resorts of Croyde, Saunton (also with championship golf course), Woolacombe and the estuary village of Instow which is also not far from Westward Ho!.
Description - Plot 1 is the larger of the two, covering approximately 0.92 of an acre. This is known as Bantam and has planning consent under North Devon Council planning reference 75470 dated the 23.11.22 for erection of a dwelling and associated works. Plot 2 covers approximately 0.62 of an acre and is known as Marans. This has consent under planning reference 75471 for a 'mirrored' unit to Bantam and the date of the consent is the same. The size of the proposed dwellings is 200m2 [2152 sq ft] plus garages 60 m2 [645 sq ft]
The planning consent states ' The development hereby approved should be constructed in accordance with the following schedule of external finishing materials; Walls - rendered block, low levels with horizontal timber cladding to the roof level. Roof - insulated box profile roof sheets and a 200 metre stainless steel flue. Windows - metal farmed, double glazed. Garage (roof/walls) - solar panels on the roofs of each garage - roof pitch of 30 degrees and block work and render with vertical cladding to match dwellings and existing concrete pads to be reused.'
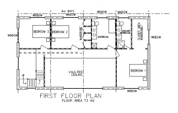
Each unit will provide for a unrestricted detached two storey eco friendly residential dwelling where the accommodation will comprise, on the ground floor; Entrance hall, double height vaulted sitting room, dining room, kitchen, utility room, bathroom, bedroom 4/study. First floor, galleried landing, master bedroom 1 with dressing room and ensuite, two further bedrooms, bathroom 3, double garage, additional parking.
Detailed plans for both can be viewed on the North Devon District Council Planning Website using the planning references provided for access.
The access road will be retained by the vendor who lives on site. Both houses will have right of way over this as well as share of maintenance on an 'if and when occurring basis'. A public footpath runs along the main access drive and off the property to open countryside ideal for rambling/dog walking.
Services - Both houses will require independent private drainage systems.
Water - Meters at site entrance grouped together (Not Plot Site). Individual 25mm pipes will be run underground to a valve box close to the plot boundaries so the individual owners can connect.
Power - The vendor will provide at cost overhead per the plan available. Individual plot owners will be responsible for connections to said overhead lines, meter installations and trenching supply cables at their cost.
Telecoms - The vendor will arrange at cost for overhead copper or fibre on installed poles.
Directions - Take the A377 towards Exeter, passing through Bishops Tawton and Chapleton. After Chapleton Sawmill and Railway Station, take the next right signposted to Atherington and High Bickington. At Atherington, proceed straight across at the staggered crossroads, taking the B3217 towards High Bickington. Follow this road for about 3/4 of a mile, passing the feed merchants on your left hand side. Just before entering the village, turn sharp right on the bend and follow this road. After about half a mile the entrance to the site will be found on the right hand side.
Viewing - By confirmed appointment with the selling agents only please. The site is gated and gates locked. Accordingly, the agents will need to liaise with the vendors regarding site access. Furthermore, this is a building site and appropriate footwear should be worn in order to negotiate the terrain.
Special Note - The basis of the access drive will be left incomplete until the construction of houses has been completed. The access drive will then be surfaced.
The computer generated image shown on these particulars is merely for illustrative purposes to show how the finished dwellings are likely to look.
The guide price is for both plots, please consult the agents if you are interested in just one of the plots and the prices for each.
Lettings - There has never been a better time to consider a buy-to-let investment and this property may be of interest to buy-to-let investors. Our lettings department has prepared some figures for this property, which should be achievable in the current market. The Stags Residential Letting team would be happy to discuss these figures and provide further information about the letting services on offer. They can be contacted on[use Contact Agent Button] or [use Contact Agent Button]
Situation And Amenities - In terms of location, the plots enjoy the best of all worlds, being approached by a long privately owned drive which will access five properties in due course (one is already in existence) surrounded by open countryside in a timeless and tranquil setting, enjoying the most fantastic views over Taw Valley and unspoilt countryside. The village of High Bickington, which is just a short car journey, is situated within the heart of this spectacular North Devon countryside with rolling hills and fields. The village offers amenities including primary school, two popular pubs, church, chapel, community hall, post office, doctor's surgery, bus service and playing fields with cricket and football clubs, as well as the local golf course at Libbaton. The towns of Torrington, South Molton and Barnstaple are all within easy travelling distance and from the latter there is access to the North Devon Link Road which leads through to the M5 at Junction 27 motorway network beyond. Barnstaple Town Centre is within easy driving distance and offers an excellent range of amenities including both local and national high street shops, banks and leisure facilities including cinema, theatre and leisure centre, as well as the North Devon District Hospital just on the edge of the town. A national main line railway line links Barnstaple to Exeter St David's with further connecting services to London and beyond, and to Exeter central for the excellent shopping facilities. (This train service can also be accessed more closely to the property). Exeter International Airport is situated at Clyst Honiton, East Devon, just 5 miles from Exeter City and 5 minutes from the M5 Motorway (Junction 29) offering both scheduled and holiday chartered flights within the UK, Europe and beyond. Dartmoor and Exmoor are both within easy access as are the famous North Devon Coastal resorts of Croyde, Saunton (also with championship golf course), Woolacombe and the estuary village of Instow which is also not far from Westward Ho!.
Description - Plot 1 is the larger of the two, covering approximately 0.92 of an acre. This is known as Bantam and has planning consent under North Devon Council planning reference 75470 dated the 23.11.22 for erection of a dwelling and associated works. Plot 2 covers approximately 0.62 of an acre and is known as Marans. This has consent under planning reference 75471 for a 'mirrored' unit to Bantam and the date of the consent is the same. The size of the proposed dwellings is 200m2 [2152 sq ft] plus garages 60 m2 [645 sq ft]
The planning consent states ' The development hereby approved should be constructed in accordance with the following schedule of external finishing materials; Walls - rendered block, low levels with horizontal timber cladding to the roof level. Roof - insulated box profile roof sheets and a 200 metre stainless steel flue. Windows - metal farmed, double glazed. Garage (roof/walls) - solar panels on the roofs of each garage - roof pitch of 30 degrees and block work and render with vertical cladding to match dwellings and existing concrete pads to be reused.'
Each unit will provide for a unrestricted detached two storey eco friendly residential dwelling where the accommodation will comprise, on the ground floor; Entrance hall, double height vaulted sitting room, dining room, kitchen, utility room, bathroom, bedroom 4/study. First floor, galleried landing, master bedroom 1 with dressing room and ensuite, two further bedrooms, bathroom 3, double garage, additional parking.
Detailed plans for both can be viewed on the North Devon District Council Planning Website using the planning references provided for access.
The access road will be retained by the vendor who lives on site. Both houses will have right of way over this as well as share of maintenance on an 'if and when occurring basis'. A public footpath runs along the main access drive and off the property to open countryside ideal for rambling/dog walking.
Services - Both houses will require independent private drainage systems.
Water - Meters at site entrance grouped together (Not Plot Site). Individual 25mm pipes will be run underground to a valve box close to the plot boundaries so the individual owners can connect.
Power - The vendor will provide at cost overhead per the plan available. Individual plot owners will be responsible for connections to said overhead lines, meter installations and trenching supply cables at their cost.
Telecoms - The vendor will arrange at cost for overhead copper or fibre on installed poles.
Directions - Take the A377 towards Exeter, passing through Bishops Tawton and Chapleton. After Chapleton Sawmill and Railway Station, take the next right signposted to Atherington and High Bickington. At Atherington, proceed straight across at the staggered crossroads, taking the B3217 towards High Bickington. Follow this road for about 3/4 of a mile, passing the feed merchants on your left hand side. Just before entering the village, turn sharp right on the bend and follow this road. After about half a mile the entrance to the site will be found on the right hand side.
Viewing - By confirmed appointment with the selling agents only please. The site is gated and gates locked. Accordingly, the agents will need to liaise with the vendors regarding site access. Furthermore, this is a building site and appropriate footwear should be worn in order to negotiate the terrain.
Special Note - The basis of the access drive will be left incomplete until the construction of houses has been completed. The access drive will then be surfaced.
The computer generated image shown on these particulars is merely for illustrative purposes to show how the finished dwellings are likely to look.
The guide price is for both plots, please consult the agents if you are interested in just one of the plots and the prices for each.
Lettings - There has never been a better time to consider a buy-to-let investment and this property may be of interest to buy-to-let investors. Our lettings department has prepared some figures for this property, which should be achievable in the current market. The Stags Residential Letting team would be happy to discuss these figures and provide further information about the letting services on offer. They can be contacted on[use Contact Agent Button] or [use Contact Agent Button]
Property information from this agent
About this agent

The office conducts the sale and letting of all town, village and country property and land throughout North Devon. As the regional office, Barnstaple works closely with Stags' two other North Devon offices at Bideford and South Molton. The Barnstaple office covers an area from Instow to West Exmoor, and inland to meet the boundary of South Molton. This includes an extensive stretch of coastline, as well as the Taw and Torridge Estuaries, which keeps the firm's Waterside Property Department extremely busy. North Devon is a wonderful place to live, work and visit. It is special for its people, its culture and its beautiful environment - most of it is designated an Area of Outstanding Natural Beauty.









Floorplan