Popular
Total views: 2500+
Offers in region of
£600,000Plot for sale
Land Off, Southgate, Sleaford, Lincolnshire, NG34
New build
Plot
Key information
Features and description
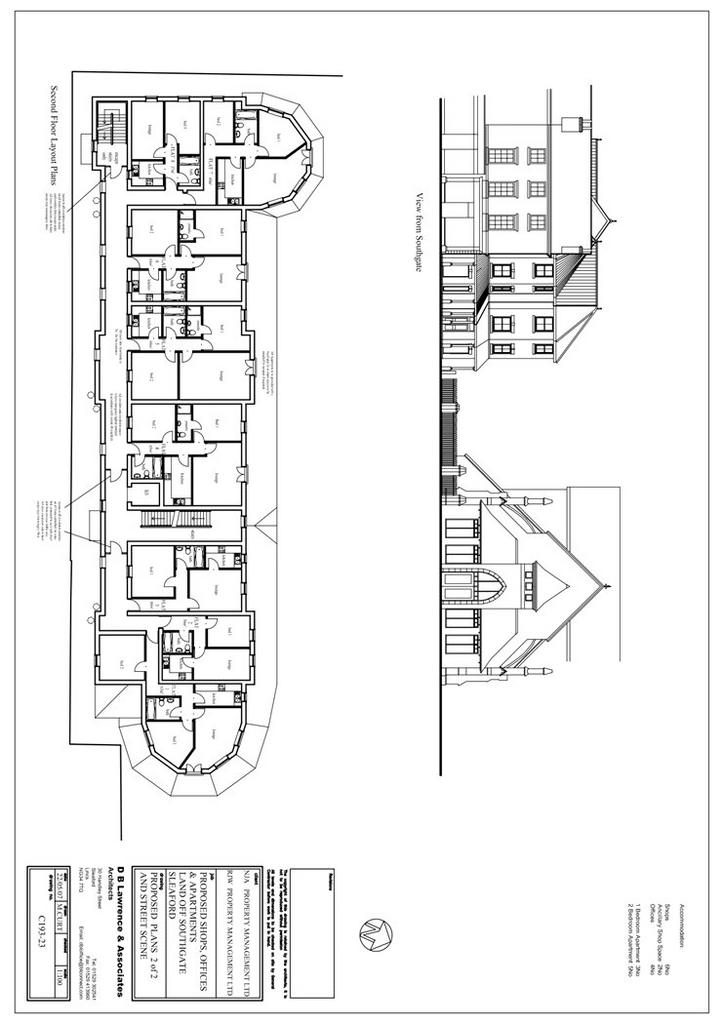
An exciting town centre development opportunity for a mixed use development comprising 6 shops, 3 offices and 8 flats, full permission has been granted by NKDC under planning reference 10/0855/FULEXT.
Property information from this agent
Area statistics
Crime score
High crime
8/10
About this agent

At Winkworth we love what we do and we pride ourselves on matching the right people with the right homes. We take the time to see the little things that other agents miss - the things that make a home or a search unique. We're local experts too, ensuring that you get the best advice on the area you're looking in, as well as comprehensive knowledge on the property market. From our 100 offices across the UK and overseas, including more offices in London than any other agency, we're able to ensure we get your home in front of the right people. And with the support of our Mayfair based Country House, China Desk, International and Marketing team, we're able to provide an unparalleled service whether you're looking to buy, sell, let or rent.







Area stats