Popular
Total views: 2500+
Plot for sale
Cwrt Sart, Neath, Neath Port Talbot.
New build
Plot
EPC rating: D
Key information
Tenure: Ask agent
Council tax: Band TBC
Features and description
- Full planning permission
- Reference number p/2006/0312
- Detached family home
- 5 bedrooms
- Off road parking
- Close to all local amenities
- Good links to m4 corridor
Video tours
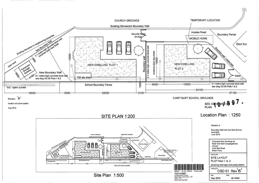
We're delighted to offer for sale this substantial plot with full planning permission located in Cwrt Sart, Neath. The property will be a detached 5 bedroom executive spacious family home - mirror image of Cwrt Y Chapel. Planning reference number is P/2006/0312. Call for more information. CTFDL.
Property information from this agent
About this agent

Clee Tompkinson Francis is an independent partnership of Chartered Surveyors established in 1972. Since that time the company has grown to become one of the leading estate agents and surveying firms operating throughout South, Mid and West Wales. Our team includes 12 Chartered Surveyors and a wide a range of experienced support staff. We currently operate from 12 offices and provide property advice and services throughout South and West Wales & the Borders We offer a complete property service selling, renting and advising upon rural, residential and commercial property. Professional work includes property valuations & surveys, compensation claims, planning advice & applications and energy certificates for commercial & domestic property. We also operate three livestock markets at Sennybridge, Talybont On Usk and Llandovery and provide a complete range of services for the rural sector including sales of live and dead stock, property valuations and auctions, compensation matters and farm business advice. Clee Tompkinson Francis aims to provide a traditional service combined with all the modern technology available today. Our experienced staff can provide you with efficient and knowledgeable advice coupled with local expertise. All properties are listed on our website (please click on the link on this page) enabling potential purchasers to view all property details 24 hours a day, 7 days a week.


