Plot
New build
Under offer
Plot
Key information
Features and description
- Planning Permission Granted
- PP For A 3 Bedroom Detached House
- Generous Plot Size
- Rural Location
- Garage
- Additional Land Available By Separate Negotiation
The plot currently consists of a timber framed pole barn and adjoining single storey brick building, both of which are currently used for agricultural storage. Additional land for a pony paddock may be available by separate negotiation.
Fir Tree Farm is located just 0.5 miles southwest of Cornsay Colliery in the heart of rural County Durham, surrounded by scenic open countryside. Located a approximately 4 miles from the historical village of Lanchester which offers excellent amenities including schools, a post office, bank, butcher, baker, greengrocer, hardware shop, small supermarket, pharmacy, restaurant, public houses and takeaways.
The Historic City of Durham is located approximately 7.5 miles north east via the B6302, with main line rail connections north and south and easy access to A1M. The metropolitan city of Newcastle upon Tyne and Gateshead are also located approximately 20 miles north east less than 1 hours drive also within good commuting distance and offers a regional centre of culture with venues such as Sage Gateshead, Baltic and the Theatre Royal. Large shopping complexes such as The Metro Centre and Eldon Square are also located in the Gateshead and Newcastle area.
Description
Plot 2 forms part of the wider development and conversion of the agricultural buildings at Fir Tree Farm. The plot currently consists of a timber framed pole barn and adjoining single storey brick building, both of which are currently used for agricultural storage. Additional land for a pony paddock may be available by separate negotiation.
Planning
Planning reference DM/20/01943/FPA
Proposal: Change of use of existing barns to two dwellings including alterations in heights, with associated car parking, private gardens and driveway.
Approved: 29th September 2020
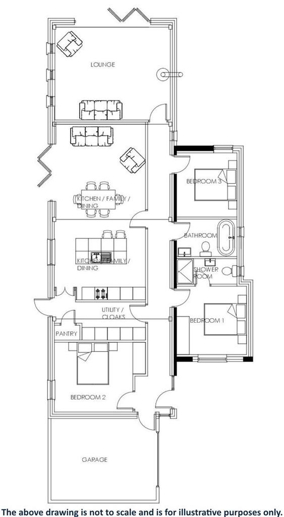
The conversion of the buildings within Plot 2 will create a 3 bedroom detached dwelling with attached garage as shown on the floor plans, elevations and proposed site plan contained in these particulars. A copy of the approved elevations and floor plans and associated planning documents are available on request from our Darlington office.
Services
Mains electricity and water are close to the site and the relevant easements and wayleaves shall be granted to the purchaser over the vendors retained land. The purchaser would need to make connections to these services at their own cost. The purchaser shall be granted the right to install a Sewage Package Treatment plant in the adjacent field.
Third Party Rights
The site is sold subject to and with the benefit of all rights of way, water, drainage, watercourses, light and other easements, quasi or reputed easements and rights of adjoining owners (if any) affecting the same and all matters registerable by any competent authority pursuant to statute.
Tenure
Freehold with vacant possession upon completion.
Local Authority
Durham County Council
Viewing
Strictly by appointment with the sole selling agents, Vickers and Barrass Darlington office.
Fir Tree Farm is located just 0.5 miles southwest of Cornsay Colliery in the heart of rural County Durham, surrounded by scenic open countryside. Located a approximately 4 miles from the historical village of Lanchester which offers excellent amenities including schools, a post office, bank, butcher, baker, greengrocer, hardware shop, small supermarket, pharmacy, restaurant, public houses and takeaways.
The Historic City of Durham is located approximately 7.5 miles north east via the B6302, with main line rail connections north and south and easy access to A1M. The metropolitan city of Newcastle upon Tyne and Gateshead are also located approximately 20 miles north east less than 1 hours drive also within good commuting distance and offers a regional centre of culture with venues such as Sage Gateshead, Baltic and the Theatre Royal. Large shopping complexes such as The Metro Centre and Eldon Square are also located in the Gateshead and Newcastle area.
Description
Plot 2 forms part of the wider development and conversion of the agricultural buildings at Fir Tree Farm. The plot currently consists of a timber framed pole barn and adjoining single storey brick building, both of which are currently used for agricultural storage. Additional land for a pony paddock may be available by separate negotiation.
Planning
Planning reference DM/20/01943/FPA
Proposal: Change of use of existing barns to two dwellings including alterations in heights, with associated car parking, private gardens and driveway.
Approved: 29th September 2020
The conversion of the buildings within Plot 2 will create a 3 bedroom detached dwelling with attached garage as shown on the floor plans, elevations and proposed site plan contained in these particulars. A copy of the approved elevations and floor plans and associated planning documents are available on request from our Darlington office.
Services
Mains electricity and water are close to the site and the relevant easements and wayleaves shall be granted to the purchaser over the vendors retained land. The purchaser would need to make connections to these services at their own cost. The purchaser shall be granted the right to install a Sewage Package Treatment plant in the adjacent field.
Third Party Rights
The site is sold subject to and with the benefit of all rights of way, water, drainage, watercourses, light and other easements, quasi or reputed easements and rights of adjoining owners (if any) affecting the same and all matters registerable by any competent authority pursuant to statute.
Tenure
Freehold with vacant possession upon completion.
Local Authority
Durham County Council
Viewing
Strictly by appointment with the sole selling agents, Vickers and Barrass Darlington office.
Property information from this agent
About this agent

Vickers & Barrass Chartered Surveyors - Darlington
Humbleton Park, West Auckland Road
Darlington
DL2 2YH
01325 617396Vickers and Barrass are a firm of Rural Chartered Surveyors and Estate Agents offering a professional land agency and surveying service throughout the North East of England to farmers, estates and land owners alongside a professional sales and lettings service for residential and commercial property throughout the region. T H Vickers Limited was originally established by Harry Vickers in 1973. In September 2012 the business was acquired by Darlington Farmers Auction Mart Limited to provide a land agency service and the brand name of Vickers and Barrass was formed. In August 2018 the firm expanded further to merge with Broadley and Coulson. Vickers and Barrass is now managed by Adam Barrass MRICS FAAV. Our Client Money Protection (CMP) is with the RICS Client Money Protection Scheme and Redress scheme is with Ombudsman Service:Property.








Floorplan