Popular
Total views: 2500+
Offers over
£49,995Land for sale
Plot 1, Hill Street, Newmill, Keith, AB55 6TY
Land
Key information
Features and description
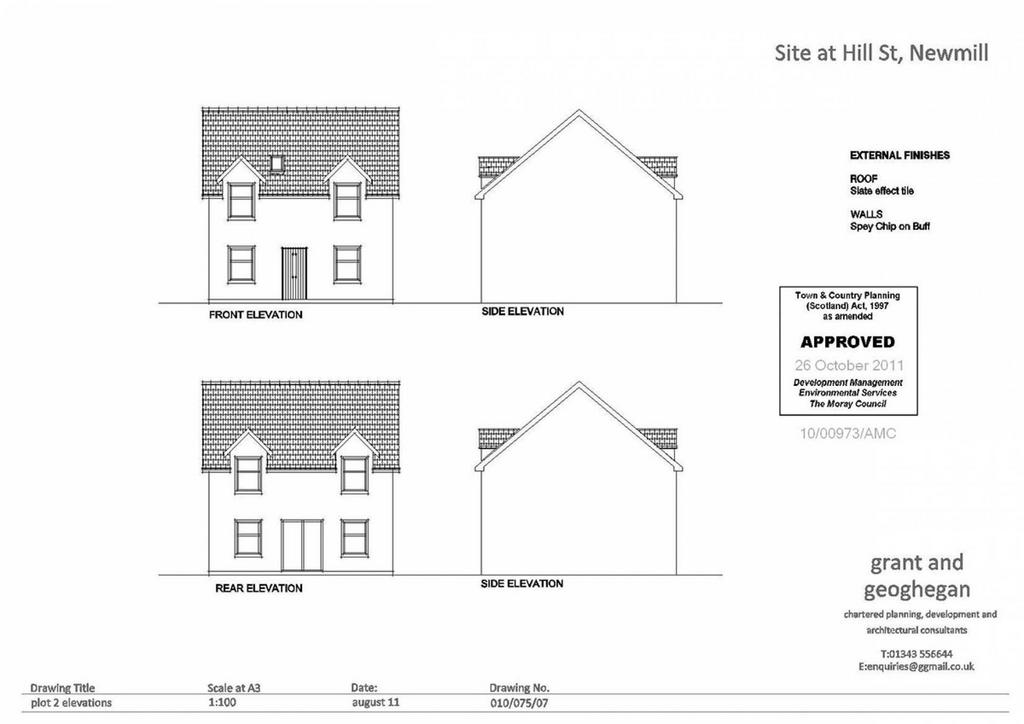
We are pleased to offer for sale this large building plot, which is situated in a picturesque village location of Newmill. The nearby town of Keith and Huntly are only a short drive away. The plot is situated on a minor public road close to the village centre. Full planning permission has been granted for the erection of three detached two storey dwelling houses with detached garage and temporary siting of residential caravan during construction. The decisions and conditions for both 14/01590/APP and 10/00973/AMC can be viewed online at: .
Services: Mains electric nearby.
Viewing: By attending at the site
Note: If required the three individual building plots can be sold separately.
Services: Mains electric nearby.
Viewing: By attending at the site
Note: If required the three individual building plots can be sold separately.
Property information from this agent
About this agent

McEwan Fraser Legal is an award-winning Solicitors and Estate Agents. We have properties for sale all over Scotland including Edinburgh and Glasgow. We specialise in the sale of both residential and commercial properties. With a proven track record, we strive to provide the best service an Estate Agents can offer; our Property Matching database benefits both sellers and buyers as it matches buyers to their ideal property.


























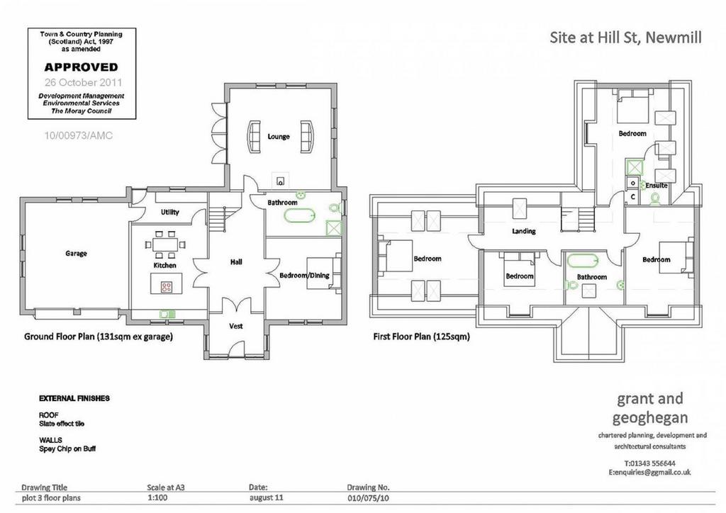
Floorplan