No longer on the market
This property is no longer on the market
Similar properties
Discover similar properties nearby in a single step.
2 bedroom semi-detached bungalow
EV charger
Sold STC
Semi-detached bungalow
2 beds
Key information
Features and description
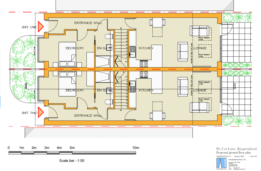
- New build two bedroom semi detached dormer bungalow
- 10 year new build warranty
- Paved driveway with electric car charging point
- Underfloor heating throughout the ground floor
- Conveniently placed for bus routes, shops & amenities
- Ground floor bedroom with en suite shower room
- Open living accommodation with bi folding doors leading to the rear garden
- First floor bedroom and bathroom
- Ready to move into at the end of 2022
- Part exchange will be considered
This pair of new build semi detached dormer bungalows situated on the highly sought after Cot Lane, are conveniently located close to bus routes, shops and amenities. Due to be ready at the end of 2022 both properties are available to be reserved immediately, with the potential for any buyer to have an input into the fixtures and fittings. The bungalows will comprise: paved driveway with electric car charging point, entrance hall, ground floor bedroom with en suite shower room, open plan living kitchen with bi folding doors leading to the rear garden, first floor bedroom and bathroom and a low maintenance private rear garden. Part exchange will also be considered. Please call Hunters today for further details or to make an appointment to see the location and meet the builder.
BUILD NEW TWO BEDROOM SEMI DETACHED DORMER BUNGALOW - READY TO MOVE INTO AT THE END OF 2022 - 10 YEAR NEW BUILD WARRANTY - CONVENIENTLY PLACED FOR BUS ROUTES, SHOPS & AMENITIES - PART EXCHANGE WILL BE CONSIDERED
BUILD NEW TWO BEDROOM SEMI DETACHED DORMER BUNGALOW - READY TO MOVE INTO AT THE END OF 2022 - 10 YEAR NEW BUILD WARRANTY - CONVENIENTLY PLACED FOR BUS ROUTES, SHOPS & AMENITIES - PART EXCHANGE WILL BE CONSIDERED
Property information from this agent
Area statistics
Crime score
Low crime
1/10
Home prices (average)
2 bedroom semi-detached bungalows
£300,126
£300,126
About this agent

The Hunters Estate Agents and Lettings Agents Stourbridge was established in 2005 and is part of the UK’s fastest growing, independent estate agency chain. Hunters is one of the largest estate agency franchise networks in the UK with over 170 branches throughout the country. Our ambition is to become the nation’s favourite estate agency brands and to achieve this we intend to invest more time, money, expertise and technology than any other estate agent.We have been in the business since 1992 and base ourselves on firm principles of excellent customer service, unrivalled pro-activity and the best possible results for our clients. At Hunters Stourbridge, our marketing strategy is based on a very simple principle - the more buyers we can get interested in your property, the better price we are going to get for you. All houses For Sale and To Let in Stourbridge are managed by Hunters Estate Agents. Your home will be marketed within your local area, across your region and throughout our entire national network; bringing more buyers to your door. Our dedicated marketing department ensure that Hunters’ customers are seen across a huge variety of media. We consider ourselves to be market leaders in the key areas of communication and technology. Hunters is at the forefront of the latest developments in the industry and was the first estate agent to introduce a mobile app for smartphones. The full marketing package at Hunters Estate Agents and Letting Agents Stourbridge includes our dynamic, intuitive desktop and mobile website, profiling on the top online property portals, Hunters property apps for social media and smartphones and ‘Intelligent’ For Sale & To Let boards – where applicants can view houses on the market in Stourbridge from their mobile device simply by texting or scanning the QR (Quick Response) code on the board.























Area stats