Total views: 122
2 bedroom flat to rent
Viewforth, Viewforth, Edinburgh, EH10
Study
EV charger
Recently added
Pets considered
Flat
2 beds
2 baths
1001
EPC rating: C
Key information
Council tax: Band F
Broadband: Ultra-fast 1800Mbps *
Mobile signal:
EEO2ThreeVodafone
Letting details
- Availability date: 15 Jan 2026
- Furnished
- Deposit: £3300
- Long term let
Features and description
- Lockable storage unit underground
- EV Charging point
- Private parking space
- Double glazing
- Shower
- Washing machine
- Tumble dryer
- Dishwasher
- Fridge Freezer
Video tours
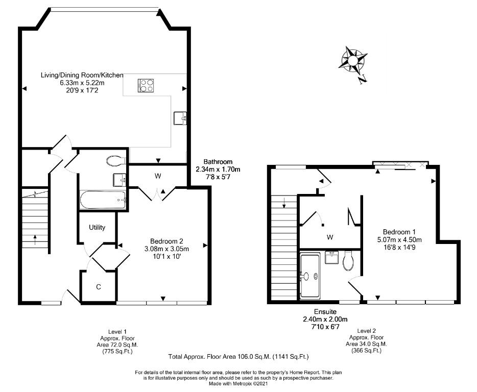
Boroughmuir is an exceptionally well presented 2 bedroom duplex apartment situated within the beautifully renovated old Boroughmuir High School. Accommodation is presented to an executive level. Available Thursday 15th January 2026
The property is presented furnished. Bedroom 2 will be left unfurnished to allow full flexibility for a tenant as they may wish to use this as a bedroom or as an office - to illustrate how this room can look virtual images have been provided of the room as a bedroom and home office.
The property is accessed through an internal walkway that leads to the residents' landscaped courtyard area and has its own main door and with an external porch area to sit and relax.
Internal accommodation on the ground floor comprises the stunning bright south-westerly facing open plan living area, which benefits from a stunning 4.5 metre ceiling. High-quality kitchen designed by Kitchen International with Siemens integrated appliances including dishwasher, oven, combination microwave and 5 ring induction hob.
The ground floor also hosts a luxury main bathroom with bath and shower over, a downstairs bedroom, understairs storage and 2 further utility cupboards - one to house a washer dryer and the other for the technology hub.
Upstairs is dedicated to the luxury main bedroom suite, with a dressing area and en suite shower room and viewing area overseeing the living area below.
Other key features of this exceptional apartment include
- one lockable storage crate approx. size 1.2 metres x 2.3 metres that is stored underground.
- off-street designated private parking space plus Electric Vehicle charging access.
- communal bin store
- external bike racks
Situated in one of Edinburgh’s most stylish and well-connected neighbourhoods it has, as expected, excellent transport links and immediate access to a wealth of bars, restaurants, vast parks, leisure facilities and more.
Deposit £3300
EPC rating: C. Landlord Registration Number: 1440874/230/02072. Letting Agent Registration Number: LARN1812036.
The property is presented furnished. Bedroom 2 will be left unfurnished to allow full flexibility for a tenant as they may wish to use this as a bedroom or as an office - to illustrate how this room can look virtual images have been provided of the room as a bedroom and home office.
The property is accessed through an internal walkway that leads to the residents' landscaped courtyard area and has its own main door and with an external porch area to sit and relax.
Internal accommodation on the ground floor comprises the stunning bright south-westerly facing open plan living area, which benefits from a stunning 4.5 metre ceiling. High-quality kitchen designed by Kitchen International with Siemens integrated appliances including dishwasher, oven, combination microwave and 5 ring induction hob.
The ground floor also hosts a luxury main bathroom with bath and shower over, a downstairs bedroom, understairs storage and 2 further utility cupboards - one to house a washer dryer and the other for the technology hub.
Upstairs is dedicated to the luxury main bedroom suite, with a dressing area and en suite shower room and viewing area overseeing the living area below.
Other key features of this exceptional apartment include
- one lockable storage crate approx. size 1.2 metres x 2.3 metres that is stored underground.
- off-street designated private parking space plus Electric Vehicle charging access.
- communal bin store
- external bike racks
Situated in one of Edinburgh’s most stylish and well-connected neighbourhoods it has, as expected, excellent transport links and immediate access to a wealth of bars, restaurants, vast parks, leisure facilities and more.
Deposit £3300
EPC rating: C. Landlord Registration Number: 1440874/230/02072. Letting Agent Registration Number: LARN1812036.
About this agent

Chapmans is a small yet mighty full service Property Lettings & Management agency based in Edinburgh. Our team of friendly and cheerful letting experts apply a common-sense approach to our range of specialist services, tailored to suit your specific needs and involvement as a landlord. In a sector filled with legislation, rules and regulations and with more changes on the way, we are a reliable, steadfast and accredited service provider – offering added peace of mind that you and your rental property are in good hands. Since we began back in 2010, we have been dedicated to keeping our landlords happy and our standards high – ensuring your rental property is protected, is supplying you with a regular income stream and your investment is future proofed.
Similar properties
Discover similar properties nearby in a single step.

































Floorplans (















