Popular
Total views: 2500+
Land for sale
Rear of 2 Station Cottages, Station Road, Derwydd, Ammanford, Carmarthenshire.
Study
Land
Key information
Tenure: Freehold
Council tax: Band TBC
Mobile signal:
EEO2ThreeVodafone
Features and description
- Freehold Individual Building Plot With Detailed Planning Consent
- For a Detached Executive House & Garage
- Highly convenient to Llandeilo, Llandybie & Ammanford
- Planning Application number: E/35803
- A Development Opportunity Not To Be Missed
- Good Sized Plot
- Village Location
- Building Control Approval has been received
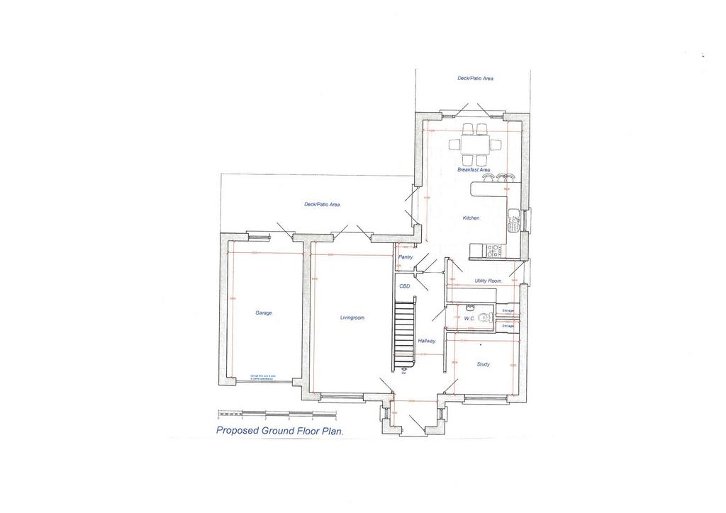
An excellent opportunity to purchase a good sized plot with detailed planning permission for a spacious family home comprising Hall, Study, Cloakroom, Utility Room, Kitchen/Breakfast Room, Lounge and Cloakroom on the ground floor and 4 bedrooms, ensuite and family bathroom at first floor. Externally garden and garage. The accommodation offers comfortable proportioned rooms including patio doors from both the kitchen/breakfast room and lounge with a juliette balcony from the master bedroom.
Situated in a popular location between Llandeilo and Ammanford towns which offer a wide and varied range of amenities to include, shops, offices and schools. Llandybie is within 2 miles with primary school and local amenities and the M4 Motorway junction at Pont Abraham is within easy commuting distance and gives good road links to the rest of the country.
The area is a well known tourist destination with popular attractions of Dinefwr, Carreg Cennen and Dryslwyn Castles, Aberglasney Gardens and The Botanical Gardens of Wales are all within a short drive away.
PLANS ARE AVAILABLE AT OUR LLANDEILO OFFICE FOR INSPECTION. Building Control Approval has been received and the development is deemed to have commenced for planning purposes.
CTFDL
Situated in a popular location between Llandeilo and Ammanford towns which offer a wide and varied range of amenities to include, shops, offices and schools. Llandybie is within 2 miles with primary school and local amenities and the M4 Motorway junction at Pont Abraham is within easy commuting distance and gives good road links to the rest of the country.
The area is a well known tourist destination with popular attractions of Dinefwr, Carreg Cennen and Dryslwyn Castles, Aberglasney Gardens and The Botanical Gardens of Wales are all within a short drive away.
PLANS ARE AVAILABLE AT OUR LLANDEILO OFFICE FOR INSPECTION. Building Control Approval has been received and the development is deemed to have commenced for planning purposes.
CTFDL
Rooms
Agents Note
Please note that the vendor of this property is related to an employee of Clee Tompkinson & Francis.
Services
Available nearby for connection.
Property information from this agent
About this agent

Clee Tompkinson Francis is an independent partnership of Chartered Surveyors established in 1972. Since that time the company has grown to become one of the leading estate agents and surveying firms operating throughout South, Mid and West Wales. Our team includes 12 Chartered Surveyors and a wide a range of experienced support staff. We currently operate from 12 offices and provide property advice and services throughout South and West Wales & the Borders We offer a complete property service selling, renting and advising upon rural, residential and commercial property. Professional work includes property valuations & surveys, compensation claims, planning advice & applications and energy certificates for commercial & domestic property. We also operate three livestock markets at Sennybridge, Talybont On Usk and Llandovery and provide a complete range of services for the rural sector including sales of live and dead stock, property valuations and auctions, compensation matters and farm business advice. Clee Tompkinson Francis aims to provide a traditional service combined with all the modern technology available today. Our experienced staff can provide you with efficient and knowledgeable advice coupled with local expertise. All properties are listed on our website (please click on the link on this page) enabling potential purchasers to view all property details 24 hours a day, 7 days a week.



