Popular
Total views: 2500+
6 bedroom detached house for sale
Bearshanks Lane, Pilton, Oundle, Peterborough, PE8
New build
Study
Detached house
6 beds
2.05 acre(s)
Key information
Tenure: Freehold
Council tax: Ask agent
Broadband: Ultra-fast 1000Mbps *
Mobile signal:
EEO2ThreeVodafone
Features and description
- Create something amazing
- Refurbishment or Redevelopment Opportunity
- Fabulous Hillside Setting
- Far-Reaching Views
- FPP For High Specification Detached House with Studio
- 2.05 acre site
- Close to Oundle
The Current Property
Coppice Lodge dates from the late-Edwardian era. The house is built of local limestone and set beneath a Collyweston slate roof. The property is neither Listed, nor set within a conservation area. The dwelling served as a farm cottage for many decades.
It is now in need of updating, which is feasible, or of course the property could be redeveloped, using the Planning Permission that has recently been granted. The property sits on a hilltop and enjoys fabulous, unspoilt, rural views in each direction, Lyveden New Bield is visible in one direction and the market town of Oundle, in the other.
Lawned gardens run around the house. making this a rare and exceptional opportunity. The gated drive leads from Bearshanks Lane (a tranquil, no-through road), down to the house and into the yard, Stables and a brick machinery store stand to one side. Beyond, are a Dutch barn and two steel portal cattle barns. There are two, unfenced paddocks. The whole property is surrounded by mature hedging.
The Opportunity
A chance to build your own spectacular, individual home, in the most wonderful of settings, with far-reaching views and no near neighbours, and yet only 3 miles from excellent schooling and leisure facilities, within the beautiful market town of Oundle.
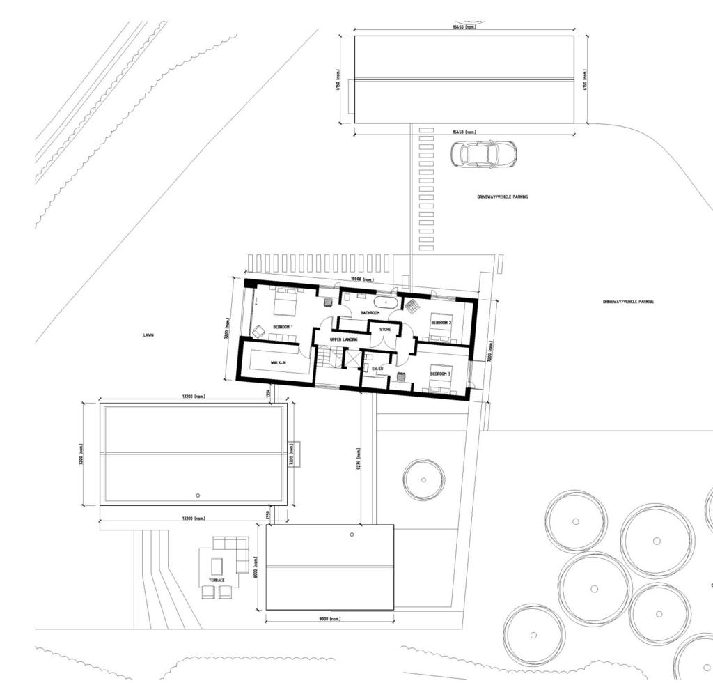
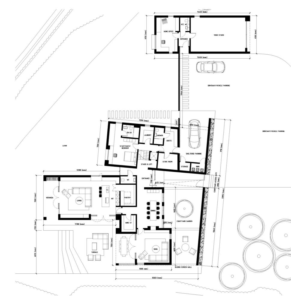
Planning Permission has been granted for a stylish and unique residence. The consented scheme shows an attractive, barn-style house of 306 sq m, with wonderful reception space, along with four bedrooms and three bathrooms, including an annex. Within the grounds, consent has been granted for a yoga studio with home office, (94 sq m) overlooking the pond. Other schemes / designs may be acceptable to the Local Authority.
Planning Permission
North Northamptonshire Council has granted Full Planning Permission on 11 July 2025, for a replacement dwelling to be constructed under planning reference - NE24/01178/FUL - an electronic copy of the Decision Notice and planning drawings are available from Woodford & Co.
Location
Coppice Lodge is on the left side of Bearshanks Lane, to the west of the small, rural village of Pilton, which stands within the Nene valley. Bearshanks Lane is a no-through lane, serving five other properties, before coming to an end at Bearshanks wood. The historic town of Oundle lies about 3 miles to the north-west and offers a good range of family-run shops, businesses and restaurants set around the Georgian Market Place. There is an excellent choice of schooling, locally. The town also offers a range of leisure and sporting facilities. Peterborough and Wellingborough are the larger towns nearby, and each offers extensive facilities, including main line rail services to London, with journey times from 48 minutes.
IMPORTANT NOTE TO PURCHASERS:
We endeavour to make our sales particulars accurate and reliable, however, they do not constitute or form part of an offer or any contract and none is to be relied upon as statements of representation or fact. Any services, systems and appliances listed in this specification have not been tested by us and no guarantee as to their operating ability or efficiency is given. All measurements have been taken as a guide to prospective buyers only, and are not precise. Please be advised that some of the particulars may be awaiting vendor approval. If you require clarification or further information on any points, please contact us, especially if you are travelling some distance to view. Fixtures and fittings other than those mentioned are to be agreed with the seller.
OUN250267/
Coppice Lodge dates from the late-Edwardian era. The house is built of local limestone and set beneath a Collyweston slate roof. The property is neither Listed, nor set within a conservation area. The dwelling served as a farm cottage for many decades.
It is now in need of updating, which is feasible, or of course the property could be redeveloped, using the Planning Permission that has recently been granted. The property sits on a hilltop and enjoys fabulous, unspoilt, rural views in each direction, Lyveden New Bield is visible in one direction and the market town of Oundle, in the other.
Lawned gardens run around the house. making this a rare and exceptional opportunity. The gated drive leads from Bearshanks Lane (a tranquil, no-through road), down to the house and into the yard, Stables and a brick machinery store stand to one side. Beyond, are a Dutch barn and two steel portal cattle barns. There are two, unfenced paddocks. The whole property is surrounded by mature hedging.
The Opportunity
A chance to build your own spectacular, individual home, in the most wonderful of settings, with far-reaching views and no near neighbours, and yet only 3 miles from excellent schooling and leisure facilities, within the beautiful market town of Oundle.
Planning Permission has been granted for a stylish and unique residence. The consented scheme shows an attractive, barn-style house of 306 sq m, with wonderful reception space, along with four bedrooms and three bathrooms, including an annex. Within the grounds, consent has been granted for a yoga studio with home office, (94 sq m) overlooking the pond. Other schemes / designs may be acceptable to the Local Authority.
Planning Permission
North Northamptonshire Council has granted Full Planning Permission on 11 July 2025, for a replacement dwelling to be constructed under planning reference - NE24/01178/FUL - an electronic copy of the Decision Notice and planning drawings are available from Woodford & Co.
Location
Coppice Lodge is on the left side of Bearshanks Lane, to the west of the small, rural village of Pilton, which stands within the Nene valley. Bearshanks Lane is a no-through lane, serving five other properties, before coming to an end at Bearshanks wood. The historic town of Oundle lies about 3 miles to the north-west and offers a good range of family-run shops, businesses and restaurants set around the Georgian Market Place. There is an excellent choice of schooling, locally. The town also offers a range of leisure and sporting facilities. Peterborough and Wellingborough are the larger towns nearby, and each offers extensive facilities, including main line rail services to London, with journey times from 48 minutes.
IMPORTANT NOTE TO PURCHASERS:
We endeavour to make our sales particulars accurate and reliable, however, they do not constitute or form part of an offer or any contract and none is to be relied upon as statements of representation or fact. Any services, systems and appliances listed in this specification have not been tested by us and no guarantee as to their operating ability or efficiency is given. All measurements have been taken as a guide to prospective buyers only, and are not precise. Please be advised that some of the particulars may be awaiting vendor approval. If you require clarification or further information on any points, please contact us, especially if you are travelling some distance to view. Fixtures and fittings other than those mentioned are to be agreed with the seller.
OUN250267/
Property information from this agent
About this agent

We are property consultants and auctioneers engaged in all estate agency activities. We offer expert advice on selling your property – from investment properties, cottages, houses and high quality new homes to large country houses and equestrian properties. Woodford & Co takes pride in offering a personal level of service by highly experienced professionals to deliver the very best results for our clients, backed by a real understanding and depth of knowledge of the many challenges that can arise during the selling or renting process. Our aim is to work with you to maximise the value of your asset.










