1 bedroom flat for sale
Key information
Features and description
- This listing is provided in association with Foxtons, London's leading estate agent.
- Gorgeous sixth floor studio apartment seconds from Nine Elms Station
- Double bedroom with a built-in wardrobe and sliding doors for privacy
- Modern integrated kitchen
- Private balcony with views over the communal roof terrace
- Access to the amazing onsite amenities
- Secure building with lifts and 24hr concierge
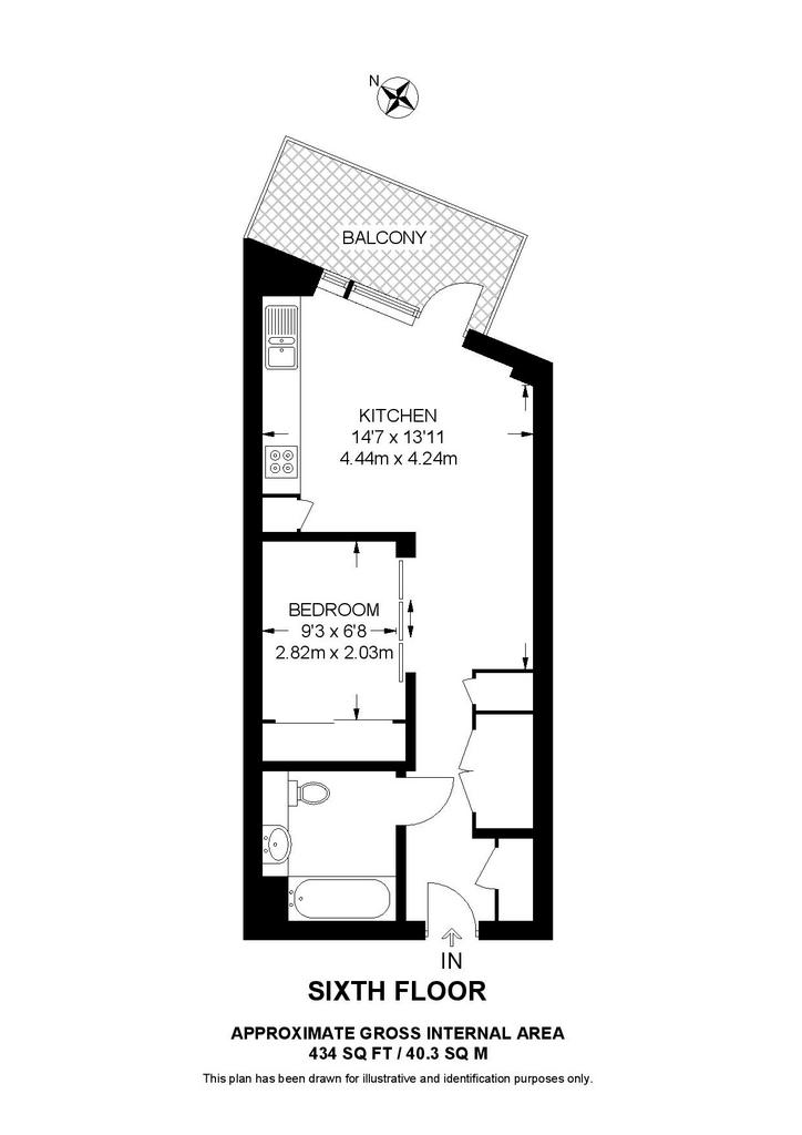
- Gross internal floor area is approximately 434 Sq Ft (40.32 Sq M)
- Online Auction on Wednesday, 17 December 2025
This amazing sixth floor studio apartment offers one double bedroom with built-in wardrobes, spacious open-plan reception with a modern integrated kitchen, and a lovely private balcony over-looking the communal roof garden.
Additional Comments
BidX1 and Foxtons are working in Partnership as Joint Agents for the online auction and due to this any enquiries, viewings, bids or offers on the property will require your details to be shared between both Bidx1 & Foxtons.
Viewings are by appointment only unless open house times are displayed, please contact us to book your appointment with our Auction teams.
Subject to confirmation
This means the buyer is invited to place a bid at or above the opening bid price of the listed property. Once bidding is closed, the vendor has 48 hours to decide if they want to accept the highest bid or not. If you are not the highest bidder your participation fee will be refunded in full within a maximum of 5 business days (unless delayed by the card provider) post the bidding closing time. If you are successful following vendor acceptance, in accordance with the authority you provided on registration, BidX1 will sign legally binding contracts relating to the sale of the property on behalf of you and the vendor.
Location:
Located moments from the wealth of amenities on Wandsworth Road, this property is also surrounded by great transport links at both Vauxhall and Nine Elms Stations.
Accomodation:
Sixth floor: reception room/kitchen, bedroom, bathroom, balcony.
Online Auction on Wednesday, 17 December 2025. For further information, such as legal documents and property information, please visit bidx1.com.
About this agent

Similar properties
Discover similar properties nearby in a single step.


















