Plot for sale
Key information
Features and description
- Located on Whatlington Road within an Area of Outstanding Natural Beauty (AONB)
- Plot size just under half an acre (size to be confirmed)
- Large outbuilding suitable for conversion into a workshop, studio, or garage
- Property design features an open-plan living and dining area
- Master bedroom includes an en-suite and balcony
- Local amenities including shops, schools, and transport links readily accessible
- Total living space over 2,680 sq ft
- All bedrooms with their own en-suite
- Planning permission (now lapsed) granted for a five-bedroom contemporary home
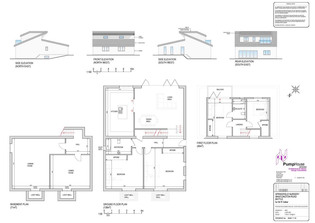
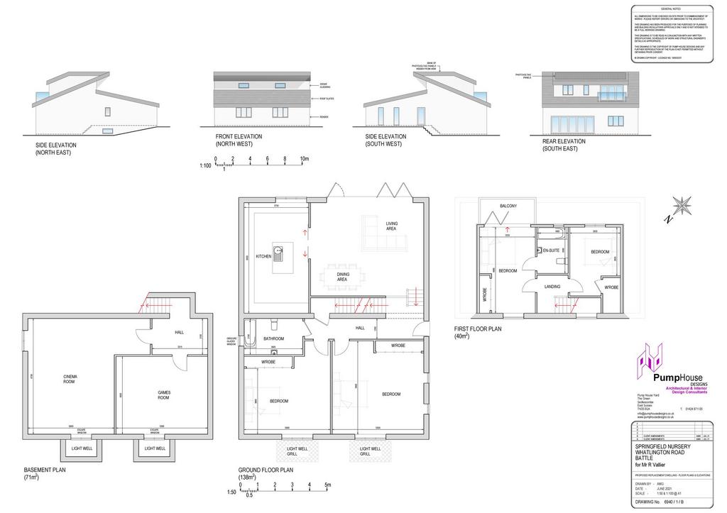
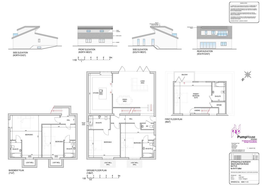
Purchase a south facing plot on Whatlington Road in an AONB, previously approved (now lapsed) plans for a 2,680sq ft, 5-bedroom home each with its own en-suite, master bedroom with balcony, large garden, and outbuilding. The vendors at their cost are building the access driveway.
Wrap around gardens
Large drive
Walking distance to shop, butchers and pub
Great location for Hastings, rye, commuting on a21, abundance of walks on doorstep, primary school
Property Features:
Plans include a two-story building and a basement.
Living Spaces: The layout features five double bedrooms, with an en-suite and balcony off the master bedroom. An open-plan living and dining area opens out to a patio with views over the garden and Sussex countryside.
Two further bedrooms in the basement.
Outdoor and Additional Buildings: The plot includes a large outbuilding at the front which is 853 sq ft (16.5m x 4.8m), suitable for conversion into a workshop, studio, or garage, and the site comprises approximately half an acre. (to be confirmed)
Location and Accessibility:
The site is located on Whatlington Road, with easy access to local shops, schools, medical facilities, and public transport.
Planning Permission previously approved (now lapsed) plans:
Detailed plans and permissions are available under the reference RR/2021/1937/P.
This plot provides a great opportunity for anyone looking to build a customized home in a desirable location. The internal layout can be amended. Detailed plans and all necessary permissions are already in place, allowing for a straightforward start to development.
Property information from this agent
About this agent













