Popular
Total views: 2500+
Offers over
£350,0005 bedroom bungalow for sale
Cardean Way, Glenrothes, KY6
Bungalow
5 beds
3 baths
1657
EPC rating: D
Key information
Tenure: Freehold
Council tax: Band F
Broadband: Ultra-fast 1000Mbps *
Mobile signal:
EEO2ThreeVodafone
Features and description
- Spacious Detached 5 Bed Bungalow
- Set In Sought-After Well-Regarded Residential Area
- Spacious Sunny, Private Back And Front Gardens
- Lovely Modern Spacious Social Kitchen Dining Room Plus Large Utility Room
- Detached Garage & Large Multi-Car Driveway
- Wonderful Living And Bedroom Accommodation
- Modern Bathroom And 2 Separate Shower-Rooms
- Excellent Location For Amenities & Commuting
- Gas Central Heating And u PVC Double Glazing
Video tours
*REDUCED PRICE £20,000 BELOW HOME REPORT VALUE!*
Modern, spacious, extended, 5 bed detached bungalow with garage, sunny, private garden and large driveway. Nestling in small cul-de-sac within a cul-de-sac within well-regarded and sought after residential area in north-west Glenrothes.
Features
Spacious Detached 5 Bed Bungalow
Set In Sought-After Well-Regarded Residential Area
Spacious Sunny, Private Back And Front Gardens
Lovely Modern Spacious Social Kitchen Dining Room Plus Large Utility Room
Detached Garage & Large Multi-Car Driveway
Wonderful Living And Bedroom Accommodation
Modern Bathroom And 2 Separate Shower-Rooms
Excellent Location For Amenities & Commuting
Gas Central Heating And uPVC Double Glazing
Home Report Value £370,000
Council Tax Band F
Energy Performance Rating C
This spacious, modern bungalow offers an abundance of comfortable, modern accommodation for the growing family and will please viewers looking for a forever home all on one level and in a pleasant location.
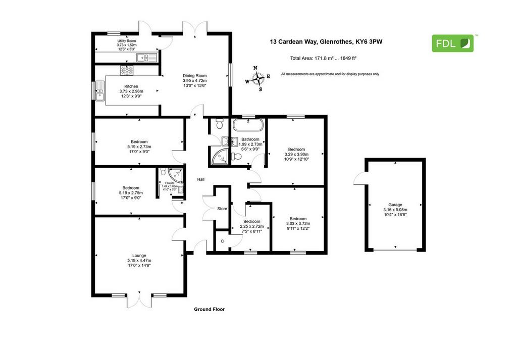
The hub of this lovely home is the charming extended modern dining kitchen, with an array of new units and integrated appliances. There is lots of floor-space for free-standing furniture and French doors open onto the private, sunny back garden. There is also a very good sized utility room off the kitchen with plenty of space for service-room appliances and a door leading to the garden. Moving on, you will again be impressed with the large, bright and airy formal lounge to the front of the house which is bathed with natural light from the French doors and large side-windows which open onto a private, secluded and sunny front garden. Next, you will move through 5 impressive bedrooms, including a splendid primary bedroom featuring a good-sized, modern en-suite bathroom. The 4 further bedrooms also offer lots of floorspace, with a guest-bedroom enjoying its own en-suite shower-room. The accommodation is completed with an additional family shower-room.
Externally, there is a private, sunny, enclosed back garden which is the ideal spot for alfresco dining and entertaining friends and family. There is also an attractive private front garden, as well as a detached single garage and a generous driveway affording parking for multiple cars.
As would be expected, there is full gas central heating (boiler and radiators installed in recent years), as well as recently installed uPVC double glazing windows and French doors. There is plenty of storage space throughout, including a part-floored attic.
This lovely property is nestled in a particularly accessible residential location for the commuter, with good amenities close-by including schools, the town centre, Rothes Halls and library and the Michael Woods Leisure Complex. The property is close to the A92 trunk road which will take you throughout Fife and on to Dundee, Edinburgh, Perth and beyond. There is also a local extensive bus service across Fife and beyond and train stations are nearby at both Thornton and Markinch. The surrounding Fife countryside is ideal for outdoor pursuits including Cluny Clays Activity Centre, Lomond Hills Regional Park, Balbirnie Park and Golf Course, Markinch, Riverside Park in Glenrothes itself, as well as the nearby East Neuk coastal towns. The historic village of Falkland, once home to Mary Queen of Scots, is just a 10 minute drive away. There is an abundance of golf courses very nearby and St Andrews, home of golf, is a 30 minute drive away.
Modern, spacious, extended, 5 bed detached bungalow with garage, sunny, private garden and large driveway. Nestling in small cul-de-sac within a cul-de-sac within well-regarded and sought after residential area in north-west Glenrothes.
Features
Spacious Detached 5 Bed Bungalow
Set In Sought-After Well-Regarded Residential Area
Spacious Sunny, Private Back And Front Gardens
Lovely Modern Spacious Social Kitchen Dining Room Plus Large Utility Room
Detached Garage & Large Multi-Car Driveway
Wonderful Living And Bedroom Accommodation
Modern Bathroom And 2 Separate Shower-Rooms
Excellent Location For Amenities & Commuting
Gas Central Heating And uPVC Double Glazing
Home Report Value £370,000
Council Tax Band F
Energy Performance Rating C
This spacious, modern bungalow offers an abundance of comfortable, modern accommodation for the growing family and will please viewers looking for a forever home all on one level and in a pleasant location.
The hub of this lovely home is the charming extended modern dining kitchen, with an array of new units and integrated appliances. There is lots of floor-space for free-standing furniture and French doors open onto the private, sunny back garden. There is also a very good sized utility room off the kitchen with plenty of space for service-room appliances and a door leading to the garden. Moving on, you will again be impressed with the large, bright and airy formal lounge to the front of the house which is bathed with natural light from the French doors and large side-windows which open onto a private, secluded and sunny front garden. Next, you will move through 5 impressive bedrooms, including a splendid primary bedroom featuring a good-sized, modern en-suite bathroom. The 4 further bedrooms also offer lots of floorspace, with a guest-bedroom enjoying its own en-suite shower-room. The accommodation is completed with an additional family shower-room.
Externally, there is a private, sunny, enclosed back garden which is the ideal spot for alfresco dining and entertaining friends and family. There is also an attractive private front garden, as well as a detached single garage and a generous driveway affording parking for multiple cars.
As would be expected, there is full gas central heating (boiler and radiators installed in recent years), as well as recently installed uPVC double glazing windows and French doors. There is plenty of storage space throughout, including a part-floored attic.
This lovely property is nestled in a particularly accessible residential location for the commuter, with good amenities close-by including schools, the town centre, Rothes Halls and library and the Michael Woods Leisure Complex. The property is close to the A92 trunk road which will take you throughout Fife and on to Dundee, Edinburgh, Perth and beyond. There is also a local extensive bus service across Fife and beyond and train stations are nearby at both Thornton and Markinch. The surrounding Fife countryside is ideal for outdoor pursuits including Cluny Clays Activity Centre, Lomond Hills Regional Park, Balbirnie Park and Golf Course, Markinch, Riverside Park in Glenrothes itself, as well as the nearby East Neuk coastal towns. The historic village of Falkland, once home to Mary Queen of Scots, is just a 10 minute drive away. There is an abundance of golf courses very nearby and St Andrews, home of golf, is a 30 minute drive away.
About this agent

Fords Daly Legal - Kirkcaldy
Lomond house ,first floor, Grantsmuir Road
Kirkcaldy,
KY2 6NA
01592 508324We are a highly skilled and experienced legal and Estate Agency business, here to listen and help people with a wide range of services across East Fife, West Fife and Kinross, Edinburgh, Lothian and beyond. When you are buying or selling property, it pays to seek sound advice from property professionals. Our Estate Agency staff at FDL are skilled, experienced, proven practitioners and negotiators. Our sole aim is to achieve the best possible deal for our clients. As your estate agents we will guide you all the way through the process and advise on how best to market your property or secure a new home, using the latest innovative IT technology combined with the marketing experience that we have acquired over more than three decades. We provide a high quality service providing professional photographs, floor-plans, for sale board, accompanied viewings and carry out all negotiations as standard. Our service is bespoke and we offer a competitive combined Estate Agency and Conveyancing package.
Similar properties
Discover similar properties nearby in a single step.






































Floorplan
